東京都豊島区西池袋1丁目(池袋駅)の賃貸:物件詳細
交通 所在地 |
駅徒歩 |
賃料 管理費等 |
敷金/保証金 礼金 |
間取り 面積 |
物件種目 築年月 |
|
JR山手線/池袋
東京都豊島区西池袋1丁目
|
2分
|
24.4万円
15,000円
|
なし / なし
なし
|
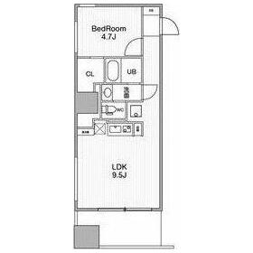
1LDK
40.01m²
|
賃貸マンション
2007年6月(築18年7ヶ月)
|
二人入居可、24時間換気システム、オール電化、IT重説対応物件
|
|
間取図
|
外観
|
その他の画像
|
| 交通 | JR山手線 池袋駅 徒歩2分 |
|---|
| その他の交通 | JR山手線 目白駅 徒歩14分 東京メトロ有楽町線 要町駅 徒歩15分 |
| 所在地 |
東京都豊島区西池袋1丁目
|
| 物件種目 |
賃貸マンション |
| 賃料 |
24.4万円 |
管理費等 |
15,000円 |
| 敷金 / 保証金 |
なし / なし |
礼金 |
なし |
| 敷引 |
- |
保証金償却 |
- |
| その他一時金 |
契約事務手数料:7,700円、Goodプレミアムα(24Hサポートのみ):12,100円、Goodプレミアムα登録料:2,200円、室内清掃費用:76,560円、鍵交換代等:24,200円~ |
保険等 |
要 2年 28,000円 |
| 維持費等 |
- |
クレジットカード決済 |
初期費用可 |
| 間取り |
1LDK(LDK9.5、洋4.7) |
専有面積 |
40.01m² |
| 築年月 |
2007年6月(築18年7ヶ月)
|
階建 / 階 |
26階建 / 20階 |
| 建物構造 |
RC |
総戸数 |
- |
| 主要採光面 |
|
駐車場 |
- |
| バイク置き場 |
- |
駐輪場 |
有 |
| 建物名・部屋番号 |
アーバンフラッツ池袋プレミアム 2008 |
ペット |
-
|
| リフォーム履歴 |
- |
| リノベーション履歴 |
- |
| 備考 |
賃貸保証等:加入要(エポス月次(FIS保険)東京初回保証料60%+月次1%(フレックス少額短期保険代保証))
管理形態/管理員の勤務形態:-/-
IT重説対応物件
セキュリティ面は、オートロック・TVインターホンなど充実しているので安心して生活できます。
解約予告2ヶ月前。ルームクリーニング:退去時52360円(税込)。エアコンクリーニング:退去時24200円(税込)。1年未満の解約は賃料2ヶ月分、2年未満の解約は賃料1ヶ月分の違約金あり。再契約料:217000円。大手法人:保証会社免除の場合、敷金1ヶ月(家賃のみ)。
|
| エネルギー消費性能 |
- |
| 断熱性能 |
- |
| 目安光熱費 |
- |
| バス・トイレ |
バス・トイレ別、洗面台、シャワー、温水洗浄便座、トイレ |
| キッチン |
システムキッチン、IHクッキングヒーター、2口コンロ |
| セキュリティー |
オートロック、防犯カメラ |
| 収納 |
収納スペース、クローゼット、シューズボックス |
| 設備・サービス |
室内洗濯機置場、洗濯機置場、フローリング、エアコン |
| TV・通信 |
インターネット対応、インターネット使用料無料、光ファイバー、CS、BS端子 |
| その他 |
宅配BOX、バルコニー、駐輪場、エレベーター |
| 契約期間 |
2年 |
現況 |
空家 |
| 条件等 |
定期借家 |
入居可能時期 |
即時 |
| 仲介手数料 |
1.1ヶ月 |
|
|
| 更新料 |
- |
物件番号 |
1172492416 |
| 情報公開日 |
2025年11月16日 |
次回更新予定日 |
2025年12月15日 |
| ケータイ用バーコード |
- スマートフォンでこの物件を見る
- スマートフォンからもこの物件をご覧になれます。
|
※「-」と表示されている項目については、情報提供会社にご確認ください。
| 周辺施設 |
セブンイレブン 豊島劇場通り東店 |
| 距離 |
83m |
写真を見る |
ここから簡単にお問い合わせをすることができます。
(SSLでの暗号化での送信を希望されるお客さまは
こちら
よりお問い合わせください)
お問い合わせを行う前に
「個人情報の取り扱いについて」を必ずお読みください。
「個人情報の取り扱いについて」に同意いただいた場合は「上記にご同意の上 確認画面へ進む」のボタンをクリックしてください。
個人情報の取り扱いについて
皆さまが送付された個人情報はアットホーム(株)のサーバを経由し、お問い合わせ先の不動産会社にメールまたはFAXにて転送されるためアットホーム(株)にも保管されます。アットホーム(株)で保管された個人情報の取り扱いについては、【こちら】をご覧ください。
また、本画面でご記入いただいた個人情報は、お問い合わせ先の不動産会社でも保管します。 お問い合わせ先の不動産会社が保管する個人情報の取り扱いについては、不動産会社に直接お問い合わせください。
国土交通大臣免許(4)第7400号 |
|---|
- 交通:
- JR埼京線/板橋駅 徒歩1分
- 東京都板橋区板橋1丁目20-8 COZYPORT1階
- TEL:
- 03-5943-3555
- FAX:
- 03-5943-3444
- 所属団体:
- (公社)全日本不動産協会会員(公社)首都圏不動産公正取引協議会加盟
取引態様:仲介  - 00511466
|
- スマートフォンで
この不動産会社を見る

|
- 提携サイト等より掲載されている物件情報につきましては、不動産会社詳細情報にリンクされていないものがあります。
- 物件に関するお問合せは、物件詳細ページの「情報提供会社」に表示されている不動産会社へ直接お願いいたします。
- 間取図は、現況を優先させていただきます。
- 映像は物件の一部を撮影したものです。物件の契約にあたっての最終判断はご自身の判断に基づいて行ってください。
- 仲介手数料について

アットホームは物件情報の適正化に努めております。
内容に誤りがある場合にはこちらへご連絡ください。