不動産 賃貸 マンション等の住宅情報:埼玉住まい情報


東京都渋谷区笹塚1丁目(笹塚駅)の賃貸:物件詳細

  • 物件詳細
  • 情報の見方
  • 印刷用画面
交通
所在地
駅徒歩 賃料
管理費等
敷金/保証金
礼金
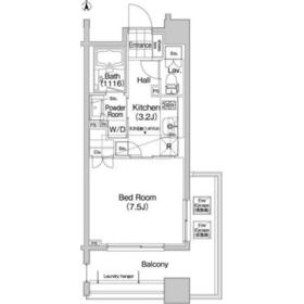
間取り
面積
物件種目
築年月

京王線/笹塚 新着

東京都渋谷区笹塚1丁目

4分

13.2万円

7,000円

1ヶ月 / なし

なし

1K

28.90m²

賃貸マンション

2006年11月(築19年1ヶ月)

おすすめPOINTペット相談、角部屋

おすすめコメント  スタッフ: アンジェラス

◆エリアに密着して45年以上!東京・神奈川エリアのお部屋探しならリロの不動産東都にお任せ☆物件のご相談などお気軽にご連絡下さい♪

間取図

間取図

外観

外観

<
その他の画像
  • リビング
  • キッチン
  • バス/シャワー
  • 洗面
  • 共有部分
  • 共有部分
  • 共有部分
  • 共有部分
  • エントランス
  • 駐車場
  • 外観
  • 外観
  • 共有部分
  • エントランス
  • ショッピング施設
  • ショッピング施設
  • ショッピング施設
  • コンビニ
  • 販売店
  • 飲食店
  • ショッピング施設
>
    • とりあえず保存
    • お問い合わせ
    交通

    京王線 笹塚駅 徒歩4分

    その他の交通

    京王線 代田橋駅 徒歩10分

    京王線 幡ヶ谷駅 徒歩14分

    所在地 東京都渋谷区笹塚1丁目
    物件種目 賃貸マンション
    賃料 13.2万円 管理費等 7,000円
    敷金 / 保証金 1ヶ月 / なし 礼金 なし
    敷引 保証金償却
    その他一時金 室内清掃費用:33,000円、エアコン清掃費:11,000円、鍵交換代等:33,000円~ 保険等 要 16,550円
    維持費等
    間取り 1K(K3.2洋室7.5) 専有面積 28.90m²
    築年月 2006年11月(築19年1ヶ月) 階建 / 階 14階建 / 10階
    建物構造 RC 総戸数 89戸
    主要採光面 駐車場
    バイク置き場 駐輪場
    建物名・部屋番号 コンフォリア笹塚 1006 ペット 小型犬可
    リフォーム履歴
    リノベーション履歴
    備考
    賃貸保証等:加入要(保証料:賃料等の50%(最低2万)、月額保証料:賃料等の1%(更新料無))
    管理形態/管理員の勤務形態:-/-
    エネルギー消費性能
    断熱性能
    目安光熱費
    バス・トイレ バス・トイレ別、洗面台、温水洗浄便座、トイレ
    キッチン システムキッチン
    セキュリティー オートロック、防犯カメラ
    収納
    設備・サービス 室内洗濯機置場、給湯、フローリング、エアコン
    TV・通信 インターネット対応、BS端子
    その他 宅配BOX、駐輪場、エレベーター
    契約期間 2年 現況 居住中
    条件等 入居可能時期 2025年12月下旬予定
    仲介手数料 1.1ヶ月    
    更新料 新賃料 1ヶ月 物件番号 1172897907
    情報公開日 2025年11月4日 次回更新予定日 2025年11月18日
    ケータイ用バーコード

    QRコード

    スマートフォンでこの物件を見る
    スマートフォンからもこの物件をご覧になれます。
    ※「-」と表示されている項目については、情報提供会社にご確認ください。

    この物件の周辺情報

    周辺施設 フレンテ笹塚
    距離 353m
    周辺施設 ショッピングモールTWENTY ONE
    距離 432m
    周辺施設 サミットストア笹塚店
    距離 359m
    周辺施設 ローソン笹塚駅前店
    距離 302m
    周辺施設 サンドラッグ笹塚南口店
    距離 437m
    周辺施設 CoCo壱番屋渋谷区笹塚店
    距離 56m
    周辺施設 ドン・キホーテ環七方南町店
    距離 1080m

    クイックお問い合わせ

    ここから簡単にお問い合わせをすることができます。
    (SSLでの暗号化での送信を希望されるお客さまは こちら よりお問い合わせください)

    お問い合わせ内容(必須)
    お名前(必須) 姓  名 
    メールアドレス(必須)
    ※携帯電話のメールアドレスをご入力される方はこちらをご確認ください
    電話番号(必須)
    - -

    ※入力いただいた電話番号へSMSまたは音声でパスワードをご連絡します。

    携帯電話の番号をご入力の方へ

    携帯電話の番号をご入力の方へ
    確認画面にて送信ボタンをクリックするとSMSが携帯電話に届きます。
    そのSMSに記載のパスワード(認証番号)を入力し、お問い合わせを完了してください。
    尚、SMSの送信者番号は 0005 202 760 となります。
    これはアットホームの固定番号です。

    備考欄 希望条件、物件案内希望日、質問などがございましたらご記入ください。
    お問い合わせを行う前に「個人情報の取り扱いについて」を必ずお読みください。
    「個人情報の取り扱いについて」に同意いただいた場合は「上記にご同意の上 確認画面へ進む」のボタンをクリックしてください。

    個人情報の取り扱いについて

    皆さまが送付された個人情報はアットホーム(株)のサーバを経由し、お問い合わせ先の不動産会社にメールまたはFAXにて転送されるためアットホーム(株)にも保管されます。アットホーム(株)で保管された個人情報の取り扱いについては、【こちら】をご覧ください。
    また、本画面でご記入いただいた個人情報は、お問い合わせ先の不動産会社でも保管します。 お問い合わせ先の不動産会社が保管する個人情報の取り扱いについては、不動産会社に直接お問い合わせください。

    情報提供会社

    情報提供会社

    リロの不動産 (株)東都 笹塚店

    国土交通大臣免許(10)第3496号

    交通:
    京王線/笹塚駅 徒歩1分
    東京都渋谷区笹塚1丁目22-5 
    TEL:
    03-5452-1411
    FAX:
    03-5790-0750
    所属団体:
    (一社)全国住宅産業協会会員
    不動産公正取引協議会加盟

    取引態様:仲介

    • 会社情報
    • 00780346
    スマートフォンで
    この不動産会社を見る
    QRコード
    • とりあえず保存
    • お問い合わせ
    • 提携サイト等より掲載されている物件情報につきましては、不動産会社詳細情報にリンクされていないものがあります。
    • 物件に関するお問合せは、物件詳細ページの「情報提供会社」に表示されている不動産会社へ直接お願いいたします。
    • 間取図は、現況を優先させていただきます。
    • 映像は物件の一部を撮影したものです。物件の契約にあたっての最終判断はご自身の判断に基づいて行ってください。
    • 仲介手数料について仲介手数料

    アットホームは物件情報の適正化に努めております。 内容に誤りがある場合にはこちらへご連絡ください。

    【埼玉住まい情報】では、日本全国の物件から賃貸マンションや賃貸アパート・賃貸一戸建て等の賃貸住宅情報、新築マンション・分譲マンションや中古マンション等の売買マンション情報、新築一戸建てや中古一戸建てなどの戸建住宅、 土地など、総合的な不動産住宅情報検索サービスを提供致します。
    【埼玉住まい情報】から、選りすぐりの不動産物件を探してみましょう。

    【免責事項】
    このコーナーの運営はアットホーム株式会社(https://www.athome.co.jp/)が行っています。
    このコーナーに掲載している物件情報は、「アットホーム不動産情報ネットワーク」に加盟する不動産会社等(情報提供元)から提供されています。信頼性の高い情報提供が行えるよう、最大限の努力をしておりますが、その内容を保証するものではありません。 利用者のみなさまと各情報提供元との取引に起因する損害および情報が掲載されたことに起因する損害等については、株式会社イーシティ埼玉、およびアットホームは一切責任を負いません。
    各物件情報の内容や画像等はすべて現況を優先させていただきます。
    お取引等(お取引の準備、資金調達等を含みます)の際には、内容や契約条件等について、各情報提供元より十分な説明を受け、ご自身でご確認の上、判断してください。
    このコーナーへの物件情報のご掲載、その他不動産業務ソリューション等についての不動産会社様のお問合せはこちらからお願いいたします。

    物件画像: