大阪府泉佐野市高松東2丁目(泉佐野駅)の賃貸:物件詳細
交通 所在地 |
駅徒歩 |
賃料 管理費等 |
敷金/保証金 礼金 |
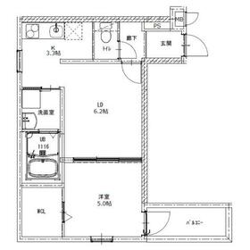
間取り 面積 |
物件種目 築年月 |
南海本線/泉佐野
大阪府泉佐野市高松東2丁目
|
12分
|
6.7万円
5,000円
|
なし / なし
10万円
|
1LDK
36.42m²
|
賃貸アパート
2023年11月(築2年)
|
角部屋、ルームシェア可、二人入居可、閑静な住宅街、保証人不要
|
間取図
間取図
|
外観
|
<
その他の画像
>
|
交通 | 南海本線 泉佐野駅 徒歩12分 |
---|
その他の交通 | 南海本線 羽倉崎駅 徒歩25分 JR関西空港線 りんくうタウン駅 徒歩25分 |
所在地 |
大阪府泉佐野市高松東2丁目
|
物件種目 |
賃貸アパート |
賃料 |
6.7万円 |
管理費等 |
5,000円 |
敷金 / 保証金 |
なし / なし |
礼金 |
10万円 |
敷引 |
- |
保証金償却 |
- |
その他一時金 |
鍵交換代(契約時):11,000円、ルームクリーニング費:33,000円 |
保険等 |
要 2年 15,000円 |
維持費等 |
- |
間取り |
1LDK(洋5.0) |
専有面積 |
36.42m² |
築年月 |
2023年11月(築2年)
|
階建 / 階 |
3階建 / 1階 |
建物構造 |
木造 |
総戸数 |
- |
主要採光面 |
南東 |
駐車場 |
空無 |
バイク置き場 |
無 |
駐輪場 |
有 無料 |
建物名・部屋番号 |
フジパレス シエスタ 102 |
ペット |
-
|
リフォーム履歴 |
- |
リノベーション履歴 |
- |
備考 |
賃貸保証等:加入要(オリコ (保証料:3.6万円)※契約時:月額賃料等の50% 継続料:月額賃料等の1%/月)
管理形態/管理員の勤務形態:-/巡回
管理人巡回
オートロック・ウォークインクローゼット付
☆2人入居可☆
|
エネルギー消費性能 |
- |
断熱性能 |
- |
目安光熱費 |
- |
バス・トイレ |
バス・トイレ別、浴室乾燥機、シャワー付洗面化粧台、洗面所独立、洗面所、洗面台、温水洗浄便座 |
キッチン |
システムキッチン、IHクッキングヒーター、2口コンロ |
セキュリティー |
オートロック、モニター付インターホン、防犯カメラ |
収納 |
ウォークインクローゼット、クローゼット |
設備・サービス |
室内洗濯機置場、給湯、全居室フローリング、フローリング、都市ガス、エアコン、照明器具 |
TV・通信 |
インターネット対応、インターネット使用料無料、ケーブルTV、CS、BS端子 |
その他 |
宅配BOX、バルコニー、駐輪場 |
契約期間 |
1年 |
現況 |
居住中 |
条件等 |
- |
入居可能時期 |
指定有り2025年12月20日 |
更新料 |
- |
物件番号 |
1173017109 |
情報公開日 |
2025年10月4日 |
次回更新予定日 |
2025年11月1日 |
ケータイ用バーコード |
- スマートフォンでこの物件を見る
- スマートフォンからもこの物件をご覧になれます。
|
※「-」と表示されている項目については、情報提供会社にご確認ください。
周辺施設 |
アローズ泉佐野店 |
距離 |
1500m |
写真を見る |
周辺施設 |
松源パレード泉佐野店 |
距離 |
864m |
写真を見る |
周辺施設 |
ファミリーマート泉佐野高松東店 |
距離 |
235m |
写真を見る |
周辺施設 |
マツモトキヨシ泉佐野駅店 |
距離 |
1001m |
写真を見る |
周辺施設 |
吉野家26号線泉佐野店 |
距離 |
239m |
写真を見る |
周辺施設 |
泉佐野高松郵便局 |
距離 |
484m |
写真を見る |
ここから簡単にお問い合わせをすることができます。
(SSLでの暗号化での送信を希望されるお客さまは
こちら
よりお問い合わせください)
お問い合わせを行う前に
「個人情報の取り扱いについて」を必ずお読みください。
「個人情報の取り扱いについて」に同意いただいた場合は「上記にご同意の上 確認画面へ進む」のボタンをクリックしてください。
個人情報の取り扱いについて
皆さまが送付された個人情報はアットホーム(株)のサーバを経由し、お問い合わせ先の不動産会社にメールまたはFAXにて転送されるためアットホーム(株)にも保管されます。アットホーム(株)で保管された個人情報の取り扱いについては、【こちら】をご覧ください。
また、本画面でご記入いただいた個人情報は、お問い合わせ先の不動産会社でも保管します。 お問い合わせ先の不動産会社が保管する個人情報の取り扱いについては、不動産会社に直接お問い合わせください。
大阪府知事免許(7)第43192号 |
---|
- 交通:
- 南海本線/泉佐野駅 徒歩2分
- 大阪府泉佐野市上町3丁目8-9
- TEL:
- 072-464-3155
- 所属団体:
- (一社)大阪府宅地建物取引業協会会員(公社)近畿地区不動産公正取引協議会加盟
取引態様:仲介  - 50027527
|
- スマートフォンで
この不動産会社を見る

|
- 提携サイト等より掲載されている物件情報につきましては、不動産会社詳細情報にリンクされていないものがあります。
- 物件に関するお問合せは、物件詳細ページの「情報提供会社」に表示されている不動産会社へ直接お願いいたします。
- 間取図は、現況を優先させていただきます。
- 映像は物件の一部を撮影したものです。物件の契約にあたっての最終判断はご自身の判断に基づいて行ってください。
- 仲介手数料について

アットホームは物件情報の適正化に努めております。
内容に誤りがある場合にはこちらへご連絡ください。