東京都台東区松が谷2丁目(浅草駅)の賃貸:物件詳細
交通 所在地 |
駅徒歩 |
賃料 管理費等 |
敷金/保証金 礼金 |
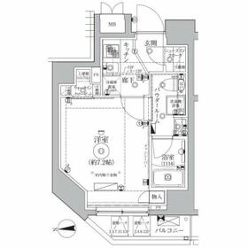
間取り 面積 |
物件種目 築年月 |
|
つくばエクスプレス/浅草
東京都台東区松が谷2丁目
|
7分
|
9.7万円
10,000円
|
なし / なし
1ヶ月
|
1K
25.40m²
|
賃貸マンション
2019年7月(築6年6ヶ月)
|
ペット相談、常時ゴミ出し可能、角部屋、高齢者相談、24時間セキュリティー、24時間換気システム、外観タイル張り、IT重説対応物件、保証人不要
|
|
間取図
|
外観
|
<
その他の画像
>
|
| 交通 | つくばエクスプレス 浅草駅 徒歩7分 |
|---|
| その他の交通 | 東京メトロ銀座線 稲荷町駅 徒歩8分 東京メトロ銀座線 田原町駅 徒歩8分 |
| 所在地 |
東京都台東区松が谷2丁目
|
| 物件種目 |
賃貸マンション |
| 賃料 |
9.7万円 |
管理費等 |
10,000円 |
| 敷金 / 保証金 |
なし / なし |
礼金 |
1ヶ月 |
| 敷引 |
- |
保証金償却 |
- |
| その他一時金 |
契約事務手数料:3,300円、あんしんサポートα(1年間):16,500円、消臭除菌代:8,800円、鍵交換代等:27,500円~ |
保険等 |
要 1年 10,000円 |
| 維持費等 |
- |
クレジットカード決済 |
初期費用可 |
| 間取り |
1K(洋室7.2帖) |
専有面積 |
25.40m² |
| 築年月 |
2019年7月(築6年6ヶ月)
|
階建 / 階 |
13階建 / 7階 |
| 建物構造 |
RC |
総戸数 |
- |
| 主要採光面 |
西 |
駐車場 |
無 |
| バイク置き場 |
有 3,000円/月 |
駐輪場 |
有 |
| 建物名・部屋番号 |
レアライズ浅草IV 702 |
ペット |
相談 |
| アピールポイント |
東京を中心に関東人気エリアの賃貸マンション・アパート情報をご紹介致します!
明るいスタッフ全員にてお迎えいたします!
初期費用のお支払はPAYPAYを含めクレジットカード決済もご相談できます!
ご来店を頂きましたお客様にはフリードリンクサービスにてゆっくりお部屋探しも出来ます。
時間の無い方、遠方のお客様にはIT重説もご対応しております。
創業45年直営144店舗のネットワークであなたのベストハウスお探し致します! |
| リフォーム履歴 |
- |
| リノベーション履歴 |
- |
| 備考 |
賃貸保証等:加入要(加入要 新日本信用保証(賃料総額の50%)※月額払いプランも選択可能)
管理形態/管理員の勤務形態:-/-
IT重説対応物件
周辺環境も詳しくご案内いたします!豊富な物件情報で楽しいお部屋探しをするならタウンハウジング秋葉原店へ!
|
| エネルギー消費性能 |
- |
| 断熱性能 |
- |
| 目安光熱費 |
- |
| バス・トイレ |
バス・トイレ別、浴室暖房、浴室乾燥機、シャワー付洗面化粧台、洗面所独立、洗面所、洗面台、シャワー、温水洗浄便座、トイレ |
| キッチン |
システムキッチン、独立型キッチン、2口コンロ、ガスコンロ付 |
| セキュリティー |
モニター付オートロック、オートロック、モニター付インターホン、防犯カメラ、火災警報器(報知機) |
| 収納 |
全居室収納、ウォークインクローゼット、収納スペース、シューズインクローゼット、クローゼット、シューズボックス |
| 設備・サービス |
全居室エアコン、室内洗濯機置場、都市ガス給湯、給湯、全居室フローリング、フローリング、都市ガス、エアコン、暖房、冷房 |
| TV・通信 |
インターネット対応、インターネット使用料無料、光ファイバー、ケーブルTV、CS、BS端子 |
| その他 |
宅配BOX、バイク置き場、ワイドバルコニー、バルコニー、駐輪場、エレベーター |
| 契約期間 |
1年 |
現況 |
居住中 |
| 条件等 |
- |
入居可能時期 |
2026年2月上旬予定 |
| 仲介手数料 |
1ヶ月 |
|
|
| 更新料 |
新賃料 0.75ヶ月 |
物件番号 |
1173430018 |
| 情報公開日 |
2025年12月9日 |
次回更新予定日 |
2025年12月23日 |
| ケータイ用バーコード |
- スマートフォンでこの物件を見る
- スマートフォンからもこの物件をご覧になれます。
|
※「-」と表示されている項目については、情報提供会社にご確認ください。
| 周辺施設 |
まいばすけっと西浅草2丁目店 |
| 距離 |
378m |
写真を見る |
| 周辺施設 |
マルエツ東上野店 |
| 距離 |
531m |
写真を見る |
| 周辺施設 |
サンクス台東松が谷店 |
| 距離 |
237m |
写真を見る |
| 周辺施設 |
ファミリーマート |
| 距離 |
727m |
写真を見る |
| 周辺施設 |
どらっぐぱぱす浅草雷門店 |
| 距離 |
821m |
写真を見る |
| 周辺施設 |
東上野六郵便局 |
| 距離 |
433m |
写真を見る |
ここから簡単にお問い合わせをすることができます。
(SSLでの暗号化での送信を希望されるお客さまは
こちら
よりお問い合わせください)
お問い合わせを行う前に
「個人情報の取り扱いについて」を必ずお読みください。
「個人情報の取り扱いについて」に同意いただいた場合は「上記にご同意の上 確認画面へ進む」のボタンをクリックしてください。
個人情報の取り扱いについて
皆さまが送付された個人情報はアットホーム(株)のサーバを経由し、お問い合わせ先の不動産会社にメールまたはFAXにて転送されるためアットホーム(株)にも保管されます。アットホーム(株)で保管された個人情報の取り扱いについては、【こちら】をご覧ください。
また、本画面でご記入いただいた個人情報は、お問い合わせ先の不動産会社でも保管します。 お問い合わせ先の不動産会社が保管する個人情報の取り扱いについては、不動産会社に直接お問い合わせください。
国土交通大臣免許(1)第9926号 |
|---|
- 交通:
- JR山手線/秋葉原駅 徒歩2分
- 東京都千代田区神田岩本町一番地 峯岸ビル1F
- TEL:
- 03-3258-7171
- FAX:
- 03-3258-7172
取引態様:仲介  - 00311778
|
- スマートフォンで
この不動産会社を見る

|
- 提携サイト等より掲載されている物件情報につきましては、不動産会社詳細情報にリンクされていないものがあります。
- 物件に関するお問合せは、物件詳細ページの「情報提供会社」に表示されている不動産会社へ直接お願いいたします。
- 間取図は、現況を優先させていただきます。
- 映像は物件の一部を撮影したものです。物件の契約にあたっての最終判断はご自身の判断に基づいて行ってください。
- 仲介手数料について

アットホームは物件情報の適正化に努めております。
内容に誤りがある場合にはこちらへご連絡ください。