不動産 賃貸 マンション等の住宅情報:埼玉住まい情報


東京都新宿区市谷仲之町(曙橋駅)の賃貸:物件詳細

  • 物件詳細
  • 情報の見方
  • 印刷用画面
交通
所在地
駅徒歩 賃料
管理費等
敷金/保証金
礼金
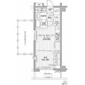
間取り
面積
物件種目
築年月

都営新宿線/曙橋

東京都新宿区市谷仲之町

7分

17.3万円

7,000円

1ヶ月 / なし

1ヶ月

1LDK

35.42m²

賃貸マンション

2016年11月(築9年2ヶ月)

おすすめPOINT角部屋

おすすめコメント  スタッフ: 奥山 円

Google口コミ★4.7!物件数トップクラスの不動産情報サイト「恵比寿不動産」を運営。オーナー様の事情でネットに掲載できない未公開物件も多数取り扱い?理想のお部屋をお客様以上に考えてご提案いたします

間取図

間取図

外観

外観

その他の画像
  • リビング
  • エントランス
  • 共有部分
  • 駐車場
  • 外観
  • キッチン
  • 洗面
  • バス/シャワー
  • ショッピング施設
    • とりあえず保存
    • お問い合わせ
    交通

    都営新宿線 曙橋駅 徒歩7分

    その他の交通

    都営大江戸線 牛込柳町駅 徒歩10分

    都営大江戸線 若松河田駅 徒歩9分

    所在地 東京都新宿区市谷仲之町
    物件種目 賃貸マンション
    賃料 17.3万円 管理費等 7,000円
    敷金 / 保証金 1ヶ月 / なし 礼金 1ヶ月
    敷引 保証金償却
    その他一時金 なし 保険等
    維持費等 クレジットカード決済 初期費用可
    間取り 1LDK(LDK8.6帖 洋室5.2帖) 専有面積 35.42m²
    築年月 2016年11月(築9年2ヶ月) 階建 / 階 6階建 / 3階
    建物構造 RC 総戸数
    主要採光面 北西 駐車場
    バイク置き場 駐輪場
    建物名・部屋番号 メゾンカルム市谷仲之町 313 ペット
    アピールポイント Google口コミ★4.7評価!物件数トップクラスの不動産情報サイト「恵比寿不動産」を運営。高級シリーズ物件からリノベージョン済み物件・デザイナーズ物件・ペット飼育可能物件など豊富に取り扱っています!オーナー様の事情でネットに掲載できない未公開物件も多数取り扱い?これらの情報は当社の営業マンが一つ一つ足で稼いで取得したものであり、エリア周辺の事業会社や所有者との繋がりなど地域密着で真摯に営業しているからこそ、集められる情報です。当社ホームページでの物件情報量はどこにも負けません!サイト上に気になる物件がなかった方も、まずはお気軽にお問い合わせください。またInstagramでは「理想の家と出逢えるメディア」アカウントを運営しており、魅力的な新着物件を日々ご紹介しておりますので、物件探しをしている方は是非Instagramのアカウントもフォローして下さい!
    リフォーム履歴
    リノベーション履歴
    備考
    管理形態/管理員の勤務形態:-/-
    エネルギー消費性能
    断熱性能
    目安光熱費
    バス・トイレ バス・トイレ別、追焚機能、シャワー、トイレ
    キッチン システムキッチン
    セキュリティー オートロック、モニター付インターホン
    収納 収納スペース
    設備・サービス 室内洗濯機置場、給湯、エアコン
    TV・通信 CS、BS端子
    その他 宅配BOX、バルコニー、エレベーター
    契約期間 2年 現況 空家
    条件等 入居可能時期 相談
    更新料 新賃料 1ヶ月 物件番号 1173617612
    情報公開日 2025年11月7日 次回更新予定日 2025年12月22日
    ケータイ用バーコード

    QRコード

    スマートフォンでこの物件を見る
    スマートフォンからもこの物件をご覧になれます。
    ※「-」と表示されている項目については、情報提供会社にご確認ください。

    この物件の周辺情報

    周辺施設 コモレモール
    距離 1290m
    周辺施設 ユニクロ市ケ谷駅店
    距離 1480m
    周辺施設 Santoku河田店
    距離 280m
    周辺施設 まいばすけっと曙橋駅前店
    距離 360m
    周辺施設 ローソン市谷仲之町店
    距離 270m
    周辺施設 セブンイレブン新宿曙橋駅東店
    距離 290m
    周辺施設 ココカラファイン曙橋店
    距離 330m
    周辺施設 どらっぐぱぱす曙橋店
    距離 490m

    クイックお問い合わせ

    ここから簡単にお問い合わせをすることができます。
    (SSLでの暗号化での送信を希望されるお客さまは こちら よりお問い合わせください)

    お問い合わせ内容(必須)
    お名前(必須) 姓  名 
    メールアドレス(必須)
    ※携帯電話のメールアドレスをご入力される方はこちらをご確認ください
    電話番号(必須)
    - -

    ※入力いただいた電話番号へSMSまたは音声でパスワードをご連絡します。

    携帯電話の番号をご入力の方へ

    携帯電話の番号をご入力の方へ
    確認画面にて送信ボタンをクリックするとSMSが携帯電話に届きます。
    そのSMSに記載のパスワード(認証番号)を入力し、お問い合わせを完了してください。
    尚、SMSの送信者番号は 0005 202 760 となります。
    これはアットホームの固定番号です。

    備考欄 希望条件、物件案内希望日、質問などがございましたらご記入ください。
    お問い合わせを行う前に「個人情報の取り扱いについて」を必ずお読みください。
    「個人情報の取り扱いについて」に同意いただいた場合は「上記にご同意の上 確認画面へ進む」のボタンをクリックしてください。

    個人情報の取り扱いについて

    皆さまが送付された個人情報はアットホーム(株)のサーバを経由し、お問い合わせ先の不動産会社にメールまたはFAXにて転送されるためアットホーム(株)にも保管されます。アットホーム(株)で保管された個人情報の取り扱いについては、【こちら】をご覧ください。
    また、本画面でご記入いただいた個人情報は、お問い合わせ先の不動産会社でも保管します。 お問い合わせ先の不動産会社が保管する個人情報の取り扱いについては、不動産会社に直接お問い合わせください。

    情報提供会社

    情報提供会社

    恵比寿不動産 (株)ライフアドバンス

    東京都知事免許(3)第97301号

    交通:
    JR山手線/恵比寿駅 徒歩3分
    東京都渋谷区東3丁目25ー11 TOKYU REIT恵比寿ビル4階
    TEL:
    03-6421-0540
    FAX:
    03-6421-0541
    所属団体:
    (公社)全日本不動産協会会員

    取引態様:仲介

    • 会社情報
    • 00163198
    スマートフォンで
    この不動産会社を見る
    QRコード
    • とりあえず保存
    • お問い合わせ
    • 提携サイト等より掲載されている物件情報につきましては、不動産会社詳細情報にリンクされていないものがあります。
    • 物件に関するお問合せは、物件詳細ページの「情報提供会社」に表示されている不動産会社へ直接お願いいたします。
    • 間取図は、現況を優先させていただきます。
    • 映像は物件の一部を撮影したものです。物件の契約にあたっての最終判断はご自身の判断に基づいて行ってください。
    • 仲介手数料について仲介手数料

    アットホームは物件情報の適正化に努めております。 内容に誤りがある場合にはこちらへご連絡ください。

    【埼玉住まい情報】では、日本全国の物件から賃貸マンションや賃貸アパート・賃貸一戸建て等の賃貸住宅情報、新築マンション・分譲マンションや中古マンション等の売買マンション情報、新築一戸建てや中古一戸建てなどの戸建住宅、 土地など、総合的な不動産住宅情報検索サービスを提供致します。
    【埼玉住まい情報】から、選りすぐりの不動産物件を探してみましょう。

    【免責事項】
    このコーナーの運営はアットホーム株式会社(https://www.athome.co.jp/)が行っています。
    このコーナーに掲載している物件情報は、「アットホーム不動産情報ネットワーク」に加盟する不動産会社等(情報提供元)から提供されています。信頼性の高い情報提供が行えるよう、最大限の努力をしておりますが、その内容を保証するものではありません。 利用者のみなさまと各情報提供元との取引に起因する損害および情報が掲載されたことに起因する損害等については、株式会社イーシティ埼玉、およびアットホームは一切責任を負いません。
    各物件情報の内容や画像等はすべて現況を優先させていただきます。
    お取引等(お取引の準備、資金調達等を含みます)の際には、内容や契約条件等について、各情報提供元より十分な説明を受け、ご自身でご確認の上、判断してください。
    このコーナーへの物件情報のご掲載、その他不動産業務ソリューション等についての不動産会社様のお問合せはこちらからお願いいたします。

    物件画像: