東京都港区西新橋3丁目(御成門駅)の賃貸:物件詳細
交通 所在地 |
駅徒歩 |
賃料 管理費等 |
敷金/保証金 礼金 |
間取り 面積 |
物件種目 築年月 |
|
都営三田線/御成門
東京都港区西新橋3丁目
|
6分
|
48万円
なし
|
1ヶ月 / なし
2ヶ月
|
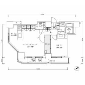
1LDK
60.92m²
|
賃貸マンション
2007年2月(築18年11ヶ月)
|
ペット相談、フロントサービス、常時ゴミ出し可能
|
|
間取図
|
外観
|
その他の画像
|
| 交通 | 都営三田線 御成門駅 徒歩6分 |
|---|
| その他の交通 | 東京メトロ日比谷線 神谷町駅 徒歩7分 東京メトロ日比谷線 虎ノ門ヒルズ駅 徒歩8分 |
| 所在地 |
東京都港区西新橋3丁目
|
| 物件種目 |
賃貸マンション |
| 賃料 |
48万円 |
管理費等 |
なし |
| 敷金 / 保証金 |
1ヶ月 / なし |
礼金 |
2ヶ月 |
| 敷引 |
- |
保証金償却 |
- |
| その他一時金 |
室内清掃費用:113,920円、鍵交換代等:16,500円~ |
保険等 |
要 |
| 維持費等 |
口座振替事務手数料:110円/月 |
| 間取り |
1LDK |
専有面積 |
60.92m² |
| 築年月 |
2007年2月(築18年11ヶ月)
|
階建 / 階 |
地上31階地下1階建 / 27階 |
| 建物構造 |
RC |
総戸数 |
- |
| 主要採光面 |
西 |
駐車場 |
無 |
| バイク置き場 |
- |
駐輪場 |
- |
| 建物名・部屋番号 |
パークキューブ愛宕山タワー 2701 |
ペット |
相談 |
| アピールポイント |
Google口コミ★4.7評価!物件数トップクラスの不動産情報サイト「恵比寿不動産」を運営。高級シリーズ物件からリノベージョン済み物件・デザイナーズ物件・ペット飼育可能物件など豊富に取り扱っています!オーナー様の事情でネットに掲載できない未公開物件も多数取り扱い?これらの情報は当社の営業マンが一つ一つ足で稼いで取得したものであり、エリア周辺の事業会社や所有者との繋がりなど地域密着で真摯に営業しているからこそ、集められる情報です。当社ホームページでの物件情報量はどこにも負けません!サイト上に気になる物件がなかった方も、まずはお気軽にお問い合わせください。またInstagramでは「理想の家と出逢えるメディア」アカウントを運営しており、魅力的な新着物件を日々ご紹介しておりますので、物件探しをしている方は是非Instagramのアカウントもフォローして下さい! |
| リフォーム履歴 |
- |
| リノベーション履歴 |
- |
| 備考 |
賃貸保証等:加入要(初回保証委託料(最低20,000円):月額賃料等の50%、 2年目以降:9,600円/年)
管理形態/管理員の勤務形態:-/-
|
| エネルギー消費性能 |
- |
| 断熱性能 |
- |
| 目安光熱費 |
- |
| バス・トイレ |
バス・トイレ別、浴室乾燥機、洗面所独立、洗面所、トイレ |
| キッチン |
システムキッチン、食器乾燥機、グリル |
| セキュリティー |
モニター付オートロック、オートロック |
| 収納 |
ウォークインクローゼット、クローゼット |
| 設備・サービス |
室内洗濯機置場、フローリング、エアコン |
| TV・通信 |
インターネット対応、ケーブルTV、CS、BS端子 |
| その他 |
宅配BOX、バルコニー、エレベーター |
| 契約期間 |
2年 |
現況 |
空家 |
| 条件等 |
- |
入居可能時期 |
2025年12月中旬予定 |
| 更新料 |
新賃料 1ヶ月 |
物件番号 |
1173800118 |
| 情報公開日 |
2025年12月9日 |
次回更新予定日 |
2025年12月23日 |
| ケータイ用バーコード |
- スマートフォンでこの物件を見る
- スマートフォンからもこの物件をご覧になれます。
|
※「-」と表示されている項目については、情報提供会社にご確認ください。
| 周辺施設 |
虎ノ門ヒルズ |
| 距離 |
350m |
写真を見る |
| 周辺施設 |
泉ガーデン |
| 距離 |
1370m |
写真を見る |
| 周辺施設 |
成城石井愛宕グリーンヒルズ店 |
| 距離 |
570m |
| 周辺施設 |
IDC OTSUKA Bedroom Gallery GINZA |
| 距離 |
1660m |
| 周辺施設 |
スターバックスコーヒー愛宕グリーンヒルズ店 |
| 距離 |
370m |
ここから簡単にお問い合わせをすることができます。
(SSLでの暗号化での送信を希望されるお客さまは
こちら
よりお問い合わせください)
お問い合わせを行う前に
「個人情報の取り扱いについて」を必ずお読みください。
「個人情報の取り扱いについて」に同意いただいた場合は「上記にご同意の上 確認画面へ進む」のボタンをクリックしてください。
個人情報の取り扱いについて
皆さまが送付された個人情報はアットホーム(株)のサーバを経由し、お問い合わせ先の不動産会社にメールまたはFAXにて転送されるためアットホーム(株)にも保管されます。アットホーム(株)で保管された個人情報の取り扱いについては、【こちら】をご覧ください。
また、本画面でご記入いただいた個人情報は、お問い合わせ先の不動産会社でも保管します。 お問い合わせ先の不動産会社が保管する個人情報の取り扱いについては、不動産会社に直接お問い合わせください。
東京都知事免許(3)第97301号 |
|---|
- 交通:
- JR山手線/恵比寿駅 徒歩3分
- 東京都渋谷区東3丁目25ー11 TOKYU REIT恵比寿ビル4階
- TEL:
- 03-6421-0540
- FAX:
- 03-6421-0541
- 所属団体:
- (公社)全日本不動産協会会員
取引態様:仲介  - 00163198
|
- スマートフォンで
この不動産会社を見る

|
- 提携サイト等より掲載されている物件情報につきましては、不動産会社詳細情報にリンクされていないものがあります。
- 物件に関するお問合せは、物件詳細ページの「情報提供会社」に表示されている不動産会社へ直接お願いいたします。
- 間取図は、現況を優先させていただきます。
- 映像は物件の一部を撮影したものです。物件の契約にあたっての最終判断はご自身の判断に基づいて行ってください。
- 仲介手数料について

アットホームは物件情報の適正化に努めております。
内容に誤りがある場合にはこちらへご連絡ください。