東京都北区滝野川7丁目(西巣鴨駅)の賃貸:物件詳細
交通 所在地 |
駅徒歩 |
賃料 管理費等 |
敷金/保証金 礼金 |
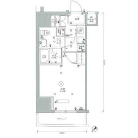
間取り 面積 |
物件種目 築年月 |
|
都営三田線/西巣鴨
東京都北区滝野川7丁目
|
7分
|
9.72万円
9,800円
|
1ヶ月 / なし
1ヶ月
|
1K
26.67m²
|
賃貸マンション
2015年8月(築10年8ヶ月)
|
分譲タイプ、常時ゴミ出し可能、角部屋、外観タイル張り、保証人不要
|
|
間取図
間取図
|
外観
|
<
その他の画像
>
|
| 交通 | 都営三田線 西巣鴨駅 徒歩7分 |
|---|
| その他の交通 | JR埼京線 板橋駅 徒歩10分 東武東上線 北池袋駅 徒歩10分 |
| 所在地 |
東京都北区滝野川7丁目
|
| 物件種目 |
賃貸マンション |
| 賃料 |
9.72万円 |
管理費等 |
9,800円 |
| 敷金 / 保証金 |
1ヶ月 / なし |
礼金 |
1ヶ月 |
| 敷引 |
- |
保証金償却 |
- |
| その他一時金 |
鍵交換代:29,700円、消火剤:5,500円 |
保険等 |
要 |
| 維持費等 |
少額短期保険:1,000円/月、生活安心パック:1,650円/月 |
| 間取り |
1K(洋8.4) |
専有面積 |
26.67m² |
| 築年月 |
2015年8月(築10年8ヶ月)
|
階建 / 階 |
12階建 / 7階 |
| 建物構造 |
RC |
総戸数 |
- |
| 主要採光面 |
北西 |
駐車場 |
無 |
| バイク置き場 |
- |
駐輪場 |
有 |
| 建物名・部屋番号 |
スカイコートパレス西巣鴨Ⅱ 702 |
ペット |
-
|
| リフォーム履歴 |
- |
| リノベーション履歴 |
- |
| 備考 |
賃貸保証等:加入要(エポスカード ※〔初回保証委託料〕(家賃+管理費+生活安心パック)×50%〔月々〕総賃料×1.4%)
管理形態/管理員の勤務形態:-/巡回
バルコニー:3.73m²
単身者限定、管理人巡回
マンション探しはスカイコート賃貸センター
※退去時に解約事務手数料12,000円+税がかかります。
|
| エネルギー消費性能 |
- |
| 断熱性能 |
- |
| 目安光熱費 |
- |
| バス・トイレ |
バス・トイレ別、浴室乾燥機、追焚機能、洗面所独立、洗面所、洗面台、温水洗浄便座 |
| キッチン |
システムキッチン、2口コンロ、ガスコンロ付 |
| セキュリティー |
オートロック、モニター付インターホン、防犯カメラ |
| 収納 |
クローゼット、シューズボックス |
| 設備・サービス |
室内洗濯機置場、給湯、フローリング、都市ガス、エアコン、照明器具 |
| TV・通信 |
光ファイバー、CS、BS端子 |
| その他 |
宅配BOX、バルコニー、駐輪場、エレベーター |
| 契約期間 |
2年 |
現況 |
居住中 |
| 条件等 |
- |
入居可能時期 |
2026年4月上旬予定 |
| 仲介手数料 |
1.1ヶ月 |
|
|
| 更新料 |
新賃料 1.5ヶ月 |
物件番号 |
1173850309 |
| 情報公開日 |
2026年2月27日 |
次回更新予定日 |
2026年3月27日 |
| ケータイ用バーコード |
- スマートフォンでこの物件を見る
- スマートフォンからもこの物件をご覧になれます。
|
※「-」と表示されている項目については、情報提供会社にご確認ください。
| 周辺施設 |
ビッグ・エー豊島上池袋店 |
| 距離 |
352m |
写真を見る |
| 周辺施設 |
ピーコックストア上池袋店 |
| 距離 |
442m |
写真を見る |
| 周辺施設 |
まいばすけっと板橋駅南店 |
| 距離 |
529m |
写真を見る |
| 周辺施設 |
ファミリーマート上池袋店 |
| 距離 |
267m |
写真を見る |
| 周辺施設 |
セブンイレブン豊島上池袋1丁目店 |
| 距離 |
317m |
| 周辺施設 |
マツモトキヨシ滝野川市場通り店 |
| 距離 |
512m |
ここから簡単にお問い合わせをすることができます。
(SSLでの暗号化での送信を希望されるお客さまは
こちら
よりお問い合わせください)
お問い合わせを行う前に
「個人情報の取り扱いについて」を必ずお読みください。
「個人情報の取り扱いについて」に同意いただいた場合は「上記にご同意の上 確認画面へ進む」のボタンをクリックしてください。
個人情報の取り扱いについて
皆さまが送付された個人情報はアットホーム(株)のサーバを経由し、お問い合わせ先の不動産会社にメールまたはFAXにて転送されるためアットホーム(株)にも保管されます。アットホーム(株)で保管された個人情報の取り扱いについては、【こちら】をご覧ください。
また、本画面でご記入いただいた個人情報は、お問い合わせ先の不動産会社でも保管します。 お問い合わせ先の不動産会社が保管する個人情報の取り扱いについては、不動産会社に直接お問い合わせください。
国土交通大臣免許(6)第5521号 |
|---|
- 交通:
- 都営新宿線/曙橋駅 徒歩1分
- 東京都新宿区住吉町2-14 四谷曙橋ビル1階
- TEL:
- 03-5919-0088
- FAX:
- 03-5919-0070
- 所属団体:
- (一社)不動産協会会員(公社)首都圏不動産公正取引協議会加盟
取引態様:代理  - 00230798
|
- スマートフォンで
この不動産会社を見る

|
- 提携サイト等より掲載されている物件情報につきましては、不動産会社詳細情報にリンクされていないものがあります。
- 物件に関するお問合せは、物件詳細ページの「情報提供会社」に表示されている不動産会社へ直接お願いいたします。
- 間取図は、現況を優先させていただきます。
- 映像は物件の一部を撮影したものです。物件の契約にあたっての最終判断はご自身の判断に基づいて行ってください。
- 仲介手数料について

アットホームは物件情報の適正化に努めております。
内容に誤りがある場合にはこちらへご連絡ください。