東京都板橋区板橋2丁目(板橋区役所前駅)の賃貸:物件詳細
交通 所在地 |
駅徒歩 |
賃料 管理費等 |
敷金/保証金 礼金 |
間取り 面積 |
物件種目 築年月 |
|
都営三田線/板橋区役所前
東京都板橋区板橋2丁目
|
3分
|
7.4万円
4,000円
|
1ヶ月 / なし
1ヶ月
|
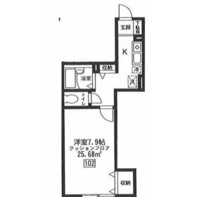
1K
25.68m²
|
賃貸アパート
2003年6月(築22年5ヶ月)
|
南向き、24時間セキュリティー、IT重説対応物件、保証人不要
|
|
間取図
|
外観
|
<
その他の画像
>
|
| 交通 | 都営三田線 板橋区役所前駅 徒歩3分 |
|---|
| その他の交通 | 東武東上線 大山駅 徒歩9分 東武東上線 下板橋駅 徒歩9分 |
| 所在地 |
東京都板橋区板橋2丁目
|
| 物件種目 |
賃貸アパート |
| 賃料 |
7.4万円 |
管理費等 |
4,000円 |
| 敷金 / 保証金 |
1ヶ月 / なし |
礼金 |
1ヶ月 |
| 敷引 |
- |
保証金償却 |
- |
| その他一時金 |
安心入居サポート料/月:1,100円、町会費/月:200円、鍵交換代等:19,800円~ |
保険等 |
要 1年 10,000円 |
| 維持費等 |
- |
クレジットカード決済 |
初期費用可 |
| 間取り |
1K(洋7.9) |
専有面積 |
25.68m² |
| 築年月 |
2003年6月(築22年5ヶ月)
|
階建 / 階 |
3階建 / 1階 |
| 建物構造 |
軽量鉄骨造 |
総戸数 |
- |
| 主要採光面 |
南 |
駐車場 |
近有 25,000円/月 |
| バイク置き場 |
- |
駐輪場 |
有 |
| 建物名・部屋番号 |
フルールウエハラ |
ペット |
-
|
| リフォーム履歴 |
- |
| リノベーション履歴 |
- |
| 備考 |
賃貸保証等:加入要(お気軽にお問い合わせください。初回保証委託料50%、事務手数料毎月賃料の2%)
管理形態/管理員の勤務形態:-/-
IT重説対応物件
内覧~契約まで来店不要で対応出来ます!オンライン内見可能!
エリア問わず一括の案内も承ります。
インターネット公開中の募集条件が全てでは御座いません!
今の時期だから出来る交渉があります!
初期費用の分割・クレジットカード払いなど何でもご相談ください!
最新の空室情報・ご質問などはお気軽に弊社までお問い合わせ下さいませ!
|
| エネルギー消費性能 |
- |
| 断熱性能 |
- |
| 目安光熱費 |
- |
| バス・トイレ |
バス・トイレ別、洗面台、シャワー、トイレ |
| キッチン |
ガスコンロ可 |
| セキュリティー |
モニター付インターホン、ディンプルキー、シャッター雨戸 |
| 収納 |
全居室収納、収納スペース、クローゼット、シューズボックス |
| 設備・サービス |
全居室エアコン、室内洗濯機置場、洗濯機置場、都市ガス給湯、給湯、全居室フローリング、フローリング、都市ガス、エアコン |
| TV・通信 |
インターネット対応、光ファイバー、ケーブルTV |
| その他 |
バルコニー、駐輪場 |
| 契約期間 |
2年 |
現況 |
空家 |
| 条件等 |
- |
入居可能時期 |
即時 |
| 仲介手数料 |
1.1ヶ月 |
|
|
| 更新料 |
新賃料 1ヶ月 |
物件番号 |
1174071013 |
| 情報公開日 |
2025年10月25日 |
次回更新予定日 |
2025年11月8日 |
| ケータイ用バーコード |
- スマートフォンでこの物件を見る
- スマートフォンからもこの物件をご覧になれます。
|
※「-」と表示されている項目については、情報提供会社にご確認ください。
| 周辺施設 |
じゃなさん |
| 距離 |
4008m |
写真を見る |
ここから簡単にお問い合わせをすることができます。
(SSLでの暗号化での送信を希望されるお客さまは
こちら
よりお問い合わせください)
お問い合わせを行う前に
「個人情報の取り扱いについて」を必ずお読みください。
「個人情報の取り扱いについて」に同意いただいた場合は「上記にご同意の上 確認画面へ進む」のボタンをクリックしてください。
個人情報の取り扱いについて
皆さまが送付された個人情報はアットホーム(株)のサーバを経由し、お問い合わせ先の不動産会社にメールまたはFAXにて転送されるためアットホーム(株)にも保管されます。アットホーム(株)で保管された個人情報の取り扱いについては、【こちら】をご覧ください。
また、本画面でご記入いただいた個人情報は、お問い合わせ先の不動産会社でも保管します。 お問い合わせ先の不動産会社が保管する個人情報の取り扱いについては、不動産会社に直接お問い合わせください。
東京都知事免許(1)第108381号 |
|---|
- 交通:
- JR山手線/西日暮里駅 徒歩1分
- 東京都荒川区西日暮里5丁目18-11 パーク2ビル3F
- TEL:
- 03-5615-5257
- FAX:
- 03-5615-5258
- 所属団体:
- (公社)東京都宅地建物取引業協会会員(公社)首都圏不動産公正取引協議会加盟
取引態様:仲介  - 00275610
|
- スマートフォンで
この不動産会社を見る

|
- 提携サイト等より掲載されている物件情報につきましては、不動産会社詳細情報にリンクされていないものがあります。
- 物件に関するお問合せは、物件詳細ページの「情報提供会社」に表示されている不動産会社へ直接お願いいたします。
- 間取図は、現況を優先させていただきます。
- 映像は物件の一部を撮影したものです。物件の契約にあたっての最終判断はご自身の判断に基づいて行ってください。
- 仲介手数料について

アットホームは物件情報の適正化に努めております。
内容に誤りがある場合にはこちらへご連絡ください。