大阪府吹田市千里山東1丁目(関大前駅)の賃貸:物件詳細
交通 所在地 |
駅徒歩 |
賃料 管理費等 |
敷金/保証金 礼金 |
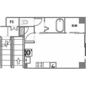
間取り 面積 |
物件種目 築年月 |
|
阪急千里線/関大前
大阪府吹田市千里山東1丁目
|
6分
|
5万円
3,000円
|
なし / なし
10万円
|
ワンルーム
25.00m²
|
賃貸マンション
1979年12月(築46年1ヶ月)
|
角部屋、最上階、IT重説対応物件
|
|
間取図
|
外観
|
<
その他の画像
>
|
| 交通 | 阪急千里線 関大前駅 徒歩6分 |
|---|
| その他の交通 | 阪急千里線 千里山駅 徒歩12分 阪急千里線 豊津駅 徒歩16分 |
| 所在地 |
大阪府吹田市千里山東1丁目
|
| 物件種目 |
賃貸マンション |
| 賃料 |
5万円 |
管理費等 |
3,000円 |
| 敷金 / 保証金 |
なし / なし |
礼金 |
10万円 |
| 敷引 |
- |
保証金償却 |
- |
| その他一時金 |
なし |
保険等 |
要 2年 17,000円 |
| 維持費等 |
- |
クレジットカード決済 |
初期費用可 |
| 間取り |
ワンルーム |
専有面積 |
25.00m² |
| 築年月 |
1979年12月(築46年1ヶ月)
|
階建 / 階 |
3階建 / 3階 |
| 建物構造 |
鉄骨造 |
総戸数 |
- |
| 主要採光面 |
|
駐車場 |
無 |
| バイク置き場 |
- |
駐輪場 |
有 無料 |
| 建物名・部屋番号 |
パル千里 |
ペット |
-
|
| アピールポイント |
関西大学目の前の物件です。学生様にお勧めですよ。ベランダは南向きで日当たり良好です。 |
| リフォーム履歴 |
- |
| リノベーション履歴 |
- |
| 備考 |
賃貸保証等:加入要(賃貸保証料:26500円 オリコフォレントインシュア■初回保証料:総家賃×50% ■支払い手数料(月額):総家賃1.5%)
管理形態/管理員の勤務形態:-/-
IT重説対応物件
関西大学目の前の物件です。学生様にお勧めですよ。ベランダは南向きで日当たり良好です。
|
| エネルギー消費性能 |
- |
| 断熱性能 |
- |
| 目安光熱費 |
- |
| バス・トイレ |
バス・トイレ別、トイレ |
| キッチン |
2口コンロ、ガスコンロ付、ガスコンロ可 |
| セキュリティー |
- |
| 収納 |
ウォークインクローゼット、クローゼット |
| 設備・サービス |
室内洗濯機置場、都市ガス給湯、給湯、フローリング、都市ガス、エアコン |
| TV・通信 |
インターネット対応、光ファイバー、ケーブルTV |
| その他 |
バルコニー、駐輪場 |
| 契約期間 |
2年 |
現況 |
空家 |
| 条件等 |
- |
入居可能時期 |
即時 |
| 仲介手数料 |
0.55ヶ月 |
|
|
| 更新料 |
なし |
物件番号 |
1174093515 |
| 情報公開日 |
2025年11月30日 |
次回更新予定日 |
2025年12月28日 |
| ケータイ用バーコード |
- スマートフォンでこの物件を見る
- スマートフォンからもこの物件をご覧になれます。
|
※「-」と表示されている項目については、情報提供会社にご確認ください。
| 周辺施設 |
エネオス千里山SS |
| 距離 |
490m |
写真を見る |
| 周辺施設 |
(株)大阪洋書 |
| 距離 |
40m |
写真を見る |
| 周辺施設 |
松屋関大前店 |
| 距離 |
100m |
写真を見る |
| 周辺施設 |
ローソンストア100関大前店 |
| 距離 |
1m |
写真を見る |
| 周辺施設 |
Maxvalu千里山店 |
| 距離 |
880m |
写真を見る |
| 周辺施設 |
医療法人篤友会千里山病院 |
| 距離 |
1280m |
写真を見る |
| 周辺施設 |
関大前駅(阪急 千里線) |
| 距離 |
530m |
写真を見る |
| 周辺施設 |
スギ薬局千里山店 |
| 距離 |
790m |
写真を見る |
ここから簡単にお問い合わせをすることができます。
(SSLでの暗号化での送信を希望されるお客さまは
こちら
よりお問い合わせください)
お問い合わせを行う前に
「個人情報の取り扱いについて」を必ずお読みください。
「個人情報の取り扱いについて」に同意いただいた場合は「上記にご同意の上 確認画面へ進む」のボタンをクリックしてください。
個人情報の取り扱いについて
皆さまが送付された個人情報はアットホーム(株)のサーバを経由し、お問い合わせ先の不動産会社にメールまたはFAXにて転送されるためアットホーム(株)にも保管されます。アットホーム(株)で保管された個人情報の取り扱いについては、【こちら】をご覧ください。
また、本画面でご記入いただいた個人情報は、お問い合わせ先の不動産会社でも保管します。 お問い合わせ先の不動産会社が保管する個人情報の取り扱いについては、不動産会社に直接お問い合わせください。
国土交通大臣免許(7)第5206号 |
|---|
- 交通:
- 阪急京都線/茨木市駅 徒歩1分
- 大阪府茨木市永代町5番 ソシオ1 1階
- TEL:
- 0120-958-133
- FAX:
- 072-645-5666
- 所属団体:
- (一社)大阪府宅地建物取引業協会会員(公社)近畿地区不動産公正取引協議会加盟
取引態様:仲介  - 50111693
|
- スマートフォンで
この不動産会社を見る

|
- 提携サイト等より掲載されている物件情報につきましては、不動産会社詳細情報にリンクされていないものがあります。
- 物件に関するお問合せは、物件詳細ページの「情報提供会社」に表示されている不動産会社へ直接お願いいたします。
- 間取図は、現況を優先させていただきます。
- 映像は物件の一部を撮影したものです。物件の契約にあたっての最終判断はご自身の判断に基づいて行ってください。
- 仲介手数料について

アットホームは物件情報の適正化に努めております。
内容に誤りがある場合にはこちらへご連絡ください。