神奈川県川崎市高津区瀬田(二子新地駅)の賃貸:物件詳細
交通 所在地 |
駅徒歩 |
賃料 管理費等 |
敷金/保証金 礼金 |
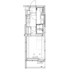
間取り 面積 |
物件種目 築年月 |
|
東急田園都市線/二子新地
神奈川県川崎市高津区瀬田
|
5分
|
12.35万円
10,000円
|
なし / なし
なし
|
1K
25.35m²
|
賃貸マンション
2025年11月(築1年未満)
|
ペット相談、デザイナーズ、分譲タイプ、常時ゴミ出し可能、角部屋、南向き、二人入居可、24時間換気システム、閑静な住宅街、外観タイル張り、保証人不要
|
|
間取図
|
外観
|
<
その他の画像
>
|
| 交通 | 東急田園都市線 二子新地駅 徒歩5分 |
|---|
| その他の交通 | 東急田園都市線 高津駅 徒歩11分 東急田園都市線 二子玉川駅 徒歩13分 |
| 所在地 |
神奈川県川崎市高津区瀬田
|
| 物件種目 |
賃貸マンション |
| 賃料 |
12.35万円 |
管理費等 |
10,000円 |
| 敷金 / 保証金 |
なし / なし |
礼金 |
なし |
| 敷引 |
- |
保証金償却 |
- |
| その他一時金 |
退去時ルームクリーニング費用:38,500円、消臭抗菌サービス:11,000円、契約事務手数料:11,000円 |
保険等 |
要 |
| 維持費等 |
RBI安心サポート:2,700円/月 |
クレジットカード決済 |
初期費用可 |
| 間取り |
1K |
専有面積 |
25.35m² |
| 築年月 |
2025年11月(築1年未満)
|
階建 / 階 |
5階建 / 2階 |
| 建物構造 |
RC |
総戸数 |
- |
| 主要採光面 |
南 |
駐車場 |
- |
| バイク置き場 |
- |
駐輪場 |
有 |
| 建物名・部屋番号 |
GENOVIA二子新地(ジェノヴィア二子新地) 201 |
ペット |
小型犬可・ 大型犬可・ 猫可 |
| アピールポイント |
初期費用分割払可能!
※3回~最長60回払い可(要審査有)
※クレジットカード払いではありません
※分割払いを利用して住みたい物件に住もう!
契約の一部現金支払い・一部分割払いも可能です! |
| リフォーム履歴 |
- |
| リノベーション履歴 |
- |
| 備考 |
賃貸保証等:加入要(「RBI」初回保証料:40%(ペット飼育時60%) 外国籍:100%+外国籍サポート年間10,800円 (※審査により変更有・要確認))
管理形態/管理員の勤務形態:-/-
初期費用分割払可能!※3回~最長60回払い可(要審査有)
初期費用分割を利用して住みたい物件に住もう!
契約の一部現金支払い・一部分割払いも可能です!
クレジットカードは利用しない分割です!
※クレジットカード決済も可
※最大100万円まで分割可能です
短期解約違約金有り:1年未満での解約の場合違約金が1ヶ月分かかります。
|
| エネルギー消費性能 |
- |
| 断熱性能 |
- |
| 目安光熱費 |
- |
| バス・トイレ |
バス・トイレ別、浴室乾燥機、シャワー付洗面化粧台、洗面所独立、洗面台、シャワー、温水洗浄便座、トイレ |
| キッチン |
システムキッチン、2口コンロ、ガスコンロ付 |
| セキュリティー |
オートロック、モニター付インターホン、ディンプルキー、ダブルロックドア、防犯カメラ |
| 収納 |
収納スペース、クローゼット、シューズボックス |
| 設備・サービス |
全居室エアコン、室内洗濯機置場、給湯、全居室フローリング、フローリング、都市ガス、エアコン |
| TV・通信 |
インターネット対応、インターネット使用料無料 |
| その他 |
宅配BOX、バルコニー、駐輪場、エレベーター |
| 契約期間 |
2年 |
現況 |
空家 |
| 条件等 |
- |
入居可能時期 |
即時 |
| 更新料 |
新賃料 1ヶ月 |
物件番号 |
1174143518 |
| 情報公開日 |
2025年12月11日 |
次回更新予定日 |
2025年12月27日 |
| ケータイ用バーコード |
- スマートフォンでこの物件を見る
- スマートフォンからもこの物件をご覧になれます。
|
※「-」と表示されている項目については、情報提供会社にご確認ください。
| 周辺施設 |
セブン-イレブン 川崎諏訪店 |
| 距離 |
270m |
写真を見る |
| 周辺施設 |
キッチンオリジン二子新地店 |
| 距離 |
220m |
| 周辺施設 |
まいばすけっと川崎二子新地店 |
| 距離 |
300m |
写真を見る |
| 周辺施設 |
富士ガーデン二子新地駅前店 |
| 距離 |
330m |
写真を見る |
| 周辺施設 |
セブン‐イレブン/二子新地店 |
| 距離 |
600m |
写真を見る |
| 周辺施設 |
ココカラファイン二子新地店 |
| 距離 |
350m |
写真を見る |
ここから簡単にお問い合わせをすることができます。
(SSLでの暗号化での送信を希望されるお客さまは
こちら
よりお問い合わせください)
お問い合わせを行う前に
「個人情報の取り扱いについて」を必ずお読みください。
「個人情報の取り扱いについて」に同意いただいた場合は「上記にご同意の上 確認画面へ進む」のボタンをクリックしてください。
個人情報の取り扱いについて
皆さまが送付された個人情報はアットホーム(株)のサーバを経由し、お問い合わせ先の不動産会社にメールまたはFAXにて転送されるためアットホーム(株)にも保管されます。アットホーム(株)で保管された個人情報の取り扱いについては、【こちら】をご覧ください。
また、本画面でご記入いただいた個人情報は、お問い合わせ先の不動産会社でも保管します。 お問い合わせ先の不動産会社が保管する個人情報の取り扱いについては、不動産会社に直接お問い合わせください。
神奈川県知事免許(9)第16250号 |
|---|
- 交通:
- 東急田園都市線/溝の口駅 徒歩5分
- 神奈川県川崎市高津区溝口1丁目18-6 溝ノ口第7三信ビル3F
- TEL:
- 044-829-1231
- FAX:
- 044-829-1232
- 所属団体:
- (公社)神奈川県宅地建物取引業協会会員
取引態様:仲介  - 00102731
|
- スマートフォンで
この不動産会社を見る

|
- 提携サイト等より掲載されている物件情報につきましては、不動産会社詳細情報にリンクされていないものがあります。
- 物件に関するお問合せは、物件詳細ページの「情報提供会社」に表示されている不動産会社へ直接お願いいたします。
- 間取図は、現況を優先させていただきます。
- 映像は物件の一部を撮影したものです。物件の契約にあたっての最終判断はご自身の判断に基づいて行ってください。
- 仲介手数料について

アットホームは物件情報の適正化に努めております。
内容に誤りがある場合にはこちらへご連絡ください。