大阪府大阪市東成区深江南3丁目(新深江駅)の賃貸:物件詳細
交通 所在地 |
駅徒歩 |
賃料 管理費等 |
敷金/保証金 礼金 |
間取り 面積 |
物件種目 築年月 |
|
地下鉄千日前線/新深江
大阪府大阪市東成区深江南3丁目
|
8分
|
5.53万円
6,770円
|
なし / なし
1ヶ月
|
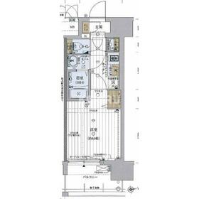
1K
21.83m²
|
賃貸マンション
2020年1月(築6年2ヶ月)
|
ペット相談、分譲タイプ、常時ゴミ出し可能、24時間セキュリティー、24時間換気システム、閑静な住宅街、外観タイル張り、IT重説対応物件
|
|
間取図
|
外観
|
<
その他の画像
>
|
| 交通 | 地下鉄千日前線 新深江駅 徒歩8分 |
|---|
| その他の交通 | 近鉄大阪線 布施駅 徒歩10分 地下鉄千日前線 小路駅 徒歩14分 |
| 所在地 |
大阪府大阪市東成区深江南3丁目
|
| 物件種目 |
賃貸マンション |
| 賃料 |
5.53万円 |
管理費等 |
6,770円 |
| 敷金 / 保証金 |
なし / なし |
礼金 |
1ヶ月 |
| 敷引 |
- |
保証金償却 |
- |
| その他一時金 |
なし、鍵交換代等:33,000円~ |
保険等 |
要 |
| 維持費等 |
- |
クレジットカード決済 |
初期費用可 |
| 間取り |
1K(洋6) |
専有面積 |
21.83m² |
| 築年月 |
2020年1月(築6年2ヶ月)
|
階建 / 階 |
13階建 / 6階 |
| 建物構造 |
RC |
総戸数 |
- |
| 主要採光面 |
東 |
駐車場 |
- |
| バイク置き場 |
有 |
駐輪場 |
有 |
| 建物名・部屋番号 |
レジュールアッシュOSAKA新深江 603 |
ペット |
相談 |
| アピールポイント |
室内設備は洗面所独立・浴室乾燥機などが揃っており、とても充実しています。収納はクロゼット・シューズボックスなど豊富なので、広々と空間を利用することも可能です。共用部には宅配ボックス・ゴミ出し24時間OKなどが揃っており、とても充実しています。セキュリティ面は、TVインターホン・オートロックなど充実しているので安心して生活できます。初期費用をカードでお支払いいただけるので、カードで決済したい方にもおすすめです。ごみ置き場も近くにあり、使い勝手もいいです。管理会社がバッチリ巡回している物件。ペット好きにもうれしい、ペット相談可の物件です。不法投棄やいたずらを防止して入居者が快適に暮らせるように、防犯カメラが付いています。フローリング張りのマンションなので床掃除が簡単です。こちらは駐輪場付きの物件です(^_^) |
| リフォーム履歴 |
- |
| リノベーション履歴 |
- |
| 備考 |
賃貸保証等:加入要(日本セーフティー 初回保証料40% 無50%初回保証料40% 無50%)
管理形態/管理員の勤務形態:-/巡回
IT重説対応物件、管理人巡回
セキュリティ面は、オートロック・TVインターホンなど充実しているので、防犯対策もばっちりです。室内設備は洗面所独立・浴室乾燥機など充実した設備を備え付けています。収納はクロゼット・シューズボックスなどが備え付けられているので、衣類や日用品の収納に重宝します。共用部にはゴミ出し24時間OK・宅配ボックスなどが揃っております。自立したキッチンのある1K物件です。駐輪場付きのマンションです。暑い夏、寒い冬には必須のエアコンが付いています。電車移動の多い方に嬉しい駅から徒歩8分の物件です。閑静な住宅地にあるマンションです。こちらの物件はマンションです。地上13階建てで景色も良く、多数のお問い合わせをいただいております(^_^)
セキュリティ面は、オートロック・TVインターホンなど充実しているので、防犯対策もばっちりです。室内設備は洗面所独立・浴室乾燥機など充実した設備を備え付けています。収納はクロゼット・シューズボックスなどが備え付けられているので、衣類や日用品の収納に重宝します。共用部にはゴミ出し24時間OK・宅配ボックスなどが揃っております。自立したキッチンのある1K物件です。駐輪場付き
|
| エネルギー消費性能 |
- |
| 断熱性能 |
- |
| 目安光熱費 |
- |
| バス・トイレ |
バス・トイレ別、浴室乾燥機、シャワー付洗面化粧台、洗面所独立、洗面所、洗面台、温水洗浄便座、トイレ |
| キッチン |
システムキッチン、2口コンロ、ガスコンロ可 |
| セキュリティー |
モニター付オートロック、オートロック、モニター付インターホン、ディンプルキー、防犯カメラ |
| 収納 |
収納スペース、クローゼット、シューズボックス |
| 設備・サービス |
室内洗濯機置場、洗濯機置場、都市ガス給湯、給湯、全居室フローリング、フローリング、都市ガス、エアコン、冷房 |
| TV・通信 |
インターネット対応、インターネット使用料無料、CS、BS端子 |
| その他 |
宅配BOX、バイク置き場、バルコニー、駐輪場、エレベーター |
| 契約期間 |
2年 |
現況 |
空家 |
| 条件等 |
- |
入居可能時期 |
即時 |
| 更新料 |
- |
物件番号 |
1174267219 |
| 情報公開日 |
2026年1月27日 |
次回更新予定日 |
2026年2月10日 |
| ケータイ用バーコード |
- スマートフォンでこの物件を見る
- スマートフォンからもこの物件をご覧になれます。
|
※「-」と表示されている項目については、情報提供会社にご確認ください。
| 周辺施設 |
MEGAドン・キホーテ深江橋店 |
| 距離 |
1001m |
写真を見る |
| 周辺施設 |
セブンイレブン 大阪深江北2丁目店 |
| 距離 |
1038m |
写真を見る |
| 周辺施設 |
セブンイレブン 大阪諏訪4丁目店 |
| 距離 |
1672m |
写真を見る |
| 周辺施設 |
セブンイレブン 大阪諏訪3丁目店 |
| 距離 |
1670m |
写真を見る |
| 周辺施設 |
スギ薬局 東今里店 |
| 距離 |
1935m |
写真を見る |
ここから簡単にお問い合わせをすることができます。
(SSLでの暗号化での送信を希望されるお客さまは
こちら
よりお問い合わせください)
お問い合わせを行う前に
「個人情報の取り扱いについて」を必ずお読みください。
「個人情報の取り扱いについて」に同意いただいた場合は「上記にご同意の上 確認画面へ進む」のボタンをクリックしてください。
個人情報の取り扱いについて
皆さまが送付された個人情報はアットホーム(株)のサーバを経由し、お問い合わせ先の不動産会社にメールまたはFAXにて転送されるためアットホーム(株)にも保管されます。アットホーム(株)で保管された個人情報の取り扱いについては、【こちら】をご覧ください。
また、本画面でご記入いただいた個人情報は、お問い合わせ先の不動産会社でも保管します。 お問い合わせ先の不動産会社が保管する個人情報の取り扱いについては、不動産会社に直接お問い合わせください。
大阪府知事免許(1)第64547号 |
|---|
- 交通:
- JR大阪環状線/京橋駅 徒歩3分
- 大阪府大阪市都島区東野田町2丁目9-13 松和京橋ビル4階
- TEL:
- 06-6379-5102
- FAX:
- 06-6379-5103
- 所属団体:
- (公社)全日本不動産協会会員(公社)近畿地区不動産公正取引協議会加盟
取引態様:仲介  - 50112192
|
- スマートフォンで
この不動産会社を見る

|
- 提携サイト等より掲載されている物件情報につきましては、不動産会社詳細情報にリンクされていないものがあります。
- 物件に関するお問合せは、物件詳細ページの「情報提供会社」に表示されている不動産会社へ直接お願いいたします。
- 間取図は、現況を優先させていただきます。
- 映像は物件の一部を撮影したものです。物件の契約にあたっての最終判断はご自身の判断に基づいて行ってください。
- 仲介手数料について

アットホームは物件情報の適正化に努めております。
内容に誤りがある場合にはこちらへご連絡ください。