不動産 賃貸 マンション等の住宅情報:埼玉住まい情報


千葉県松戸市大谷口(新松戸駅)の賃貸:物件詳細

  • 物件詳細
  • 情報の見方
  • 印刷用画面
交通
所在地
駅徒歩 賃料
管理費等
敷金/保証金
礼金
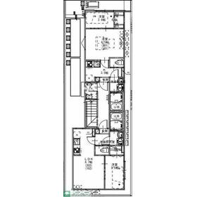
間取り
面積
物件種目
築年月

JR千代田・常磐緩行線/新松戸 新着

千葉県松戸市大谷口

10分

7.8万円

3,500円

なし / なし

7.8万円

1LDK

27.74m²

賃貸アパート

2026年1月
新築 

おすすめPOINT角部屋、二人入居可、24時間換気システム

おすすめコメント

★タウンハウジングはLINE&チャット対応でお手軽にスムーズな物件探しが可能★掲載しきれない他の写真もLINEでお届けできます★土日祝日対応★

間取図

間取図

外観

外観

<
その他の画像
  • リビング
  • 室内
  • キッチン
  • バス/シャワー
  • 洗面
  • トイレ
  • 設備
  • その他
  • 共有部分
  • 設備
  • エントランス
  • ショッピング施設
  • ショッピング施設
  • ショッピング施設
  • ショッピング施設
  • ショッピング施設
  • ショッピング施設
  • ショッピング施設
  • ショッピング施設
>
    • とりあえず保存
    • お問い合わせ
    交通

    JR千代田・常磐緩行線 新松戸駅 徒歩10分

    その他の交通

    JR武蔵野線 新松戸駅 徒歩10分

    流鉄流山線 幸谷駅 徒歩9分

    所在地 千葉県松戸市大谷口
    物件種目 賃貸アパート
    賃料 7.8万円 管理費等 3,500円
    敷金 / 保証金 なし / なし 礼金 7.8万円
    敷引 保証金償却
    その他一時金 室内清掃費用:55,000円 保険等 要 2年 15,600円
    維持費等
    間取り 1LDK 専有面積 27.74m²
    築年月 2026年1月 新築  階建 / 階 3階建 / 2階
    建物構造 木造 総戸数 6戸
    主要採光面 北西 駐車場
    バイク置き場 駐輪場
    建物名・部屋番号 KEIAI RESIDENCE 新松戸I ペット
    アピールポイント ★遠方の方ご来店が難しい方もオンライン対応可能ですので是非一度ご相談くださいませ!お部屋探しはタウンハウジングにお任せ下さい★
    リフォーム履歴
    リノベーション履歴
    備考
    賃貸保証等:加入要(初回保証料:家賃総額50% 月額保証料:900円/月)
    管理形態/管理員の勤務形態:-/-
    ★オンライン内見・対応・申込可能ですので是非一度タウンハウジングにお問い合わせください。先行申込受付中★
    エネルギー消費性能
    断熱性能
    目安光熱費
    バス・トイレ バス・トイレ別、浴室乾燥機、洗面所独立、洗面所、洗面台、温水洗浄便座、トイレ
    キッチン システムキッチン、2口コンロ、ガスコンロ可
    セキュリティー オートロック、モニター付インターホン、ディンプルキー
    収納 収納スペース、シューズボックス
    設備・サービス 室内洗濯機置場、都市ガス給湯、フローリング、室内物干し、都市ガス、エアコン
    TV・通信 インターネット対応、インターネット使用料無料、ケーブルTV
    その他 宅配BOX
    契約期間 2年 現況 未完成
    条件等 入居可能時期 2026年1月下旬予定
    更新料 新賃料 1ヶ月 物件番号 1174600318
    情報公開日 2025年12月12日 次回更新予定日 2025年12月30日
    ケータイ用バーコード

    QRコード

    スマートフォンでこの物件を見る
    スマートフォンからもこの物件をご覧になれます。
    ※「-」と表示されている項目については、情報提供会社にご確認ください。

    この物件の周辺情報

    周辺施設 北小金ピコティ
    距離 1090m
    周辺施設 スーパークランデール
    距離 630m
    周辺施設 アコレ
    距離 670m
    周辺施設 マツモトキヨシ新松戸4丁目店
    距離 1420m
    周辺施設 マツヤデンキ南ながれやま店
    距離 2110m
    周辺施設 ダウンタウン新松戸店
    距離 430m
    周辺施設 マツモトキヨシ
    距離 740m
    周辺施設 コーナン
    距離 2730m

    クイックお問い合わせ

    ここから簡単にお問い合わせをすることができます。
    (SSLでの暗号化での送信を希望されるお客さまは こちら よりお問い合わせください)

    お問い合わせ内容(必須)
    お名前(必須) 姓  名 
    メールアドレス(必須)
    ※携帯電話のメールアドレスをご入力される方はこちらをご確認ください
    電話番号(必須)
    - -

    ※入力いただいた電話番号へSMSまたは音声でパスワードをご連絡します。

    携帯電話の番号をご入力の方へ

    携帯電話の番号をご入力の方へ
    確認画面にて送信ボタンをクリックするとSMSが携帯電話に届きます。
    そのSMSに記載のパスワード(認証番号)を入力し、お問い合わせを完了してください。
    尚、SMSの送信者番号は 0005 202 760 となります。
    これはアットホームの固定番号です。

    備考欄 希望条件、物件案内希望日、質問などがございましたらご記入ください。
    お問い合わせを行う前に「個人情報の取り扱いについて」を必ずお読みください。
    「個人情報の取り扱いについて」に同意いただいた場合は「上記にご同意の上 確認画面へ進む」のボタンをクリックしてください。

    個人情報の取り扱いについて

    皆さまが送付された個人情報はアットホーム(株)のサーバを経由し、お問い合わせ先の不動産会社にメールまたはFAXにて転送されるためアットホーム(株)にも保管されます。アットホーム(株)で保管された個人情報の取り扱いについては、【こちら】をご覧ください。
    また、本画面でご記入いただいた個人情報は、お問い合わせ先の不動産会社でも保管します。 お問い合わせ先の不動産会社が保管する個人情報の取り扱いについては、不動産会社に直接お問い合わせください。

    情報提供会社

    情報提供会社

    (株)タウンハウジング千葉 南流山店

    国土交通大臣免許(1)第9927号

    交通:
    つくばエクスプレス/南流山駅 徒歩1分
    千葉県流山市南流山2丁目3-1 グランドライズ1F
    TEL:
    04-7178-6600
    FAX:
    04-7178-6610
    所属団体:
    (一社)千葉県宅地建物取引業協会会員
    不動産公正取引協議会加盟

    取引態様:仲介

    • 会社情報
    • 00103350
    スマートフォンで
    この不動産会社を見る
    QRコード
    • とりあえず保存
    • お問い合わせ
    • 提携サイト等より掲載されている物件情報につきましては、不動産会社詳細情報にリンクされていないものがあります。
    • 物件に関するお問合せは、物件詳細ページの「情報提供会社」に表示されている不動産会社へ直接お願いいたします。
    • 間取図は、現況を優先させていただきます。
    • 映像は物件の一部を撮影したものです。物件の契約にあたっての最終判断はご自身の判断に基づいて行ってください。
    • 仲介手数料について仲介手数料

    アットホームは物件情報の適正化に努めております。 内容に誤りがある場合にはこちらへご連絡ください。

    【埼玉住まい情報】では、日本全国の物件から賃貸マンションや賃貸アパート・賃貸一戸建て等の賃貸住宅情報、新築マンション・分譲マンションや中古マンション等の売買マンション情報、新築一戸建てや中古一戸建てなどの戸建住宅、 土地など、総合的な不動産住宅情報検索サービスを提供致します。
    【埼玉住まい情報】から、選りすぐりの不動産物件を探してみましょう。

    【免責事項】
    このコーナーの運営はアットホーム株式会社(https://www.athome.co.jp/)が行っています。
    このコーナーに掲載している物件情報は、「アットホーム不動産情報ネットワーク」に加盟する不動産会社等(情報提供元)から提供されています。信頼性の高い情報提供が行えるよう、最大限の努力をしておりますが、その内容を保証するものではありません。 利用者のみなさまと各情報提供元との取引に起因する損害および情報が掲載されたことに起因する損害等については、株式会社イーシティ埼玉、およびアットホームは一切責任を負いません。
    各物件情報の内容や画像等はすべて現況を優先させていただきます。
    お取引等(お取引の準備、資金調達等を含みます)の際には、内容や契約条件等について、各情報提供元より十分な説明を受け、ご自身でご確認の上、判断してください。
    このコーナーへの物件情報のご掲載、その他不動産業務ソリューション等についての不動産会社様のお問合せはこちらからお願いいたします。

    物件画像: