東京都葛飾区東金町6丁目(金町駅)の賃貸:物件詳細
交通 所在地 |
駅徒歩 |
賃料 管理費等 |
敷金/保証金 礼金 |
間取り 面積 |
物件種目 築年月 |
|
JR千代田・常磐緩行線/金町
東京都葛飾区東金町6丁目
|
10分
|
6.5万円
4,000円
|
なし / なし
1ヶ月
|
ワンルーム
13.17m²
|
賃貸アパート
2026年1月
|
IT重説対応物件、保証人不要
|
|
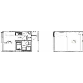
間取図
間取図
|
|
その他の画像
|
| 交通 | JR千代田・常磐緩行線 金町駅 徒歩10分 |
|---|
| その他の交通 | 京成金町線 京成金町駅 徒歩10分 京成金町線 柴又駅 徒歩26分 |
| 所在地 |
東京都葛飾区東金町6丁目
|
| 物件種目 |
賃貸アパート |
| 賃料 |
6.5万円 |
管理費等 |
4,000円 |
| 敷金 / 保証金 |
なし / なし |
礼金 |
1ヶ月 |
| 敷引 |
- |
保証金償却 |
- |
| その他一時金 |
なし |
保険等 |
要 |
| 維持費等 |
- |
| 間取り |
ワンルーム(洋室5.1帖 ロフト4.2帖) |
専有面積 |
13.17m² |
| 築年月 |
2026年1月
|
階建 / 階 |
2階建 / 1階 |
| 建物構造 |
木造 |
総戸数 |
- |
| 主要採光面 |
南西 |
駐車場 |
無 |
| バイク置き場 |
無 |
駐輪場 |
無 |
| 建物名・部屋番号 |
金町BASE |
ペット |
-
|
| アピールポイント |
こちらの物件は、当店のおすすめ物件です。家賃交渉・ご入居時期・初期費用など頑張ってご紹介致します。掲載していない物件も多数ございますので、ぜひお部屋探しは当店までお問い合わせ下さい。
自社管理物件や積水ハウスのシャーメゾン・ 旭化成のへーベルメゾン・ 大和ハウスのD - room・ セキスイハイムなど各種ハウスメーカー物件を取り揃えております。
東京都、 千葉県、 埼玉県に33拠点のネットワークで皆様のご来店お待ちしております。
お部屋探しの際は、 積水ハウスのシャーメゾンでお馴染みのシャーメゾンショップ株式会社ハウスパートナー金町店へぜひお越し下さいませ。 |
| リフォーム履歴 |
- |
| リノベーション履歴 |
- |
| 備考 |
賃貸保証等:加入要(初回総賃料0.3~0.5ヶ月。1年毎に12000円。)
管理形態/管理員の勤務形態:-/-
IT重説対応物件
インターネット開通費用16500円。IOT利用料金16500円。24時間サポート19800円。契約事務手数料11000円。火災保険20000円。除菌消臭費用19800円。ハウスクリーニング費用38500円。引落手数料月額660円。1年未満の解約は違約金として総賃料の2ヶ月。2年未満の解約の場合違約金として総賃料1ヶ月。契約時スマートホン必須。
|
| エネルギー消費性能 |
- |
| 断熱性能 |
- |
| 目安光熱費 |
- |
| バス・トイレ |
洗面所独立、シャワールーム、温水洗浄便座、トイレ |
| キッチン |
ガスコンロ付 |
| セキュリティー |
- |
| 収納 |
- |
| 設備・サービス |
室内洗濯機置場、フローリング、プロパンガス、エアコン |
| TV・通信 |
インターネット使用料無料 |
| その他 |
- |
| 契約期間 |
2年 |
現況 |
未完成 |
| 条件等 |
- |
入居可能時期 |
2026年1月下旬予定 |
| 更新料 |
新賃料 1.5ヶ月 |
物件番号 |
1174731618 |
| 情報公開日 |
2025年12月12日 |
次回更新予定日 |
2025年12月26日 |
| ケータイ用バーコード |
- スマートフォンでこの物件を見る
- スマートフォンからもこの物件をご覧になれます。
|
※「-」と表示されている項目については、情報提供会社にご確認ください。
| 周辺施設 |
まいばすけっと 東金町3丁目店 |
| 距離 |
480m |
写真を見る |
| 周辺施設 |
セブンイレブン東金町店 |
| 距離 |
490m |
写真を見る |
| 周辺施設 |
葛飾区立金町小学校 |
| 距離 |
790m |
写真を見る |
| 周辺施設 |
東半田保育園 |
| 距離 |
960m |
写真を見る |
| 周辺施設 |
金町駅南口交番 |
| 距離 |
620m |
写真を見る |
| 周辺施設 |
ココカラファイン金町店 |
| 距離 |
760m |
写真を見る |
| 周辺施設 |
MARK IS 葛飾かなまち |
| 距離 |
1120m |
写真を見る |
ここから簡単にお問い合わせをすることができます。
(SSLでの暗号化での送信を希望されるお客さまは
こちら
よりお問い合わせください)
お問い合わせを行う前に
「個人情報の取り扱いについて」を必ずお読みください。
「個人情報の取り扱いについて」に同意いただいた場合は「上記にご同意の上 確認画面へ進む」のボタンをクリックしてください。
個人情報の取り扱いについて
皆さまが送付された個人情報はアットホーム(株)のサーバを経由し、お問い合わせ先の不動産会社にメールまたはFAXにて転送されるためアットホーム(株)にも保管されます。アットホーム(株)で保管された個人情報の取り扱いについては、【こちら】をご覧ください。
また、本画面でご記入いただいた個人情報は、お問い合わせ先の不動産会社でも保管します。 お問い合わせ先の不動産会社が保管する個人情報の取り扱いについては、不動産会社に直接お問い合わせください。
国土交通大臣免許(2)第9556号 |
|---|
- 交通:
- JR千代田・常磐緩行線/金町駅 徒歩1分
- 東京都葛飾区東金町1丁目43-10 Y・Sビル101
- TEL:
- 03-5648-6011
- FAX:
- 03-5648-6012
- 所属団体:
- (公社)全日本不動産協会会員(公社)首都圏不動産公正取引協議会加盟
取引態様:仲介  - 00275924
|
- スマートフォンで
この不動産会社を見る

|
- 提携サイト等より掲載されている物件情報につきましては、不動産会社詳細情報にリンクされていないものがあります。
- 物件に関するお問合せは、物件詳細ページの「情報提供会社」に表示されている不動産会社へ直接お願いいたします。
- 間取図は、現況を優先させていただきます。
- 映像は物件の一部を撮影したものです。物件の契約にあたっての最終判断はご自身の判断に基づいて行ってください。
- 仲介手数料について

アットホームは物件情報の適正化に努めております。
内容に誤りがある場合にはこちらへご連絡ください。