東京都江戸川区平井1丁目(平井駅)の賃貸:物件詳細
交通 所在地 |
駅徒歩 |
賃料 管理費等 |
敷金/保証金 礼金 |
間取り 面積 |
物件種目 築年月 |
|
JR総武線/平井
東京都江戸川区平井1丁目
|
10分
|
6.75万円
4,000円
|
なし / なし
1ヶ月
|
ワンルーム
12.10m²
|
賃貸アパート
2025年12月
|
角部屋、IT重説対応物件、保証人不要
|
|
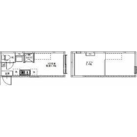
間取図
間取図
|
外観
|
<
その他の画像
>
|
| 交通 | JR総武線 平井駅 徒歩10分 |
| 所在地 |
東京都江戸川区平井1丁目
|
| 物件種目 |
賃貸アパート |
| 賃料 |
6.75万円 |
管理費等 |
4,000円 |
| 敷金 / 保証金 |
なし / なし |
礼金 |
1ヶ月 |
| 敷引 |
- |
保証金償却 |
- |
| その他一時金 |
なし |
保険等 |
要 |
| 維持費等 |
- |
クレジットカード決済 |
初期費用可 |
| 間取り |
ワンルーム(洋室4.9帖 ロフト3.4帖) |
専有面積 |
12.10m² |
| 築年月 |
2025年12月
|
階建 / 階 |
2階建 / 1階 |
| 建物構造 |
木造 |
総戸数 |
8戸 |
| 主要採光面 |
東 |
駐車場 |
無 |
| バイク置き場 |
無 |
駐輪場 |
無 |
| 建物名・部屋番号 |
グランピエール平井 105 |
ペット |
-
|
| アピールポイント |
ハウスパートナー新小岩店では、葛飾区を中心に江戸川区・江東区・墨田区・千葉県市川市の物件を幅広くご紹介しております。また、当社はへーベルメゾンでもお馴染みの旭化成、そして大和ハウス・セキスイハイム・パナソニックホームズ・大東建託等ハウスメーカーの特約代理店でもありますので、数多くのお部屋をご提供できます。初めての一人暮らし等の単身の方や、新婚さんにカップルさん、お子様がいらっしゃるファミリーさんなど幅広くご紹介させていただいております。また賃料交渉や初期費用などもお気軽にご相談下さいませ。スタッフ一同誠心誠意お部屋探しのサポートを致します。どうぞお気軽にお問合せ・ご来店をスタッフ一同お待ち申し上げます。ご提案、内見手配、ご契約まで女性専任スタッフによる安心安全のお部屋探しも実施しております。お気軽にご相談くださいませ。 |
| リフォーム履歴 |
- |
| リノベーション履歴 |
- |
| 備考 |
賃貸保証等:加入要(初回総賃料の30~50%(最低保証料30,000円~50,000円) 以後12000円/年)
管理形態/管理員の勤務形態:-/-
IT重説対応物件
ネット開通費用16500円。IOT登録利用料16500円。24時間サポート19800円。契約事務手数料11000円。保険料20000円。除菌消臭19800円。室内清掃費38500円。エアコン清掃13200円。短期解約違約金有(1年未満2ヶ月、2年未満1ヶ月)。町会費月額300円。口振手数料月額660円。
|
| エネルギー消費性能 |
- |
| 断熱性能 |
- |
| 目安光熱費 |
- |
| バス・トイレ |
洗面所独立、シャワールーム、温水洗浄便座 |
| キッチン |
ガスコンロ付、ガスコンロ可 |
| セキュリティー |
モニター付インターホン、防犯カメラ |
| 収納 |
収納スペース、クローゼット、シューズボックス |
| 設備・サービス |
室内洗濯機置場、ロフト、フローリング、プロパンガス、エアコン |
| TV・通信 |
インターネット対応、インターネット使用料無料、光ファイバー |
| その他 |
宅配BOX |
| 契約期間 |
2年 |
現況 |
未完成 |
| 条件等 |
- |
入居可能時期 |
2026年1月上旬予定 |
| 更新料 |
新賃料 1.5ヶ月 |
物件番号 |
1174980518 |
| 情報公開日 |
2025年12月12日 |
次回更新予定日 |
2025年12月29日 |
| ケータイ用バーコード |
- スマートフォンでこの物件を見る
- スマートフォンからもこの物件をご覧になれます。
|
※「-」と表示されている項目については、情報提供会社にご確認ください。
| 周辺施設 |
セブンイレブン平井2丁目店 |
| 距離 |
430m |
写真を見る |
| 周辺施設 |
Olympic平井店 |
| 距離 |
390m |
写真を見る |
| 周辺施設 |
ジェイコー(JCHO)東京城東病院 |
| 距離 |
1330m |
写真を見る |
| 周辺施設 |
平井駅前交番 |
| 距離 |
750m |
写真を見る |
| 周辺施設 |
KAMEIDO CLOCK |
| 距離 |
2460m |
写真を見る |
| 周辺施設 |
亀戸九丁目緑道公園 |
| 距離 |
1560m |
写真を見る |
| 周辺施設 |
葛飾税務署 |
| 距離 |
4920m |
写真を見る |
| 周辺施設 |
サンドラッグ平井店 |
| 距離 |
640m |
写真を見る |
ここから簡単にお問い合わせをすることができます。
(SSLでの暗号化での送信を希望されるお客さまは
こちら
よりお問い合わせください)
お問い合わせを行う前に
「個人情報の取り扱いについて」を必ずお読みください。
「個人情報の取り扱いについて」に同意いただいた場合は「上記にご同意の上 確認画面へ進む」のボタンをクリックしてください。
個人情報の取り扱いについて
皆さまが送付された個人情報はアットホーム(株)のサーバを経由し、お問い合わせ先の不動産会社にメールまたはFAXにて転送されるためアットホーム(株)にも保管されます。アットホーム(株)で保管された個人情報の取り扱いについては、【こちら】をご覧ください。
また、本画面でご記入いただいた個人情報は、お問い合わせ先の不動産会社でも保管します。 お問い合わせ先の不動産会社が保管する個人情報の取り扱いについては、不動産会社に直接お問い合わせください。
国土交通大臣免許(2)第9556号 |
|---|
- 交通:
- JR総武本線/新小岩駅 徒歩2分
- 東京都葛飾区新小岩2丁目7-6 星野新小岩ビル
- TEL:
- 03-5661-0011
- FAX:
- 03-5661-0012
- 所属団体:
- (公社)全日本不動産協会会員(公社)首都圏不動産公正取引協議会加盟
取引態様:仲介  - 00275930
|
- スマートフォンで
この不動産会社を見る

|
- 提携サイト等より掲載されている物件情報につきましては、不動産会社詳細情報にリンクされていないものがあります。
- 物件に関するお問合せは、物件詳細ページの「情報提供会社」に表示されている不動産会社へ直接お願いいたします。
- 間取図は、現況を優先させていただきます。
- 映像は物件の一部を撮影したものです。物件の契約にあたっての最終判断はご自身の判断に基づいて行ってください。
- 仲介手数料について

アットホームは物件情報の適正化に努めております。
内容に誤りがある場合にはこちらへご連絡ください。