東京都北区豊島6丁目(王子神谷駅)の賃貸:物件詳細
交通 所在地 |
駅徒歩 |
賃料 管理費等 |
敷金/保証金 礼金 |
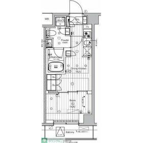
間取り 面積 |
物件種目 築年月 |
|
東京メトロ南北線/王子神谷
東京都北区豊島6丁目
|
14分
|
9.8万円
15,000円
|
なし / なし
なし
|
1DK
25.62m²
|
賃貸マンション
2025年10月
|
ペット相談、フリーレント、分譲タイプ、常時ゴミ出し可能、二人入居可、24時間換気システム、IT重説対応物件、保証人不要
|
|
間取図
|
外観
|
<
その他の画像
>
|
| 交通 | 東京メトロ南北線 王子神谷駅 徒歩14分 |
|---|
| その他の交通 | 都電荒川線 王子駅前駅 徒歩24分 都電荒川線 梶原駅 徒歩25分 |
| 所在地 |
東京都北区豊島6丁目
|
| 物件種目 |
賃貸マンション |
| 賃料 |
9.8万円 |
管理費等 |
15,000円 |
| 敷金 / 保証金 |
なし / なし |
礼金 |
なし |
| 敷引 |
- |
保証金償却 |
- |
| その他一時金 |
なし、鍵交換代等:22,000円~ |
保険等 |
要 2年 23,000円 |
| 維持費等 |
入居中サポート:1,500円/月 |
クレジットカード決済 |
初期費用可 |
| 間取り |
1DK(DK6.1帖 洋室4.4帖) |
専有面積 |
25.62m² |
| 築年月 |
2025年10月
|
階建 / 階 |
6階建 / 2階 |
| 建物構造 |
RC |
総戸数 |
- |
| 主要採光面 |
西 |
駐車場 |
空無 |
| バイク置き場 |
無 |
駐輪場 |
有 |
| 建物名・部屋番号 |
207 |
ペット |
小型犬可・ 猫可 |
| アピールポイント |
☆お部屋探しはタウンハウジング東京赤羽店へ☆
【赤羽店周辺のお部屋探しはタウンハウジング赤羽店にお任せください】
信用と実績の創業43周年!
赤羽駅北改札東口徒歩3分のLalaガーデン商店街沿いにございます。
赤羽駅を中心に1都3県128店舗100,000件以上の情報量とお客様のニーズにお応えするお部屋探しはタウンハウジング赤羽店へ!! |
| リフォーム履歴 |
- |
| リノベーション履歴 |
- |
| 備考 |
賃貸保証等:加入要(賃貸保証料:0.50ヶ月 初回50%)
管理形態/管理員の勤務形態:-/-
フリーレント:1ヶ月(先着5組様限定)
IT重説対応物件
☆お部屋探しはタウンハウジング東京赤羽店へ☆
WEB相談・WEB内見・IT重説に対応。来店不要でご契約まで可能です。初期費用(一部)クレジット決済対応。詳細はお問い合わせください。
|
| エネルギー消費性能 |
- |
| 断熱性能 |
- |
| 目安光熱費 |
- |
| バス・トイレ |
TV付浴室、バス・トイレ別、浴室暖房、浴室乾燥機、オートバス、追焚機能、シャワー付洗面化粧台、洗面所独立、洗面所、洗面台、シャワー、温水洗浄便座、トイレ |
| キッチン |
システムキッチン、2口コンロ、ガスコンロ付 |
| セキュリティー |
モニター付オートロック、オートロック、モニター付インターホン、ディンプルキー、防犯カメラ、火災警報器(報知機) |
| 収納 |
収納スペース、クローゼット、シューズボックス |
| 設備・サービス |
室内洗濯機置場、都市ガス給湯、給湯、全居室フローリング、フローリング、都市ガス、エアコン、暖房、冷房 |
| TV・通信 |
インターネット対応、インターネット使用料無料、光ファイバー、ケーブルTV、CS、BS端子 |
| その他 |
宅配BOX、バルコニー、駐輪場、エレベーター |
| 契約期間 |
2年 |
現況 |
空家 |
| 条件等 |
- |
入居可能時期 |
即時 |
| 更新料 |
なし |
物件番号 |
1175260618 |
| 情報公開日 |
2025年12月13日 |
次回更新予定日 |
2025年12月27日 |
| ケータイ用バーコード |
- スマートフォンでこの物件を見る
- スマートフォンからもこの物件をご覧になれます。
|
※「-」と表示されている項目については、情報提供会社にご確認ください。
| 周辺施設 |
ベルク足立新田店 |
| 距離 |
740m |
写真を見る |
| 周辺施設 |
業務スーパー王子店 |
| 距離 |
490m |
写真を見る |
| 周辺施設 |
セブンイレブン北区豊島6丁目店 |
| 距離 |
400m |
写真を見る |
| 周辺施設 |
ファミリーマート北区豊島八丁目店 |
| 距離 |
530m |
写真を見る |
| 周辺施設 |
ドラッグセガミハートアイランド店 |
| 距離 |
530m |
写真を見る |
| 周辺施設 |
サイゼリヤ足立新田店 |
| 距離 |
540m |
写真を見る |
ここから簡単にお問い合わせをすることができます。
(SSLでの暗号化での送信を希望されるお客さまは
こちら
よりお問い合わせください)
お問い合わせを行う前に
「個人情報の取り扱いについて」を必ずお読みください。
「個人情報の取り扱いについて」に同意いただいた場合は「上記にご同意の上 確認画面へ進む」のボタンをクリックしてください。
個人情報の取り扱いについて
皆さまが送付された個人情報はアットホーム(株)のサーバを経由し、お問い合わせ先の不動産会社にメールまたはFAXにて転送されるためアットホーム(株)にも保管されます。アットホーム(株)で保管された個人情報の取り扱いについては、【こちら】をご覧ください。
また、本画面でご記入いただいた個人情報は、お問い合わせ先の不動産会社でも保管します。 お問い合わせ先の不動産会社が保管する個人情報の取り扱いについては、不動産会社に直接お問い合わせください。
国土交通大臣免許(1)第9926号 |
|---|
- 交通:
- JR京浜東北線/赤羽駅 徒歩3分
- 東京都北区赤羽2丁目1-19 青柳エンパイヤビル1階
- TEL:
- 03-3903-4433
- FAX:
- 03-3903-4440
取引態様:仲介  - 00313155
|
- スマートフォンで
この不動産会社を見る

|
- 提携サイト等より掲載されている物件情報につきましては、不動産会社詳細情報にリンクされていないものがあります。
- 物件に関するお問合せは、物件詳細ページの「情報提供会社」に表示されている不動産会社へ直接お願いいたします。
- 間取図は、現況を優先させていただきます。
- 映像は物件の一部を撮影したものです。物件の契約にあたっての最終判断はご自身の判断に基づいて行ってください。
- 仲介手数料について

アットホームは物件情報の適正化に努めております。
内容に誤りがある場合にはこちらへご連絡ください。