神奈川県横浜市中区新山下1丁目(元町・中華街駅)の賃貸:物件詳細
				
					
					
				
														
	
		
			
				交通 所在地 | 
				駅徒歩 | 
				賃料 管理費等 | 
				敷金/保証金 礼金 | 
				間取り 面積 | 
				物件種目 築年月 | 
			
		
		
			
								| 
					 横浜高速鉄道みなとみらい線/元町・中華街
											 
					神奈川県横浜市中区新山下1丁目 
				 | 
								
					 5分 
				 | 
								
					 7.8万円 
					15,000円 
				 | 
								
					 なし / なし 
					なし 
				 | 
								
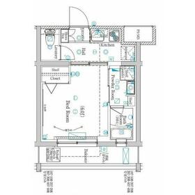
					 1K 
					22.66m² 
				 | 
								
					 賃貸マンション 
					2022年2月(築3年10ヶ月)
																				 
				 | 
			
						
				 ペット相談、デザイナーズ、24時間換気システム、閑静な住宅街、外観タイル張り、IT重説対応物件、保証人不要
  | 
			
					
	
		
		
		
					| 
			 間取図 
			
			
			
			
			
		 | 
		
			 外観 
			
			
			
			
			
		 | 
				
		
		
			
				
										<
										
						
							 
							その他の画像
						 
					 
					
										>
									 
				
			 
		 | 
	
				
		| 
			
		 | 
	
		
 
	
		
			
																			          | 交通 | 横浜高速鉄道みなとみらい線 元町・中華街駅 徒歩5分  | 
|---|
| その他の交通 | JR京浜東北線 石川町駅 徒歩14分 ブルーライン 関内駅 徒歩26分  | 
			
				| 所在地 | 
				
					神奈川県横浜市中区新山下1丁目
				 | 
			
			
				| 物件種目 | 
				賃貸マンション | 
			
		
		
			
				| 賃料 | 
				7.8万円 | 
				管理費等 | 
				15,000円 | 
			
			
				| 敷金 / 保証金 | 
				なし / なし | 
				礼金 | 
				なし | 
			
			
				| 敷引 | 
				- | 
				保証金償却 | 
				- | 
			
			
				| その他一時金 | 
				なし、鍵交換代等:22,000円~ | 
				保険等 | 
				要 2年 23,000円 | 
			
						
				| 維持費等 | 
				24時間入居者サポート:1,500円/月 | 
			
					
		
			
				| 間取り | 
				1K(洋6) | 
				専有面積 | 
				22.66m² | 
			
			
				| 築年月 | 
				2022年2月(築3年10ヶ月)
												 | 
				階建 / 階 | 
				4階建 / 2階 | 
			
			
				| 建物構造 | 
				RC | 
				総戸数 | 
				- | 
			
			
				| 主要採光面 | 
				南西 | 
				駐車場 | 
				- | 
			
			
				| バイク置き場 | 
				- | 
				駐輪場 | 
				- | 
			
			
				| 建物名・部屋番号 | 
				ラフィスタ元町Ⅰ | 
				ペット | 
				
													小型犬可・									猫可												 | 
			
			
	| アピールポイント | 
	デザイナーズ分譲賃貸マンション「Le'a(レア)」シリーズ、リノベーションマンション「G.Gallery(ジーギャラリー)」シリーズなどGLIPでは他の不動産会社では取り扱っていない物件が多数あります。人気のグリフィンマンションシリーズ、ガーラマンションシリーズなども当社管理物件多数あり。ポータルサイト掲載不可の未公開物件は当社HP「グリップ横浜本店」で検索ください。 | 
			
				| リフォーム履歴 | 
				- | 
			
			
				| リノベーション履歴 | 
				- | 
			
			
				| 備考 | 
				
					 
																	賃貸保証等:加入要(初回保証料:総賃料30~50% 年次更新料:10,000円(指定保証会社のプランによる))
											 						管理形態/管理員の勤務形態:-/巡回
											 						IT重説対応物件、外壁コンクリート、管理人巡回
											 						★Le'a(レア)シリーズのGLIP★ 
人気のグリフィンマンションシリーズ、ガーラマンションシリーズなども自社管理物件が多数あります。短期解約違約金あり。
										 
					
				 | 
			
		
				
		
		| エネルギー消費性能 | 
		- | 
	
	
		| 断熱性能 | 
		- | 
	
	
		| 目安光熱費 | 
		- | 
	
	
		
									
				| バス・トイレ | 
				バス・トイレ別、浴室乾燥機、洗面所独立、洗面所、洗面台、シャワー、温水洗浄便座、トイレ | 
			
						
				| キッチン | 
				システムキッチン、IHクッキングヒーター、2口コンロ | 
			
						
				| セキュリティー | 
				モニター付オートロック、オートロック、モニター付インターホン、ディンプルキー、防犯カメラ、火災警報器(報知機) | 
			
						
				| 収納 | 
				収納スペース、クローゼット、シューズボックス | 
			
						
				| 設備・サービス | 
				室内洗濯機置場、洗濯機置場、都市ガス給湯、給湯、フローリング、都市ガス、エアコン、冷房、人感センサー付照明、ダウンライト | 
			
						
				| TV・通信 | 
				インターネット対応、インターネット使用料無料、CS、BS端子 | 
			
						
				| その他 | 
				宅配BOX、バルコニー、エレベーター | 
			
					
		
			
				| 契約期間 | 
				2年 | 
				現況 | 
				空家 | 
			
			
				| 条件等 | 
				- | 
				入居可能時期 | 
				即時 | 
			
						
				| 仲介手数料 | 
				1.1ヶ月 | 
				  | 
				  | 
			
						
				| 更新料 | 
				- | 
				物件番号 | 
				1175434008 | 
			
			
				| 情報公開日 | 
				2025年10月6日 | 
				次回更新予定日 | 
				2025年11月7日 | 
			
						
				| ケータイ用バーコード | 
				
				
					
					
						
							- スマートフォンでこの物件を見る
 
							- スマートフォンからもこの物件をご覧になれます。
 
						 
					 
				 
				 | 
			
					
	 
	 									※「-」と表示されている項目については、情報提供会社にご確認ください。
						
	
			
			
			
				
					
						
							| 周辺施設 | 
							ニューヤマザキデイリーストア元町中華街駅店 | 
						
						
							| 距離 | 
							315m | 
							写真を見る | 						
					
				
			 
		 
					
			
				
					
						
							| 周辺施設 | 
							ローソン 横浜新山下二丁目店 | 
						
						
							| 距離 | 
							592m | 
							写真を見る | 						
					
				
			 
		 
		 
				
			
			
				
					
						
							| 周辺施設 | 
							MEGAドン・キホーテ港山下総本店 | 
						
						
							| 距離 | 
							178m | 
							写真を見る | 						
					
				
			 
		 
					
			
				
					
						
							| 周辺施設 | 
							マルエツ プチ 山下公園店 | 
						
						
							| 距離 | 
							623m | 
							写真を見る | 						
					
				
			 
		 
		 
				
			
			
				
					
						
							| 周辺施設 | 
							くすりセイジョー 横浜元町店 | 
						
						
							| 距離 | 
							770m | 
							写真を見る | 						
					
				
			 
		 
					
			
				
					
						
							| 周辺施設 | 
							サイゼリヤ 元町・中華街駅前店 | 
						
						
							| 距離 | 
							535m | 
							写真を見る | 						
					
				
			 
		 
		 
				
			
			
				
					
						
							| 周辺施設 | 
							元町ショッピングストリート | 
						
						
							| 距離 | 
							482m | 
							写真を見る | 						
					
				
			 
		 
					
			
				
					
						
							| 周辺施設 | 
							オーケー 新山下店 | 
						
						
							| 距離 | 
							958m | 
							写真を見る | 						
					
				
			 
		 
		 
		 									
												
					
					  ここから簡単にお問い合わせをすることができます。
(SSLでの暗号化での送信を希望されるお客さまは
													こちら
											  よりお問い合わせください)
					  
					
						
						
					
					お問い合わせを行う前に
「個人情報の取り扱いについて」を必ずお読みください。
「個人情報の取り扱いについて」に同意いただいた場合は「上記にご同意の上 確認画面へ進む」のボタンをクリックしてください。 
 
					
					
						個人情報の取り扱いについて
						皆さまが送付された個人情報はアットホーム(株)のサーバを経由し、お問い合わせ先の不動産会社にメールまたはFAXにて転送されるためアットホーム(株)にも保管されます。アットホーム(株)で保管された個人情報の取り扱いについては、【こちら】をご覧ください。
						また、本画面でご記入いただいた個人情報は、お問い合わせ先の不動産会社でも保管します。 お問い合わせ先の不動産会社が保管する個人情報の取り扱いについては、不動産会社に直接お問い合わせください。
					 
				 
				
														
				  
				  
					神奈川県知事免許(4)第27217号  | 
|---|
- 交通:
 - JR東海道本線/横浜駅 徒歩3分
 - 神奈川県横浜市西区高島2丁目7-1 ファーストプレイス横浜2F
 - TEL:
 - 045-285-0550
 - FAX:
 - 045-285-0551
 - 所属団体:
 - (公社)神奈川県宅地建物取引業協会会員(公社)首都圏不動産公正取引協議会加盟
 
 取引態様:仲介  - 00101368
 
  | 
						  						  
							
							  
								- スマートフォンで
 この不動産会社を見る 
								    
							   
							 
						   | 
						  						
					  
					 
				   
				 
							
						
												
			
					
- 提携サイト等より掲載されている物件情報につきましては、不動産会社詳細情報にリンクされていないものがあります。
 
- 物件に関するお問合せは、物件詳細ページの「情報提供会社」に表示されている不動産会社へ直接お願いいたします。
 
- 間取図は、現況を優先させていただきます。
 
- 映像は物件の一部を撮影したものです。物件の契約にあたっての最終判断はご自身の判断に基づいて行ってください。
 
- 仲介手数料について

 
アットホームは物件情報の適正化に努めております。
内容に誤りがある場合にはこちらへご連絡ください。