東京都世田谷区世田谷1丁目(松陰神社前駅)の賃貸:物件詳細
交通 所在地 |
駅徒歩 |
賃料 管理費等 |
敷金/保証金 礼金 |
間取り 面積 |
物件種目 築年月 |
|
東急世田谷線/松陰神社前
東京都世田谷区世田谷1丁目
|
7分
|
12.4万円
15,000円
|
1ヶ月 / なし
1ヶ月
|
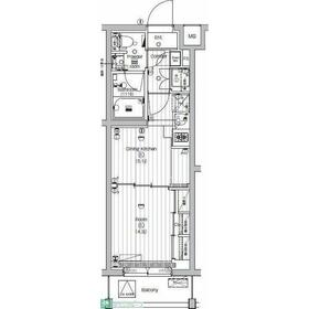
1DK
25.51m²
|
賃貸マンション
2020年9月(築5年4ヶ月)
|
ペット相談、デザイナーズ、南向き、24時間換気システム
|
|
間取図
|
外観
|
<
その他の画像
>
|
| 交通 | 東急世田谷線 松陰神社前駅 徒歩7分 |
|---|
| その他の交通 | 東急田園都市線 駒沢大学駅 徒歩16分 東急田園都市線 三軒茶屋駅 徒歩23分 |
| 所在地 |
東京都世田谷区世田谷1丁目
|
| 物件種目 |
賃貸マンション |
| 賃料 |
12.4万円 |
管理費等 |
15,000円 |
| 敷金 / 保証金 |
1ヶ月 / なし |
礼金 |
1ヶ月 |
| 敷引 |
- |
保証金償却 |
- |
| その他一時金 |
契約事務手数料:11,000円、室内抗菌処理代:17,600円、入居中サポート:21,450円、鍵交換代等:22,000円~ |
保険等 |
要 2年 23,000円 |
| 維持費等 |
振替手数料:660円/月 |
| 間取り |
1DK |
専有面積 |
25.51m² |
| 築年月 |
2020年9月(築5年4ヶ月)
|
階建 / 階 |
4階建 / 1階 |
| 建物構造 |
RC |
総戸数 |
- |
| 主要採光面 |
南 |
駐車場 |
- |
| バイク置き場 |
有 |
駐輪場 |
有 |
| 建物名・部屋番号 |
PREMIUMCUBE世田谷#mo 104 |
ペット |
相談 |
| アピールポイント |
★地域の不動産会社との情報共有により、インターネット掲載物件のほぼ全てがご紹介可能です♪お家賃交渉や礼金交渉などもお気軽にご相談ください♪新築物件、デザイナーズ物件、ペット可物件、楽器可物件、UR賃貸住宅などなど★お部屋探しは地域密着のタウンハウジングにお任せ下さい★2023年度全国仲介件数第2位(全国賃貸新聞2024掲載)★毎日新着情報更新中★ |
| リフォーム履歴 |
- |
| リノベーション履歴 |
- |
| 備考 |
賃貸保証等:加入要(初回保証料:50%~)
管理形態/管理員の勤務形態:-/-
★タウンハウジングはオンラインでご対応可能!★初期費用・諸条件お気軽にご相談下さい★他社さん掲載物件もまとめてご紹介可能です★小田急線・田園都市線・世田谷線・京王線のお部屋探しは地域密着のタウンハウジングにお任せ下さい★2023年度全国仲介件数第2位(全国賃貸新聞2024掲載)★毎日新着情報更新中★
|
| エネルギー消費性能 |
- |
| 断熱性能 |
- |
| 目安光熱費 |
- |
| バス・トイレ |
バス・トイレ別、オートバス、追焚機能、洗面所独立、洗面台、温水洗浄便座、トイレ |
| キッチン |
システムキッチン、2口コンロ |
| セキュリティー |
モニター付オートロック、オートロック、モニター付インターホン |
| 収納 |
シューズボックス |
| 設備・サービス |
室内洗濯機置場、都市ガス給湯、フローリング、都市ガス、エアコン、人感センサー付照明、照明器具 |
| TV・通信 |
インターネット対応、インターネット使用料無料、CS、BS端子 |
| その他 |
宅配BOX、バイク置き場、バルコニー、駐輪場、エレベーター |
| 契約期間 |
2年 |
現況 |
居住中 |
| 条件等 |
- |
入居可能時期 |
2026年2月中旬予定 |
| 仲介手数料 |
1.1ヶ月 |
|
|
| 更新料 |
新賃料 1.5ヶ月 |
物件番号 |
1175533918 |
| 情報公開日 |
2025年12月14日 |
次回更新予定日 |
2025年12月28日 |
| ケータイ用バーコード |
- スマートフォンでこの物件を見る
- スマートフォンからもこの物件をご覧になれます。
|
※「-」と表示されている項目については、情報提供会社にご確認ください。
| 周辺施設 |
セブンイレブン世田谷弦巻1丁目店 |
| 距離 |
350m |
写真を見る |
| 周辺施設 |
ファミリーマート世田谷弦巻店 |
| 距離 |
390m |
写真を見る |
| 周辺施設 |
マツモトキヨシ世田谷4丁目店 |
| 距離 |
320m |
写真を見る |
| 周辺施設 |
くすりセイジョー |
| 距離 |
440m |
写真を見る |
| 周辺施設 |
サミットストア松陰神社前店 |
| 距離 |
430m |
写真を見る |
ここから簡単にお問い合わせをすることができます。
(SSLでの暗号化での送信を希望されるお客さまは
こちら
よりお問い合わせください)
お問い合わせを行う前に
「個人情報の取り扱いについて」を必ずお読みください。
「個人情報の取り扱いについて」に同意いただいた場合は「上記にご同意の上 確認画面へ進む」のボタンをクリックしてください。
個人情報の取り扱いについて
皆さまが送付された個人情報はアットホーム(株)のサーバを経由し、お問い合わせ先の不動産会社にメールまたはFAXにて転送されるためアットホーム(株)にも保管されます。アットホーム(株)で保管された個人情報の取り扱いについては、【こちら】をご覧ください。
また、本画面でご記入いただいた個人情報は、お問い合わせ先の不動産会社でも保管します。 お問い合わせ先の不動産会社が保管する個人情報の取り扱いについては、不動産会社に直接お問い合わせください。
国土交通大臣免許(1)第9926号 |
|---|
- 交通:
- 小田急小田原線/経堂駅 徒歩3分
- 東京都世田谷区経堂1丁目24-16 コンフォール経堂101
- TEL:
- 03-3425-4888
- FAX:
- 03-3425-4889
- 所属団体:
- 所属団体未加入会員
取引態様:仲介  - 00268567
|
- スマートフォンで
この不動産会社を見る

|
- 提携サイト等より掲載されている物件情報につきましては、不動産会社詳細情報にリンクされていないものがあります。
- 物件に関するお問合せは、物件詳細ページの「情報提供会社」に表示されている不動産会社へ直接お願いいたします。
- 間取図は、現況を優先させていただきます。
- 映像は物件の一部を撮影したものです。物件の契約にあたっての最終判断はご自身の判断に基づいて行ってください。
- 仲介手数料について

アットホームは物件情報の適正化に努めております。
内容に誤りがある場合にはこちらへご連絡ください。