東京都品川区南大井3丁目(大森駅)の賃貸:物件詳細
交通 所在地 |
駅徒歩 |
賃料 管理費等 |
敷金/保証金 礼金 |
間取り 面積 |
物件種目 築年月 |
|
JR京浜東北線/大森
東京都品川区南大井3丁目
|
7分
|
10.9万円
13,000円
|
なし / なし
なし
|
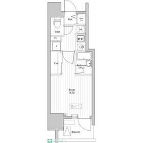
1K
21.63m²
|
賃貸マンション
2022年2月(築3年11ヶ月)
|
ペット相談、デザイナーズ、24時間換気システム、外観タイル張り、IT重説対応物件、保証人不要
|
|
間取図
|
外観
|
<
その他の画像
>
|
| 交通 | JR京浜東北線 大森駅 徒歩7分 |
|---|
| その他の交通 | 京急本線 大森海岸駅 徒歩6分 京急本線 立会川駅 徒歩18分 |
| 所在地 |
東京都品川区南大井3丁目
|
| 物件種目 |
賃貸マンション |
| 賃料 |
10.9万円 |
管理費等 |
13,000円 |
| 敷金 / 保証金 |
なし / なし |
礼金 |
なし |
| 敷引 |
- |
保証金償却 |
- |
| その他一時金 |
入居中サポート:16,500円、鍵交換代等:22,000円~ |
保険等 |
要 2年 23,000円 |
| 維持費等 |
- |
クレジットカード決済 |
初期費用可 |
| 間取り |
1K(洋室6.5帖) |
専有面積 |
21.63m² |
| 築年月 |
2022年2月(築3年11ヶ月)
|
階建 / 階 |
12階建 / 1階 |
| 建物構造 |
RC |
総戸数 |
63戸 |
| 主要採光面 |
東 |
駐車場 |
- |
| バイク置き場 |
有 |
駐輪場 |
有 |
| 建物名・部屋番号 |
大森海岸レジデンス 101 |
ペット |
相談 |
| アピールポイント |
来店不要のWEB相談・WEB内見・IT重説に対応。初期費用(一部)クレジット決済対応。まずは何でもご相談ください! |
| リフォーム履歴 |
- |
| リノベーション履歴 |
- |
| 備考 |
賃貸保証等:加入要(ジェイリース・・・緊連30% 連保30%クレディセゾン・・・緊連30% 連保30%※大手法人様契約時は利用相談可)
管理形態/管理員の勤務形態:-/巡回
IT重説対応物件、管理人巡回
|
| エネルギー消費性能 |
- |
| 断熱性能 |
- |
| 目安光熱費 |
- |
| バス・トイレ |
バス・トイレ別、浴室暖房、浴室乾燥機、洗面台、シャワー、温水洗浄便座、トイレ |
| キッチン |
システムキッチン、2口コンロ、ガスコンロ付、グリル |
| セキュリティー |
モニター付オートロック、オートロック、モニター付インターホン、防犯カメラ、火災警報器(報知機) |
| 収納 |
全居室収納、収納スペース、クローゼット、シューズボックス |
| 設備・サービス |
全居室エアコン、室内洗濯機置場、都市ガス給湯、給湯、全居室フローリング、フローリング、都市ガス、エアコン、暖房、冷房 |
| TV・通信 |
インターネット対応、インターネット使用料無料、ケーブルTV、CS、BS端子 |
| その他 |
宅配BOX、バイク置き場、バルコニー、駐輪場、エレベーター |
| 契約期間 |
2年 |
現況 |
居住中 |
| 条件等 |
- |
入居可能時期 |
2026年2月中旬予定 |
| 仲介手数料 |
1.1ヶ月 |
|
|
| 更新料 |
109,000円 |
物件番号 |
1175631518 |
| 情報公開日 |
2025年12月14日 |
次回更新予定日 |
2025年12月28日 |
| ケータイ用バーコード |
- スマートフォンでこの物件を見る
- スマートフォンからもこの物件をご覧になれます。
|
※「-」と表示されている項目については、情報提供会社にご確認ください。
| 周辺施設 |
大森駅ビルRaRa |
| 距離 |
510m |
写真を見る |
| 周辺施設 |
ビッグファン |
| 距離 |
1580m |
写真を見る |
| 周辺施設 |
まいばすけっと |
| 距離 |
240m |
写真を見る |
| 周辺施設 |
イトーヨーカドー |
| 距離 |
400m |
写真を見る |
ここから簡単にお問い合わせをすることができます。
(SSLでの暗号化での送信を希望されるお客さまは
こちら
よりお問い合わせください)
お問い合わせを行う前に
「個人情報の取り扱いについて」を必ずお読みください。
「個人情報の取り扱いについて」に同意いただいた場合は「上記にご同意の上 確認画面へ進む」のボタンをクリックしてください。
個人情報の取り扱いについて
皆さまが送付された個人情報はアットホーム(株)のサーバを経由し、お問い合わせ先の不動産会社にメールまたはFAXにて転送されるためアットホーム(株)にも保管されます。アットホーム(株)で保管された個人情報の取り扱いについては、【こちら】をご覧ください。
また、本画面でご記入いただいた個人情報は、お問い合わせ先の不動産会社でも保管します。 お問い合わせ先の不動産会社が保管する個人情報の取り扱いについては、不動産会社に直接お問い合わせください。
国土交通大臣免許(1)第9926号 |
|---|
- 交通:
- JR山手線/五反田駅 徒歩1分
- 東京都品川区東五反田5丁目28-9 五反田第三花谷ビル1階
- TEL:
- 03-3447-3905
- FAX:
- 03-3447-3906
取引態様:仲介  - 00100314
|
- スマートフォンで
この不動産会社を見る

|
- 提携サイト等より掲載されている物件情報につきましては、不動産会社詳細情報にリンクされていないものがあります。
- 物件に関するお問合せは、物件詳細ページの「情報提供会社」に表示されている不動産会社へ直接お願いいたします。
- 間取図は、現況を優先させていただきます。
- 映像は物件の一部を撮影したものです。物件の契約にあたっての最終判断はご自身の判断に基づいて行ってください。
- 仲介手数料について

アットホームは物件情報の適正化に努めております。
内容に誤りがある場合にはこちらへご連絡ください。