大阪府吹田市内本町2丁目(吹田駅)の賃貸:物件詳細
交通 所在地 |
駅徒歩 |
賃料 管理費等 |
敷金/保証金 礼金 |
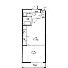
間取り 面積 |
物件種目 築年月 |
|
阪急千里線/吹田
大阪府吹田市内本町2丁目
|
9分
|
7万円
4,600円
|
なし / なし
5万円
|
1LDK
33.00m²
|
賃貸アパート
2013年2月(築12年11ヶ月)
|
角部屋、二人入居可
|
|
間取図
|
外観
|
<
その他の画像
>
|
| 交通 | 阪急千里線 吹田駅 徒歩9分 |
|---|
| その他の交通 | JR東海道本線 吹田駅 徒歩14分 阪急京都線 相川駅 徒歩16分 |
| 所在地 |
大阪府吹田市内本町2丁目
|
| 物件種目 |
賃貸アパート |
| 賃料 |
7万円 |
管理費等 |
4,600円 |
| 敷金 / 保証金 |
なし / なし |
礼金 |
5万円 |
| 敷引 |
- |
保証金償却 |
- |
| その他一時金 |
室内清掃費用:33,000円、鍵交換代等:11,000円~ |
保険等 |
要 |
| 維持費等 |
- |
クレジットカード決済 |
初期費用可 |
| 間取り |
1LDK |
専有面積 |
33.00m² |
| 築年月 |
2013年2月(築12年11ヶ月)
|
階建 / 階 |
3階建 / 2階 |
| 建物構造 |
木造 |
総戸数 |
8戸 |
| 主要採光面 |
南東 |
駐車場 |
近有 13,000円/月 |
| バイク置き場 |
無 |
駐輪場 |
有 無料 |
| 建物名・部屋番号 |
フジパレス吹田サウス |
ペット |
-
|
| アピールポイント |
温水洗浄便座付き。洗浄だけでなく、感染症を防止して健康を守ります。デザイン性の高いシステムキッチン。料理好きな方におすすめです。 |
| リフォーム履歴 |
- |
| リノベーション履歴 |
- |
| 備考 |
賃貸保証等:加入要(初回保証料:総賃料の50%。月額保証料:総賃料の1%)
管理形態/管理員の勤務形態:-/-
温水洗浄便座付き。洗浄だけでなく、感染症を防止して健康を守ります。デザイン性の高いシステムキッチン。料理好きな方におすすめです。
|
| エネルギー消費性能 |
- |
| 断熱性能 |
- |
| 目安光熱費 |
- |
| バス・トイレ |
バス・トイレ別、浴室乾燥機、シャワー付洗面化粧台、洗面所独立、シャワー、温水洗浄便座、トイレ |
| キッチン |
システムキッチン、IHクッキングヒーター、2口コンロ |
| セキュリティー |
モニター付インターホン |
| 収納 |
ウォークインクローゼット、収納スペース、クローゼット |
| 設備・サービス |
室内洗濯機置場、都市ガス給湯、給湯、フローリング、都市ガス、エアコン、照明器具 |
| TV・通信 |
インターネット対応、ケーブルTV、BS端子 |
| その他 |
バルコニー、駐輪場 |
| 契約期間 |
11年 |
現況 |
居住中 |
| 条件等 |
- |
入居可能時期 |
2026年1月下旬予定 |
| 仲介手数料 |
0.55ヶ月 |
|
|
| 更新料 |
7,700円 |
物件番号 |
1175732315 |
| 情報公開日 |
2025年12月4日 |
次回更新予定日 |
2026年1月4日 |
| ケータイ用バーコード |
- スマートフォンでこの物件を見る
- スマートフォンからもこの物件をご覧になれます。
|
※「-」と表示されている項目については、情報提供会社にご確認ください。
| 周辺施設 |
吹田駅(JR 東海道本線) |
| 距離 |
750m |
写真を見る |
| 周辺施設 |
ハニーズイオン吹田店 |
| 距離 |
760m |
写真を見る |
| 周辺施設 |
業務スーパー吹田店 |
| 距離 |
380m |
写真を見る |
| 周辺施設 |
セブンイレブン吹田元町店 |
| 距離 |
270m |
写真を見る |
| 周辺施設 |
アルカ中島薬局 |
| 距離 |
240m |
写真を見る |
| 周辺施設 |
マツヤデンキ吹田イオン店 |
| 距離 |
760m |
写真を見る |
| 周辺施設 |
キッチンオリジン吹田店 |
| 距離 |
510m |
写真を見る |
| 周辺施設 |
(有)キタモト書店 |
| 距離 |
300m |
写真を見る |
ここから簡単にお問い合わせをすることができます。
(SSLでの暗号化での送信を希望されるお客さまは
こちら
よりお問い合わせください)
お問い合わせを行う前に
「個人情報の取り扱いについて」を必ずお読みください。
「個人情報の取り扱いについて」に同意いただいた場合は「上記にご同意の上 確認画面へ進む」のボタンをクリックしてください。
個人情報の取り扱いについて
皆さまが送付された個人情報はアットホーム(株)のサーバを経由し、お問い合わせ先の不動産会社にメールまたはFAXにて転送されるためアットホーム(株)にも保管されます。アットホーム(株)で保管された個人情報の取り扱いについては、【こちら】をご覧ください。
また、本画面でご記入いただいた個人情報は、お問い合わせ先の不動産会社でも保管します。 お問い合わせ先の不動産会社が保管する個人情報の取り扱いについては、不動産会社に直接お問い合わせください。
国土交通大臣免許(7)第5206号 |
|---|
- 交通:
- 阪急京都線/淡路駅 徒歩1分
- 大阪府大阪市東淀川区淡路4丁目9-13 ハセガワビル1階
- TEL:
- 0120-958-133
- FAX:
- 06-6326-6320
- 所属団体:
- (一社)大阪府宅地建物取引業協会会員(公社)近畿地区不動産公正取引協議会加盟
取引態様:仲介  - 50111806
|
- スマートフォンで
この不動産会社を見る

|
- 提携サイト等より掲載されている物件情報につきましては、不動産会社詳細情報にリンクされていないものがあります。
- 物件に関するお問合せは、物件詳細ページの「情報提供会社」に表示されている不動産会社へ直接お願いいたします。
- 間取図は、現況を優先させていただきます。
- 映像は物件の一部を撮影したものです。物件の契約にあたっての最終判断はご自身の判断に基づいて行ってください。
- 仲介手数料について

アットホームは物件情報の適正化に努めております。
内容に誤りがある場合にはこちらへご連絡ください。