神奈川県川崎市中原区田尻町(平間駅)の賃貸:物件詳細
交通 所在地 |
駅徒歩 |
賃料 管理費等 |
敷金/保証金 礼金 |
間取り 面積 |
物件種目 築年月 |
|
JR南武線/平間
神奈川県川崎市中原区田尻町
|
3分
|
9.38万円
9,000円
|
1ヶ月 / なし
1.5ヶ月
|
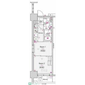
2K
25.38m²
|
賃貸マンション
2026年2月
|
分譲タイプ、常時ゴミ出し可能、角部屋、南向き、高齢者相談、24時間換気システム、IT重説対応物件、保証人不要
|
|
間取図
|
外観
外観
|
<
その他の画像
>
|
| 交通 | JR南武線 平間駅 徒歩3分 |
|---|
| その他の交通 | JR横須賀線 新川崎駅 徒歩15分 JR南武線 鹿島田駅 徒歩16分 |
| 所在地 |
神奈川県川崎市中原区田尻町
|
| 物件種目 |
賃貸マンション |
| 賃料 |
9.38万円 |
管理費等 |
9,000円 |
| 敷金 / 保証金 |
1ヶ月 / なし |
礼金 |
1.5ヶ月 |
| 敷引 |
- |
保証金償却 |
- |
| その他一時金 |
室内清掃費用:51,700円 |
保険等 |
要 2年 20,000円 |
| 維持費等 |
- |
クレジットカード決済 |
初期費用可 |
| 間取り |
2K(洋室4.0帖 洋室4.4帖) |
専有面積 |
25.38m² |
| 築年月 |
2026年2月
|
階建 / 階 |
14階建 / 4階 |
| 建物構造 |
RC |
総戸数 |
- |
| 主要採光面 |
南 |
駐車場 |
近有 18,000円/月 |
| バイク置き場 |
有 |
駐輪場 |
有 |
| 建物名・部屋番号 |
ガーラ・ステーション川崎平間 |
ペット |
-
|
| アピールポイント |
★タウンハウジングは創業45年以上の実績。直営130店舗以上の独自ネットワークで、地元大家さんの物件から大手管理会社さんの物件・インターネットで募集している数多くの物件を取り扱っております。他社さんが掲載している物件情報も、貸主様へ募集中の確認をした上で、当日のご内覧相談可能です。何社も足を運ぶ事なく沢山の物件から素敵なお部屋が見つけられます。スタッフ一同お客様の御来店を心よりお待ちしております★ |
| リフォーム履歴 |
- |
| リノベーション履歴 |
- |
| 備考 |
賃貸保証等:加入要(保証料:賃料等の0.5ヶ月分(最低保証料2万円)/月額保証料 賃料等の1.2%)
管理形態/管理員の勤務形態:-/-
バルコニー:3.19m²
IT重説対応物件、外壁コンクリート
★遠方ににお住まい、又はご来店の難しいお客様にはインターネットを使ったテレビ電話アプリでのご案内をさせて頂きます。是非ご利用ください★
|
| エネルギー消費性能 |
- |
| 断熱性能 |
- |
| 目安光熱費 |
- |
| バス・トイレ |
バス・トイレ別、浴室暖房、浴室乾燥機、オートバス、追焚機能、シャワー付洗面化粧台、洗面所独立、洗面所、洗面台、シャワー、温水洗浄便座、トイレ |
| キッチン |
システムキッチン、2口コンロ、ガスコンロ可、グリル |
| セキュリティー |
モニター付オートロック、オートロック、モニター付インターホン、カードキー、防犯カメラ、電動シャッター、シャッター雨戸 |
| 収納 |
収納スペース、クローゼット、シューズボックス |
| 設備・サービス |
室内洗濯機置場、都市ガス給湯、給湯、フローリング、都市ガス、エアコン、冷房、人感センサー付照明、照明器具 |
| TV・通信 |
インターネット対応、インターネット使用料無料、CS、BS端子 |
| その他 |
宅配BOX、バイク置き場、バルコニー、駐輪場、エレベーター |
| 契約期間 |
2年 |
現況 |
未完成 |
| 条件等 |
- |
入居可能時期 |
2026年2月中旬予定 |
| 更新料 |
新賃料 1ヶ月 |
物件番号 |
1175935115 |
| 情報公開日 |
2025年12月4日 |
次回更新予定日 |
2026年1月9日 |
| ケータイ用バーコード |
- スマートフォンでこの物件を見る
- スマートフォンからもこの物件をご覧になれます。
|
※「-」と表示されている項目については、情報提供会社にご確認ください。
| 周辺施設 |
マルエツ平間店 |
| 距離 |
90m |
写真を見る |
| 周辺施設 |
まいばすけっと田尻町店 |
| 距離 |
270m |
写真を見る |
| 周辺施設 |
クリエイトエス・ディー川崎田尻町店 |
| 距離 |
250m |
写真を見る |
| 周辺施設 |
セブンイレブン川崎田尻町店 |
| 距離 |
130m |
写真を見る |
| 周辺施設 |
モスバーガー平間店 |
| 距離 |
250m |
写真を見る |
| 周辺施設 |
クスリのカツマタ平間店 |
| 距離 |
50m |
写真を見る |
ここから簡単にお問い合わせをすることができます。
(SSLでの暗号化での送信を希望されるお客さまは
こちら
よりお問い合わせください)
お問い合わせを行う前に
「個人情報の取り扱いについて」を必ずお読みください。
「個人情報の取り扱いについて」に同意いただいた場合は「上記にご同意の上 確認画面へ進む」のボタンをクリックしてください。
個人情報の取り扱いについて
皆さまが送付された個人情報はアットホーム(株)のサーバを経由し、お問い合わせ先の不動産会社にメールまたはFAXにて転送されるためアットホーム(株)にも保管されます。アットホーム(株)で保管された個人情報の取り扱いについては、【こちら】をご覧ください。
また、本画面でご記入いただいた個人情報は、お問い合わせ先の不動産会社でも保管します。 お問い合わせ先の不動産会社が保管する個人情報の取り扱いについては、不動産会社に直接お問い合わせください。
国土交通大臣免許(1)第9928号 |
|---|
- 交通:
- 東急東横線/元住吉駅 徒歩3分
- 神奈川県川崎市中原区木月1丁目28-10 中島ビル1F
- TEL:
- 044-411-2007
- FAX:
- 044-411-2008
- 所属団体:
- 所属団体未加入会員
取引態様:仲介  - 00275086
|
- スマートフォンで
この不動産会社を見る

|
- 提携サイト等より掲載されている物件情報につきましては、不動産会社詳細情報にリンクされていないものがあります。
- 物件に関するお問合せは、物件詳細ページの「情報提供会社」に表示されている不動産会社へ直接お願いいたします。
- 間取図は、現況を優先させていただきます。
- 映像は物件の一部を撮影したものです。物件の契約にあたっての最終判断はご自身の判断に基づいて行ってください。
- 仲介手数料について

アットホームは物件情報の適正化に努めております。
内容に誤りがある場合にはこちらへご連絡ください。