東京都品川区南大井5丁目(大森海岸駅)の賃貸:物件詳細
交通 所在地 |
駅徒歩 |
賃料 管理費等 |
敷金/保証金 礼金 |
間取り 面積 |
物件種目 築年月 |
|
京急本線/大森海岸
東京都品川区南大井5丁目
|
11分
|
10.4万円
12,000円
|
なし / 1ヶ月
なし
|
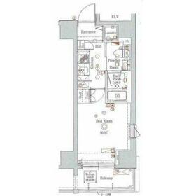
1K
21.08m²
|
賃貸マンション
2009年12月(築16年1ヶ月)
|
ペット相談、分譲タイプ、常時ゴミ出し可能、角部屋、最上階、24時間セキュリティー、2面採光、24時間換気システム、外観タイル張り、保証人不要
|
|
間取図
間取図
|
外観
|
<
その他の画像
>
|
| 交通 | 京急本線 大森海岸駅 徒歩11分 |
|---|
| その他の交通 | JR京浜東北線 大森駅 徒歩10分 京急本線 立会川駅 徒歩12分 |
| 所在地 |
東京都品川区南大井5丁目
|
| 物件種目 |
賃貸マンション |
| 賃料 |
10.4万円 |
管理費等 |
12,000円 |
| 敷金 / 保証金 |
なし / 1ヶ月 |
礼金 |
なし |
| 敷引 |
- |
保証金償却 |
- |
| その他一時金 |
室内清掃費用:52,800円、エアコン清掃費:14,300円、鍵交換代等:24,200円~ |
保険等 |
要 2年 18,000円 |
| 維持費等 |
- |
| 間取り |
1K(洋室6.0帖 K2.0帖) |
専有面積 |
21.08m² |
| 築年月 |
2009年12月(築16年1ヶ月)
|
階建 / 階 |
15階建 / 15階 |
| 建物構造 |
RC |
総戸数 |
- |
| 主要採光面 |
東 |
駐車場 |
無 |
| バイク置き場 |
- |
駐輪場 |
- |
| 建物名・部屋番号 |
1503 |
ペット |
相談 |
| アピールポイント |
大森駅徒歩10分 ペット相談可 角部屋2面採光 浴室乾燥機 宅配ボックス オートロック |
| リフォーム履歴 |
- |
| リノベーション履歴 |
- |
| 備考 |
賃貸保証等:加入要(初回:賃料+管理費合計50%、月次:賃料+管理費1.5%)
管理形態/管理員の勤務形態:-/-
火災保険:18000円 解約予告2ヶ月前 短期解約違約金あり ペット飼育時:保証金1ヶ月追加、消臭消毒用16500円
|
| エネルギー消費性能 |
- |
| 断熱性能 |
- |
| 目安光熱費 |
- |
| バス・トイレ |
バス・トイレ別、浴室乾燥機、シャワー付洗面化粧台、洗面所独立、洗面所、洗面台、シャワー、温水洗浄便座、トイレ |
| キッチン |
システムキッチン、独立型キッチン、2口コンロ、ガスコンロ付 |
| セキュリティー |
モニター付オートロック、オートロック、モニター付インターホン、ダブルロックドア、防犯カメラ |
| 収納 |
全居室収納、クローゼット、シューズボックス |
| 設備・サービス |
全居室エアコン、室内洗濯機置場、給湯、全居室フローリング、フローリング、都市ガス、エアコン、暖房、冷房、人感センサー付照明、照明器具 |
| TV・通信 |
インターネット対応、光ファイバー、ケーブルTV、CS、BS端子 |
| その他 |
宅配BOX、バルコニー、エレベーター |
| 契約期間 |
2年 |
現況 |
空家 |
| 条件等 |
- |
入居可能時期 |
即時 |
| 更新料 |
新賃料 1.5ヶ月 |
物件番号 |
1176070215 |
| 情報公開日 |
2025年12月4日 |
次回更新予定日 |
2025年12月26日 |
| ケータイ用バーコード |
- スマートフォンでこの物件を見る
- スマートフォンからもこの物件をご覧になれます。
|
※「-」と表示されている項目については、情報提供会社にご確認ください。
| 周辺施設 |
大森海岸駅(京急 本線) |
| 距離 |
780m |
写真を見る |
| 周辺施設 |
まいばすけっと南大井6丁目店 |
| 距離 |
200m |
| 周辺施設 |
セブンイレブン南大井水神店 |
| 距離 |
60m |
ここから簡単にお問い合わせをすることができます。
(SSLでの暗号化での送信を希望されるお客さまは
こちら
よりお問い合わせください)
お問い合わせを行う前に
「個人情報の取り扱いについて」を必ずお読みください。
「個人情報の取り扱いについて」に同意いただいた場合は「上記にご同意の上 確認画面へ進む」のボタンをクリックしてください。
個人情報の取り扱いについて
皆さまが送付された個人情報はアットホーム(株)のサーバを経由し、お問い合わせ先の不動産会社にメールまたはFAXにて転送されるためアットホーム(株)にも保管されます。アットホーム(株)で保管された個人情報の取り扱いについては、【こちら】をご覧ください。
また、本画面でご記入いただいた個人情報は、お問い合わせ先の不動産会社でも保管します。 お問い合わせ先の不動産会社が保管する個人情報の取り扱いについては、不動産会社に直接お問い合わせください。
東京都知事免許(6)第76891号 |
|---|
- 交通:
- 東京メトロ有楽町線/豊洲駅 徒歩2分
- 東京都江東区豊洲4丁目4-27 シービーワイコヤスビル3F
- TEL:
- 03-6228-4882
- FAX:
- 03-5547-5189
- 所属団体:
- (公社)全日本不動産協会会員(公社)首都圏不動産公正取引協議会加盟
取引態様:仲介  - 00106802
|
- スマートフォンで
この不動産会社を見る

|
- 提携サイト等より掲載されている物件情報につきましては、不動産会社詳細情報にリンクされていないものがあります。
- 物件に関するお問合せは、物件詳細ページの「情報提供会社」に表示されている不動産会社へ直接お願いいたします。
- 間取図は、現況を優先させていただきます。
- 映像は物件の一部を撮影したものです。物件の契約にあたっての最終判断はご自身の判断に基づいて行ってください。
- 仲介手数料について

アットホームは物件情報の適正化に努めております。
内容に誤りがある場合にはこちらへご連絡ください。