東京都江東区古石場2丁目(門前仲町駅)の賃貸:物件詳細
交通 所在地 |
駅徒歩 |
賃料 管理費等 |
敷金/保証金 礼金 |
間取り 面積 |
物件種目 築年月 |
|
東京メトロ東西線/門前仲町
東京都江東区古石場2丁目
|
9分
|
25.5万円
20,000円
|
1ヶ月 / なし
1ヶ月
|
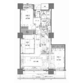
3LDK
82.27m²
|
賃貸マンション
2002年7月(築23年6ヶ月)
|
ペット相談、分譲タイプ、南向き、二人入居可
|
|
間取図
|
外観
|
<
その他の画像
>
|
| 交通 | 東京メトロ東西線 門前仲町駅 徒歩9分 |
|---|
| その他の交通 | 東京メトロ東西線 木場駅 徒歩10分 JR京葉線 越中島駅 徒歩12分 |
| 所在地 |
東京都江東区古石場2丁目
|
| 物件種目 |
賃貸マンション |
| 賃料 |
25.5万円 |
管理費等 |
20,000円 |
| 敷金 / 保証金 |
1ヶ月 / なし |
礼金 |
1ヶ月 |
| 敷引 |
- |
保証金償却 |
- |
| その他一時金 |
コンフォートプラス24:22,000円 |
保険等 |
要 23,000円 |
| 維持費等 |
- |
| 間取り |
3LDK(LD14.0帖 K4.1帖 和室6.1帖 洋室6.9帖 洋…) |
専有面積 |
82.27m² |
| 築年月 |
2002年7月(築23年6ヶ月)
|
階建 / 階 |
35階建 / 21階 |
| 建物構造 |
RC |
総戸数 |
- |
| 主要採光面 |
南 |
駐車場 |
- |
| バイク置き場 |
- |
駐輪場 |
- |
| 建物名・部屋番号 |
2106 |
ペット |
相談 |
| アピールポイント |
古石場 唯一無二のタワーマンション/南向き・眺望良好 共用部管理体制良好/モダン和室 キッチンカウンター 床暖房 |
| リフォーム履歴 |
- |
| リノベーション履歴 |
- |
| 備考 |
賃貸保証等:加入要(初期費用:賃料等の40%、月次保証料:賃料等の1%)
管理形態/管理員の勤務形態:-/-
退去時クリーニング費用、畳表替え費用は借主負担/コンフォートプラス24は2年毎に更新有り/洋室2台の壁掛けエアコンは残置物につき性能保証外/再契約料:新賃料の1ヶ月、再契約は原則不可
|
| エネルギー消費性能 |
- |
| 断熱性能 |
- |
| 目安光熱費 |
- |
| バス・トイレ |
バス・トイレ別、追焚機能、洗面所独立、洗面所、洗面台、シャワー、温水洗浄便座、トイレ |
| キッチン |
カウンターキッチン、システムキッチン、浄水器、3口以上コンロ、ガスコンロ付、グリル |
| セキュリティー |
オートロック |
| 収納 |
収納スペース、クローゼット、シューズボックス |
| 設備・サービス |
エアコン2台以上、床暖房、室内洗濯機置場、都市ガス、ビルトインエアコン、エアコン |
| TV・通信 |
- |
| その他 |
宅配BOX、エレベーター |
| 契約期間 |
3年 |
現況 |
居住中 |
| 条件等 |
定期借家 |
入居可能時期 |
2026年2月中旬予定 |
| 更新料 |
なし |
物件番号 |
1176111918 |
| 情報公開日 |
2025年12月15日 |
次回更新予定日 |
2025年12月29日 |
| ケータイ用バーコード |
- スマートフォンでこの物件を見る
- スマートフォンからもこの物件をご覧になれます。
|
※「-」と表示されている項目については、情報提供会社にご確認ください。
| 周辺施設 |
門前仲町駅(都営地下鉄 大江戸線) |
| 距離 |
810m |
写真を見る |
| 周辺施設 |
まいばすけっと江東富岡1丁目店 |
| 距離 |
330m |
| 周辺施設 |
医療法人社団修世会木場病院 |
| 距離 |
1060m |
写真を見る |
ここから簡単にお問い合わせをすることができます。
(SSLでの暗号化での送信を希望されるお客さまは
こちら
よりお問い合わせください)
お問い合わせを行う前に
「個人情報の取り扱いについて」を必ずお読みください。
「個人情報の取り扱いについて」に同意いただいた場合は「上記にご同意の上 確認画面へ進む」のボタンをクリックしてください。
個人情報の取り扱いについて
皆さまが送付された個人情報はアットホーム(株)のサーバを経由し、お問い合わせ先の不動産会社にメールまたはFAXにて転送されるためアットホーム(株)にも保管されます。アットホーム(株)で保管された個人情報の取り扱いについては、【こちら】をご覧ください。
また、本画面でご記入いただいた個人情報は、お問い合わせ先の不動産会社でも保管します。 お問い合わせ先の不動産会社が保管する個人情報の取り扱いについては、不動産会社に直接お問い合わせください。
東京都知事免許(6)第76891号 |
|---|
- 交通:
- 東京メトロ有楽町線/豊洲駅 徒歩2分
- 東京都江東区豊洲4丁目4-27 シービーワイコヤスビル3F
- TEL:
- 03-6228-4882
- FAX:
- 03-5547-5189
- 所属団体:
- (公社)全日本不動産協会会員(公社)首都圏不動産公正取引協議会加盟
取引態様:仲介  - 00106802
|
- スマートフォンで
この不動産会社を見る

|
- 提携サイト等より掲載されている物件情報につきましては、不動産会社詳細情報にリンクされていないものがあります。
- 物件に関するお問合せは、物件詳細ページの「情報提供会社」に表示されている不動産会社へ直接お願いいたします。
- 間取図は、現況を優先させていただきます。
- 映像は物件の一部を撮影したものです。物件の契約にあたっての最終判断はご自身の判断に基づいて行ってください。
- 仲介手数料について

アットホームは物件情報の適正化に努めております。
内容に誤りがある場合にはこちらへご連絡ください。