大阪府大阪市西区川口3丁目(阿波座駅)の賃貸:物件詳細
交通 所在地 |
駅徒歩 |
賃料 管理費等 |
敷金/保証金 礼金 |
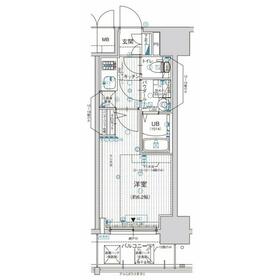
間取り 面積 |
物件種目 築年月 |
|
地下鉄千日前線/阿波座
大阪府大阪市西区川口3丁目
|
8分
|
6.49万円
5,500円
|
なし / なし
7.04万円
|
1K
21.09m²
|
賃貸マンション
2023年3月(築2年10ヶ月)
|
ペット相談、常時ゴミ出し可能、24時間換気システム、外観タイル張り
|
|
間取図
エスリード阿波座プライムコート
|
外観
エスリード阿波座プライムコート
|
<
その他の画像
>
|
| 交通 | 地下鉄千日前線 阿波座駅 徒歩8分 |
|---|
| その他の交通 | 地下鉄中央線 九条駅 徒歩8分 地下鉄長堀鶴見緑地線 西長堀駅 徒歩17分 |
| 所在地 |
大阪府大阪市西区川口3丁目
|
| 物件種目 |
賃貸マンション |
| 賃料 |
6.49万円 |
管理費等 |
5,500円 |
| 敷金 / 保証金 |
なし / なし |
礼金 |
7.04万円 |
| 敷引 |
- |
保証金償却 |
- |
| その他一時金 |
エスリードクラブ:16,500円、鍵交換代:22,000円、ハウスクリーニング代:32,000円 |
保険等 |
要 2年 18,000円 |
| 維持費等 |
ペット飼育時+:100円/月 |
クレジットカード決済 |
初期費用可 |
| 間取り |
1K(洋6.2、K2.5) |
専有面積 |
21.09m² |
| 築年月 |
2023年3月(築2年10ヶ月)
|
階建 / 階 |
15階建 / 8階 |
| 建物構造 |
RC |
総戸数 |
- |
| 主要採光面 |
南東 |
駐車場 |
近有 33,000円/月 |
| バイク置き場 |
- |
駐輪場 |
有 220円/月 |
| 建物名・部屋番号 |
エスリード阿波座プライムコート |
ペット |
相談 |
| リフォーム履歴 |
- |
| リノベーション履歴 |
- |
| 備考 |
賃貸保証等:加入要(初回保証料:月額総賃料の50% 月額総賃料の1.5%)
管理形態/管理員の勤務形態:-/巡回
バルコニー:5m²
管理人巡回
|
| エネルギー消費性能 |
- |
| 断熱性能 |
- |
| 目安光熱費 |
- |
| バス・トイレ |
バス・トイレ別、浴室乾燥機、洗面所独立、洗面所、洗面台、シャワー、温水洗浄便座、トイレ |
| キッチン |
システムキッチン、2口コンロ、ガスコンロ可 |
| セキュリティー |
モニター付オートロック、オートロック、モニター付インターホン、カードキー、防犯カメラ |
| 収納 |
全居室収納、収納スペース、クローゼット、シューズボックス |
| 設備・サービス |
全居室エアコン、室内洗濯機置場、洗濯機置場、都市ガス給湯、給湯、全居室フローリング、フローリング、都市ガス、エアコン、冷房、人感センサー付照明、照明器具 |
| TV・通信 |
インターネット対応、インターネット使用料無料、CATVインターネット、CS、BS端子 |
| その他 |
宅配BOX、バルコニー、駐輪場、エレベーター |
| 契約期間 |
2年 |
現況 |
居住中 |
| 条件等 |
- |
入居可能時期 |
2026年2月下旬予定 |
| 更新料 |
- |
物件番号 |
1176207813 |
| 情報公開日 |
2025年12月5日 |
次回更新予定日 |
2025年12月19日 |
| ケータイ用バーコード |
- スマートフォンでこの物件を見る
- スマートフォンからもこの物件をご覧になれます。
|
※「-」と表示されている項目については、情報提供会社にご確認ください。
| 周辺施設 |
スーパー玉出 九条店 |
| 距離 |
954m |
写真を見る |
| 周辺施設 |
セブンイレブン 大阪川口2丁目店 |
| 距離 |
123m |
写真を見る |
| 周辺施設 |
ホームセンターコーナン西九条春日出店 |
| 距離 |
2373m |
写真を見る |
| 周辺施設 |
マツモトキヨシ 九条店 |
| 距離 |
784m |
写真を見る |
| 周辺施設 |
大阪市中央卸売市場 |
| 距離 |
1668m |
写真を見る |
| 周辺施設 |
大阪市立科学館 |
| 距離 |
1819m |
写真を見る |
| 周辺施設 |
ゴールドジム 大阪中之島 |
| 距離 |
2089m |
写真を見る |
| 周辺施設 |
マツオカクリーニング九条店稲田屋 |
| 距離 |
879m |
写真を見る |
ここから簡単にお問い合わせをすることができます。
(SSLでの暗号化での送信を希望されるお客さまは
こちら
よりお問い合わせください)
お問い合わせを行う前に
「個人情報の取り扱いについて」を必ずお読みください。
「個人情報の取り扱いについて」に同意いただいた場合は「上記にご同意の上 確認画面へ進む」のボタンをクリックしてください。
個人情報の取り扱いについて
皆さまが送付された個人情報はアットホーム(株)のサーバを経由し、お問い合わせ先の不動産会社にメールまたはFAXにて転送されるためアットホーム(株)にも保管されます。アットホーム(株)で保管された個人情報の取り扱いについては、【こちら】をご覧ください。
また、本画面でご記入いただいた個人情報は、お問い合わせ先の不動産会社でも保管します。 お問い合わせ先の不動産会社が保管する個人情報の取り扱いについては、不動産会社に直接お問い合わせください。
大阪府知事免許(2)第58754号 |
|---|
- 交通:
- JR大阪環状線/福島駅 徒歩1分
- 大阪府大阪市福島区福島7丁目6-23 日の出ビル5F
- TEL:
- 06-6455-5666
- FAX:
- 06-6455-5667
- 所属団体:
- (公社)全日本不動産協会会員(公社)近畿地区不動産公正取引協議会加盟
取引態様:仲介  - 50107725
|
- スマートフォンで
この不動産会社を見る

|
- 提携サイト等より掲載されている物件情報につきましては、不動産会社詳細情報にリンクされていないものがあります。
- 物件に関するお問合せは、物件詳細ページの「情報提供会社」に表示されている不動産会社へ直接お願いいたします。
- 間取図は、現況を優先させていただきます。
- 映像は物件の一部を撮影したものです。物件の契約にあたっての最終判断はご自身の判断に基づいて行ってください。
- 仲介手数料について

アットホームは物件情報の適正化に努めております。
内容に誤りがある場合にはこちらへご連絡ください。