神奈川県川崎市中原区新丸子町(新丸子駅)の賃貸:物件詳細
交通 所在地 |
駅徒歩 |
賃料 管理費等 |
敷金/保証金 礼金 |
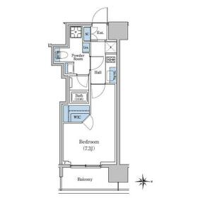
間取り 面積 |
物件種目 築年月 |
|
東急東横線/新丸子
神奈川県川崎市中原区新丸子町
|
1分
|
13.2万円
12,000円
|
13.2万円 / なし
なし
|
1K
26.44m²
|
賃貸マンション
2025年10月
|
フリーレント、常時ゴミ出し可能
|
|
間取図
|
外観
|
その他の画像
|
| 交通 | 東急東横線 新丸子駅 徒歩1分 |
|---|
| その他の交通 | JR南武線 武蔵小杉駅 徒歩7分 |
| 所在地 |
神奈川県川崎市中原区新丸子町
|
| 物件種目 |
賃貸マンション |
| 賃料 |
13.2万円 |
管理費等 |
12,000円 |
| 敷金 / 保証金 |
13.2万円 / なし |
礼金 |
なし |
| 敷引 |
- |
保証金償却 |
- |
| その他一時金 |
清掃費:38,500円、エアコン清掃費:27,500円 |
保険等 |
要 2年 16,550円 |
| 維持費等 |
- |
| 間取り |
1K(洋室7.3) |
専有面積 |
26.44m² |
| 築年月 |
2025年10月
|
階建 / 階 |
12階建 / 4階 |
| 建物構造 |
RC |
総戸数 |
42戸 |
| 主要採光面 |
東 |
駐車場 |
無 |
| バイク置き場 |
- |
駐輪場 |
- |
| 建物名・部屋番号 |
スタイリオ新丸子駅前 0403 |
ペット |
-
|
| リフォーム履歴 |
- |
| リノベーション履歴 |
- |
| 備考 |
賃貸保証等:加入要(その他 あんしんQ-Rent 初回保証料:賃料等の50%(最低2万)、月次保証料:賃料等の1%、口座振替手数料借主負担)
管理形態/管理員の勤務形態:-/-
フリーレント:1ヶ月(※賃料のみ)
◆礼金0ヶ月◆フリーレント1ヶ月※賃料のみ
■定借2年■一部法人契約:普通借相談可(要相談)■指定保証会社利用必須※一部法人契約除く・敷金積増1ヶ月■礼金0ヶ月※2年未満解約時賃料1ヶ月分違約金有■フリーレント1ヶ月(賃料のみ)2年未満解約時賃料1ヶ月分違約金有■禁止事項(ペット飼育・楽器演奏・SOHO利用)■再契約は貸主・借主協議の上相談可(再契約時:再契約料1ヶ月)■引越業者指定有(日時予約必須)■1階店舗工事26/2月末頃迄実施予定
|
| エネルギー消費性能 |
- |
| 断熱性能 |
- |
| 目安光熱費 |
- |
| バス・トイレ |
浴室乾燥機、追焚機能、洗面所独立、温水洗浄便座 |
| キッチン |
システムキッチン |
| セキュリティー |
オートロック、防犯カメラ |
| 収納 |
ウォークインクローゼット |
| 設備・サービス |
エアコン |
| TV・通信 |
インターネット使用料無料、ケーブルTV |
| その他 |
宅配BOX、エレベーター |
| 契約期間 |
2年 |
現況 |
完成済 |
| 条件等 |
定期借家 |
入居可能時期 |
2025年11月中旬予定 |
| 更新料 |
- |
物件番号 |
1176617402 |
| 情報公開日 |
2025年10月27日 |
次回更新予定日 |
2025年11月10日 |
| ケータイ用バーコード |
- スマートフォンでこの物件を見る
- スマートフォンからもこの物件をご覧になれます。
|
※「-」と表示されている項目については、情報提供会社にご確認ください。
ここから簡単にお問い合わせをすることができます。
(SSLでの暗号化での送信を希望されるお客さまは
こちら
よりお問い合わせください)
お問い合わせを行う前に
「個人情報の取り扱いについて」を必ずお読みください。
「個人情報の取り扱いについて」に同意いただいた場合は「上記にご同意の上 確認画面へ進む」のボタンをクリックしてください。
個人情報の取り扱いについて
皆さまが送付された個人情報はアットホーム(株)のサーバを経由し、お問い合わせ先の不動産会社にメールまたはFAXにて転送されるためアットホーム(株)にも保管されます。アットホーム(株)で保管された個人情報の取り扱いについては、【こちら】をご覧ください。
また、本画面でご記入いただいた個人情報は、お問い合わせ先の不動産会社でも保管します。 お問い合わせ先の不動産会社が保管する個人情報の取り扱いについては、不動産会社に直接お問い合わせください。
国土交通大臣免許(4)第7129号 |
|---|
- 交通:
- 東急東横線/日吉駅 徒歩3分
- 神奈川県横浜市港北区日吉本町1丁目4-3 プレジールMKビル1F
- TEL:
- 045-566-7493
- FAX:
- 045-561-9763
- 所属団体:
- (一社)全国住宅産業協会会員不動産公正取引協議会加盟
取引態様:仲介  - 00231104
|
- スマートフォンで
この不動産会社を見る

|
- 提携サイト等より掲載されている物件情報につきましては、不動産会社詳細情報にリンクされていないものがあります。
- 物件に関するお問合せは、物件詳細ページの「情報提供会社」に表示されている不動産会社へ直接お願いいたします。
- 間取図は、現況を優先させていただきます。
- 映像は物件の一部を撮影したものです。物件の契約にあたっての最終判断はご自身の判断に基づいて行ってください。
- 仲介手数料について

アットホームは物件情報の適正化に努めております。
内容に誤りがある場合にはこちらへご連絡ください。