東京都江戸川区中葛西3丁目(葛西駅)の賃貸:物件詳細
交通 所在地 |
駅徒歩 |
賃料 管理費等 |
敷金/保証金 礼金 |
間取り 面積 |
物件種目 築年月 |
|
東京メトロ東西線/葛西
東京都江戸川区中葛西3丁目
|
1分
|
14.2万円
8,000円
|
14.2万円 / なし
14.2万円
|
ワンルーム
49.20m²
|
賃貸マンション
1988年4月(築37年7ヶ月)
|
角部屋、外観タイル張り、IT重説対応物件、保証人不要
|
|
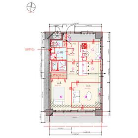
間取図
|
外観
駅近物件
|
<
その他の画像
>
|
| 交通 | 東京メトロ東西線 葛西駅 徒歩1分 |
|---|
| その他の交通 | 東京メトロ東西線 西葛西駅 徒歩18分 東京メトロ東西線 浦安駅 徒歩30分 |
| 所在地 |
東京都江戸川区中葛西3丁目
|
| 物件種目 |
賃貸マンション |
| 賃料 |
14.2万円 |
管理費等 |
8,000円 |
| 敷金 / 保証金 |
14.2万円 / なし |
礼金 |
14.2万円 |
| 敷引 |
- |
保証金償却 |
- |
| その他一時金 |
鍵交換費用:11,000円 |
保険等 |
要 2年 16,000円 |
| 維持費等 |
- |
クレジットカード決済 |
初期費用可 賃料可 |
| 間取り |
ワンルーム(洋室21.5) |
専有面積 |
49.20m² |
| 築年月 |
1988年4月(築37年7ヶ月)
|
階建 / 階 |
10階建 / 6階 |
| 建物構造 |
SRC |
総戸数 |
- |
| 主要採光面 |
東 |
駐車場 |
無 |
| バイク置き場 |
- |
駐輪場 |
有 無料 |
| 建物名・部屋番号 |
ハイライズ吉野 0604 |
ペット |
-
|
| アピールポイント |
フルリノベーション済み、ブラウン基調の角部屋物件!
インターネット無料でご利用いただけます(j-com320M)
オートロック・宅配ボックス付きマンションタイプ!
角部屋・二面採光で日当たり良好です!
※毎月々のお支払いは、弊社指定の夢なびVISAカードでのお支払いになります。
※退去時の室内クリーニング費用負担があります。 |
| リフォーム履歴 |
- |
| リノベーション履歴 |
2025年10月 お部屋を2SLDKから1Rに変更。キッチン、お風呂、トイレ、独立洗面台についてはすべて新品に取り換え。キッチン部分にはスポットライトも備え付けのブラウン基調の物件となります。 ※実施年月は最も古い履歴を表示 |
| 備考 |
賃貸保証等:加入要(その他 アシストレント【初回】総支払額の50%(最低2万円)【月額】総支払額の1.5%(最低千円))
管理形態/管理員の勤務形態:-/巡回
IT重説対応物件、管理人巡回
フルリノベーション済み葛西駅徒歩1分の好立地!
フルリノベーション済み、ブラウン基調の角部屋物件!
インターネット無料でご利用いただけます(j-com320M)
オートロック・宅配ボックス付きマンションタイプ!
角部屋・二面採光で日当たり良好です!
※毎月々のお支払いは、弊社指定の夢なびVISAカードでのお支払いになります。
※退去時の室内クリーニング費用負担があります。
|
| エネルギー消費性能 |
- |
| 断熱性能 |
- |
| 目安光熱費 |
- |
| バス・トイレ |
バス・トイレ別、追焚機能、シャワー |
| キッチン |
システムキッチン、2口コンロ |
| セキュリティー |
オートロック、モニター付インターホン |
| 収納 |
収納スペース、クローゼット、シューズボックス |
| 設備・サービス |
室内洗濯機置場、給湯、都市ガス、エアコン、照明器具 |
| TV・通信 |
インターネット対応、インターネット使用料無料、ケーブルTV |
| その他 |
宅配BOX、バルコニー、駐輪場、エレベーター |
| 契約期間 |
2年 |
現況 |
空家 |
| 条件等 |
- |
入居可能時期 |
即時 |
| 更新料 |
新賃料 1ヶ月 |
物件番号 |
1176666902 |
| 情報公開日 |
2025年10月13日 |
次回更新予定日 |
2025年11月1日 |
| ケータイ用バーコード |
- スマートフォンでこの物件を見る
- スマートフォンからもこの物件をご覧になれます。
|
※「-」と表示されている項目については、情報提供会社にご確認ください。
| 周辺施設 |
まいばすけっと中葛西3丁目店 |
| 距離 |
138m |
写真を見る |
| 周辺施設 |
肉のハナマサ葛西店 |
| 距離 |
165m |
写真を見る |
| 周辺施設 |
ワイズマート葛西店 |
| 距離 |
205m |
写真を見る |
| 周辺施設 |
東武ストア葛西駅前店 |
| 距離 |
200m |
写真を見る |
| 周辺施設 |
まいばすけっと葛西駅西店 |
| 距離 |
374m |
写真を見る |
| 周辺施設 |
マツモトキヨシ葛西駅前店 |
| 距離 |
93m |
写真を見る |
| 周辺施設 |
ファミリーマートサクマ葛西駅店 |
| 距離 |
124m |
写真を見る |
| 周辺施設 |
くすりの福太郎中葛西3丁目店 |
| 距離 |
136m |
写真を見る |
ここから簡単にお問い合わせをすることができます。
(SSLでの暗号化での送信を希望されるお客さまは
こちら
よりお問い合わせください)
お問い合わせを行う前に
「個人情報の取り扱いについて」を必ずお読みください。
「個人情報の取り扱いについて」に同意いただいた場合は「上記にご同意の上 確認画面へ進む」のボタンをクリックしてください。
個人情報の取り扱いについて
皆さまが送付された個人情報はアットホーム(株)のサーバを経由し、お問い合わせ先の不動産会社にメールまたはFAXにて転送されるためアットホーム(株)にも保管されます。アットホーム(株)で保管された個人情報の取り扱いについては、【こちら】をご覧ください。
また、本画面でご記入いただいた個人情報は、お問い合わせ先の不動産会社でも保管します。 お問い合わせ先の不動産会社が保管する個人情報の取り扱いについては、不動産会社に直接お問い合わせください。
国土交通大臣免許(4)第7129号 |
|---|
- 交通:
- 東京メトロ東西線/葛西駅 徒歩1分
- 東京都江戸川区中葛西5丁目33-14 ライフランド葛西1F
- TEL:
- 050-1721-8025
- FAX:
- 03-3878-4145
- 所属団体:
- (一社)全国住宅産業協会会員不動産公正取引協議会加盟
取引態様:仲介  - 00320351
|
- スマートフォンで
この不動産会社を見る

|
- 提携サイト等より掲載されている物件情報につきましては、不動産会社詳細情報にリンクされていないものがあります。
- 物件に関するお問合せは、物件詳細ページの「情報提供会社」に表示されている不動産会社へ直接お願いいたします。
- 間取図は、現況を優先させていただきます。
- 映像は物件の一部を撮影したものです。物件の契約にあたっての最終判断はご自身の判断に基づいて行ってください。
- 仲介手数料について

アットホームは物件情報の適正化に努めております。
内容に誤りがある場合にはこちらへご連絡ください。