不動産 賃貸 マンション等の住宅情報:埼玉住まい情報


東京都板橋区清水町(板橋本町駅)の賃貸:物件詳細

  • 物件詳細
  • 情報の見方
  • 印刷用画面
交通
所在地
駅徒歩 賃料
管理費等
敷金/保証金
礼金
間取り
面積
物件種目
築年月

都営三田線/板橋本町

東京都板橋区清水町

7分

20.2万円

15,000円

なし / なし

なし

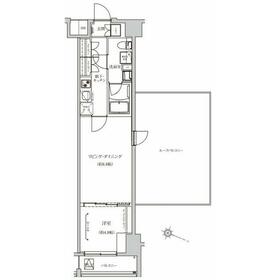
1LDK

36.73m²

賃貸マンション

2025年5月
新築 

おすすめPOINTペット相談、フリーレント、常時ゴミ出し可能、二人入居可、24時間セキュリティー、24時間換気システム、外観タイル張り、IT重説対応物件、保証人不要

おすすめコメント  スタッフ: 上保 福太郎

ハウスパートナー赤羽駅西口店です。他社様掲載物件もまとめてご案内出来ますので効率的です。内見希望や、ご質問などございましたらお気軽にお問い合わせください。

間取図

間取図

外観

外観

<
その他の画像
  • リビング
  • 室内
  • キッチン
  • バス/シャワー
  • トイレ
  • 収納
  • 洗面
  • 玄関
  • 設備
  • 設備
  • バルコニー
  • エントランス
  • 共有部分
  • その他
  • その他
  • その他
  • その他
  • その他
  • その他
  • その他
  • その他
  • その他
  • その他
  • その他
  • その他
  • その他
  • その他
  • その他
  • その他
  • コンビニ
  • ショッピング施設
  • 小学校
  • 病院
  • 幼稚園、保育園
  • ショッピング施設
  • ショッピング施設
  • 公園
>
    • とりあえず保存
    • お問い合わせ
    交通

    都営三田線 板橋本町駅 徒歩7分

    その他の交通

    都営三田線 本蓮沼駅 徒歩10分

    JR埼京線 十条駅 徒歩21分

    所在地 東京都板橋区清水町
    物件種目 賃貸マンション
    賃料 20.2万円 管理費等 15,000円
    敷金 / 保証金 なし / なし 礼金 なし
    敷引 保証金償却
    その他一時金 なし 保険等
    維持費等 クレジットカード決済 初期費用可
    間取り 1LDK(洋室4.8帖 LD8.8帖) 専有面積 36.73m²
    築年月 2025年5月 新築  階建 / 階 10階建 / 9階
    建物構造 RC 総戸数 62戸
    主要採光面 北東 駐車場 有 27,500円/月
    バイク置き場 有 7,700円/月 駐輪場 有 330円/月
    建物名・部屋番号   ペット 相談
    アピールポイント ハウスパートナー赤羽駅西口店では赤羽駅沿線を中心に北区・板橋区・文京区・川口市近郊エリアの物件をご紹介させていただきます。新築・駅近・ペット相談・分譲賃貸・貸家等お部屋探しのお悩み事があればお気軽にご相談くださいませ。お問い合わせ・ご来店をスタッフ一同心よりお待ち申し上げます。
    リフォーム履歴
    リノベーション履歴
    備考
    賃貸保証等:加入要(初回保証料は総賃料等の100%、以降1年毎に1万円~。)
    管理形態/管理員の勤務形態:-/-
    フリーレント:2ヶ月(2ヶ月)
    IT重説対応物件
    保険料:11400円 鍵初期設定料:17600円 24時間サポート:月額880円 ペット飼育時敷金1ヶ月分増額(償却)
    エネルギー消費性能
    断熱性能
    目安光熱費
    バス・トイレ バス・トイレ別、浴室乾燥機、洗面所独立、温水洗浄便座
    キッチン システムキッチン、2口コンロ、ガスコンロ付、ガスコンロ可
    セキュリティー モニター付オートロック、オートロック、モニター付インターホン、ディンプルキー、防犯カメラ
    収納 収納スペース、シューズインクローゼット、クローゼット、シューズボックス
    設備・サービス 室内洗濯機置場、フローリング、都市ガス、エアコン
    TV・通信 インターネット対応、インターネット使用料無料、光ファイバー、CS、BS端子
    その他 宅配BOX、バイク置き場、ルーフバルコニー、バルコニー、駐輪場、エレベーター
    契約期間 2年 現況 完成済
    条件等 入居可能時期 即時
    更新料 新賃料 1ヶ月 物件番号 1176694912
    情報公開日 2025年9月5日 次回更新予定日 2025年11月3日
    ケータイ用バーコード

    QRコード

    スマートフォンでこの物件を見る
    スマートフォンからもこの物件をご覧になれます。
    ※「-」と表示されている項目については、情報提供会社にご確認ください。

    この物件の周辺情報

    周辺施設 セブンイレブン板橋清水町東店
    距離 140m
    周辺施設 リコス清水町店
    距離 340m
    周辺施設 板橋区立志村第三小学校
    距離 430m
    周辺施設 医療法人財団明理会東京腎泌尿器センター大和病院
    距離 550m
    周辺施設 東京自由保育園
    距離 300m
    周辺施設 どらっぐぱぱす板橋清水町店
    距離 350m
    周辺施設 イトーヨーカドー 赤羽店
    距離 2100m
    周辺施設 いずみ公園
    距離 790m

    クイックお問い合わせ

    ここから簡単にお問い合わせをすることができます。
    (SSLでの暗号化での送信を希望されるお客さまは こちら よりお問い合わせください)

    お問い合わせ内容(必須)
    お名前(必須) 姓  名 
    メールアドレス(必須)
    ※携帯電話のメールアドレスをご入力される方はこちらをご確認ください
    電話番号(必須)
    - -

    ※入力いただいた電話番号へSMSまたは音声でパスワードをご連絡します。

    携帯電話の番号をご入力の方へ

    携帯電話の番号をご入力の方へ
    確認画面にて送信ボタンをクリックするとSMSが携帯電話に届きます。
    そのSMSに記載のパスワード(認証番号)を入力し、お問い合わせを完了してください。
    尚、SMSの送信者番号は 0005 202 760 となります。
    これはアットホームの固定番号です。

    備考欄 希望条件、物件案内希望日、質問などがございましたらご記入ください。
    お問い合わせを行う前に「個人情報の取り扱いについて」を必ずお読みください。
    「個人情報の取り扱いについて」に同意いただいた場合は「上記にご同意の上 確認画面へ進む」のボタンをクリックしてください。

    個人情報の取り扱いについて

    皆さまが送付された個人情報はアットホーム(株)のサーバを経由し、お問い合わせ先の不動産会社にメールまたはFAXにて転送されるためアットホーム(株)にも保管されます。アットホーム(株)で保管された個人情報の取り扱いについては、【こちら】をご覧ください。
    また、本画面でご記入いただいた個人情報は、お問い合わせ先の不動産会社でも保管します。 お問い合わせ先の不動産会社が保管する個人情報の取り扱いについては、不動産会社に直接お問い合わせください。

    情報提供会社

    情報提供会社

    (株)ハウスパートナー 赤羽駅西口店

    国土交通大臣免許(2)第9556号

    交通:
    JR京浜東北線/赤羽駅 徒歩2分
    東京都北区赤羽西1丁目37-3 赤羽アイ・エスビル4階
    TEL:
    03-5924-1866
    所属団体:
    (公財)日本賃貸住宅管理協会会員
    (公社)全日本不動産協会会員
    (公社)首都圏不動産公正取引協議会加盟

    取引態様:仲介

    • 会社情報
    • 00275920
    スマートフォンで
    この不動産会社を見る
    QRコード
    • とりあえず保存
    • お問い合わせ
    • 提携サイト等より掲載されている物件情報につきましては、不動産会社詳細情報にリンクされていないものがあります。
    • 物件に関するお問合せは、物件詳細ページの「情報提供会社」に表示されている不動産会社へ直接お願いいたします。
    • 間取図は、現況を優先させていただきます。
    • 映像は物件の一部を撮影したものです。物件の契約にあたっての最終判断はご自身の判断に基づいて行ってください。
    • 仲介手数料について仲介手数料

    アットホームは物件情報の適正化に努めております。 内容に誤りがある場合にはこちらへご連絡ください。

    【埼玉住まい情報】では、日本全国の物件から賃貸マンションや賃貸アパート・賃貸一戸建て等の賃貸住宅情報、新築マンション・分譲マンションや中古マンション等の売買マンション情報、新築一戸建てや中古一戸建てなどの戸建住宅、 土地など、総合的な不動産住宅情報検索サービスを提供致します。
    【埼玉住まい情報】から、選りすぐりの不動産物件を探してみましょう。

    【免責事項】
    このコーナーの運営はアットホーム株式会社(https://www.athome.co.jp/)が行っています。
    このコーナーに掲載している物件情報は、「アットホーム不動産情報ネットワーク」に加盟する不動産会社等(情報提供元)から提供されています。信頼性の高い情報提供が行えるよう、最大限の努力をしておりますが、その内容を保証するものではありません。 利用者のみなさまと各情報提供元との取引に起因する損害および情報が掲載されたことに起因する損害等については、株式会社イーシティ埼玉、およびアットホームは一切責任を負いません。
    各物件情報の内容や画像等はすべて現況を優先させていただきます。
    お取引等(お取引の準備、資金調達等を含みます)の際には、内容や契約条件等について、各情報提供元より十分な説明を受け、ご自身でご確認の上、判断してください。
    このコーナーへの物件情報のご掲載、その他不動産業務ソリューション等についての不動産会社様のお問合せはこちらからお願いいたします。

    物件画像: