東京都目黒区中根1丁目(都立大学駅)の賃貸:物件詳細
交通 所在地 |
駅徒歩 |
賃料 管理費等 |
敷金/保証金 礼金 |
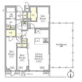
間取り 面積 |
物件種目 築年月 |
|
東急東横線/都立大学
東京都目黒区中根1丁目
|
7分
|
36.1万円
20,000円
|
36.1万円 / なし
なし
|
3LDK
65.90m²
|
賃貸マンション
2025年10月
|
ペット相談、楽器相談、常時ゴミ出し可能、角部屋、最上階、南向き、2面採光、閑静な住宅街、IT重説対応物件
|
|
間取図
|
|
その他の画像
|
| 交通 | 東急東横線 都立大学駅 徒歩7分 |
|---|
| その他の交通 | 東急東横線 自由が丘駅 徒歩12分 東急大井町線 緑が丘駅 徒歩14分 |
| 所在地 |
東京都目黒区中根1丁目
|
| 物件種目 |
賃貸マンション |
| 賃料 |
36.1万円 |
管理費等 |
20,000円 |
| 敷金 / 保証金 |
36.1万円 / なし |
礼金 |
なし |
| 敷引 |
- |
保証金償却 |
- |
| その他一時金 |
M-REALプレミアム会費:19,800円 |
保険等 |
要 2年 32,000円 |
| 維持費等 |
- |
クレジットカード決済 |
初期費用可 |
| 間取り |
3LDK(LDK13.7 洋室5.7 洋室3.7 洋室5.7) |
専有面積 |
65.90m² |
| 築年月 |
2025年10月
|
階建 / 階 |
地上3階地下1階建 / 3階 |
| 建物構造 |
RC |
総戸数 |
- |
| 主要採光面 |
南 |
駐車場 |
無 |
| バイク置き場 |
有 3,300円/月 |
駐輪場 |
有 無料 |
| 建物名・部屋番号 |
アジールコート都立大学 |
ペット |
相談 |
| リフォーム履歴 |
- |
| リノベーション履歴 |
- |
| 備考 |
賃貸保証等:加入要(その他 初回:総賃料の50%、月次保証料:総賃料の1%)
管理形態/管理員の勤務形態:-/-
IT重説対応物件
\*【新築】ペット相談!セキュリティ・設備充実*/
特別賞受賞店舗『ピタットハウス都立大学店』でお部屋探し!
詳細に関しては、当社の公式LINEでのお問合わせがスムーズです。
LINE ID【@277wpwnn】
|
| エネルギー消費性能 |
- |
| 断熱性能 |
- |
| 目安光熱費 |
- |
| バス・トイレ |
バス・トイレ別、浴室乾燥機、追焚機能、洗面所独立、シャワー、温水洗浄便座、トイレ |
| キッチン |
カウンターキッチン、システムキッチン、3口以上コンロ、2口コンロ、ガスコンロ付 |
| セキュリティー |
モニター付オートロック、オートロック、モニター付インターホン、防犯カメラ |
| 収納 |
ウォークインクローゼット、収納スペース、クローゼット、シューズボックス |
| 設備・サービス |
エアコン2台以上、室内洗濯機置場、洗濯機置場、給湯、フローリング、都市ガス、エアコン |
| TV・通信 |
インターネット対応、インターネット使用料無料、光ファイバー |
| その他 |
宅配BOX、バイク置き場、ルーフバルコニー、二面バルコニー、バルコニー、駐輪場、エレベーター |
| 契約期間 |
2年 |
現況 |
空家 |
| 条件等 |
- |
入居可能時期 |
相談 |
| 更新料 |
新賃料 1ヶ月 |
物件番号 |
1177075002 |
| 情報公開日 |
2025年10月30日 |
次回更新予定日 |
2025年11月13日 |
| ケータイ用バーコード |
- スマートフォンでこの物件を見る
- スマートフォンからもこの物件をご覧になれます。
|
※「-」と表示されている項目については、情報提供会社にご確認ください。
| 周辺施設 |
目黒区立八雲小学校 |
| 距離 |
472m |
写真を見る |
| 周辺施設 |
私立八雲学園中学校 |
| 距離 |
653m |
写真を見る |
| 周辺施設 |
私立八雲学園高校 |
| 距離 |
668m |
写真を見る |
| 周辺施設 |
大田区千束特別出張所 |
| 距離 |
2483m |
写真を見る |
| 周辺施設 |
目黒八雲二郵便局 |
| 距離 |
680m |
写真を見る |
| 周辺施設 |
目黒区立緑が丘図書館 |
| 距離 |
671m |
写真を見る |
| 周辺施設 |
碑文谷警察署 |
| 距離 |
1141m |
写真を見る |
ここから簡単にお問い合わせをすることができます。
(SSLでの暗号化での送信を希望されるお客さまは
こちら
よりお問い合わせください)
お問い合わせを行う前に
「個人情報の取り扱いについて」を必ずお読みください。
「個人情報の取り扱いについて」に同意いただいた場合は「上記にご同意の上 確認画面へ進む」のボタンをクリックしてください。
個人情報の取り扱いについて
皆さまが送付された個人情報はアットホーム(株)のサーバを経由し、お問い合わせ先の不動産会社にメールまたはFAXにて転送されるためアットホーム(株)にも保管されます。アットホーム(株)で保管された個人情報の取り扱いについては、【こちら】をご覧ください。
また、本画面でご記入いただいた個人情報は、お問い合わせ先の不動産会社でも保管します。 お問い合わせ先の不動産会社が保管する個人情報の取り扱いについては、不動産会社に直接お問い合わせください。
東京都知事免許(5)第83685号 |
|---|
- 交通:
- 東急東横線/都立大学駅 徒歩1分
- 東京都目黒区中根1丁目3-4 福好ビル3F
- TEL:
- 03-5731-5690
- FAX:
- 03-3718-3101
- 所属団体:
- (公社)東京都宅地建物取引業協会会員(公社)首都圏不動産公正取引協議会加盟
取引態様:仲介  - 00016357
|
- スマートフォンで
この不動産会社を見る

|
- 提携サイト等より掲載されている物件情報につきましては、不動産会社詳細情報にリンクされていないものがあります。
- 物件に関するお問合せは、物件詳細ページの「情報提供会社」に表示されている不動産会社へ直接お願いいたします。
- 間取図は、現況を優先させていただきます。
- 映像は物件の一部を撮影したものです。物件の契約にあたっての最終判断はご自身の判断に基づいて行ってください。
- 仲介手数料について

アットホームは物件情報の適正化に努めております。
内容に誤りがある場合にはこちらへご連絡ください。