東京都港区六本木5丁目(六本木駅)の賃貸:物件詳細
交通 所在地 |
駅徒歩 |
賃料 管理費等 |
敷金/保証金 礼金 |
間取り 面積 |
物件種目 築年月 |
|
東京メトロ日比谷線/六本木
東京都港区六本木5丁目
|
6分
|
28.3万円
15,000円
|
1ヶ月 / なし
なし
|
1LDK
47.47m²
|
賃貸マンション
2007年5月(築18年8ヶ月)
|
常時ゴミ出し可能、角部屋、高齢者相談、二人入居可、2面採光、24時間換気システム、オール電化、外観タイル張り、IT重説対応物件
|
|
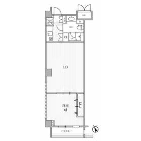
間取図
|
外観
外観です
|
<
その他の画像
>
|
| 交通 | 東京メトロ日比谷線 六本木駅 徒歩6分 |
|---|
| その他の交通 | 東京メトロ南北線 六本木一丁目駅 徒歩12分 東京メトロ千代田線 乃木坂駅 徒歩15分 |
| 所在地 |
東京都港区六本木5丁目
|
| 物件種目 |
賃貸マンション |
| 賃料 |
28.3万円 |
管理費等 |
15,000円 |
| 敷金 / 保証金 |
1ヶ月 / なし |
礼金 |
なし |
| 敷引 |
- |
保証金償却 |
- |
| その他一時金 |
Goodプレミアムα(24Hサポートのみ:12,100円、Goodプレミアムα登録料:2,200円、鍵交換代等:24,200円~ |
保険等 |
要 |
| 維持費等 |
- |
| 間取り |
1LDK(洋6) |
専有面積 |
47.47m² |
| 築年月 |
2007年5月(築18年8ヶ月)
|
階建 / 階 |
6階建 / 2階 |
| 建物構造 |
RC |
総戸数 |
- |
| 主要採光面 |
南西 |
駐車場 |
近有 45,000円/月 |
| バイク置き場 |
- |
駐輪場 |
- |
| 建物名・部屋番号 |
六本木デュープレックスエムズ |
ペット |
-
|
| アピールポイント |
室内設備は浴室乾燥機・洗面化粧台など大変充実しております。セキュリティ面は、TVインターホン・オートロックなど充実しているので安心して生活できます。共用部にはゴミ出し24時間OK・宅配ボックスなどが備わっておりとても充実しています。様々な番組が視聴できるBS・CSへの加入で、娯楽も充実します。多くの方にご好評をいただいている、清潔感のある賃貸物件です。こちらは家賃28.3万円の物件です。物件の広さは47.47平米もあります。インターネットをご利用いただける物件です。こちらのお部屋は角部屋です。アレルギーがある方にもご安心頂ける全居室フローリングの物件です。 |
| リフォーム履歴 |
- |
| リノベーション履歴 |
2025年1月 内装 ※実施年月は最も古い履歴を表示 |
| 備考 |
賃貸保証等:加入要(初回 賃料等総額の50%~)
管理形態/管理員の勤務形態:-/-
IT重説対応物件
室内設備は浴室乾燥機・洗面化粧台など豊富に揃っており、過ごしやすいお部屋になっております。共用部には宅配ボックス・ゴミ出し24時間OKなど様々な設備やサービスが揃っているので便利です。セキュリティ面は、オートロック・TVインターホンなど充実しているので、防犯対策もばっちりです。新しい日々を送るにふさわしい、きれいな室内です。防犯意識が高い方にも嬉しい、防犯カメラ設備付きです。入居時からインターネット環境が整っており、調べものをするためにすぐにインターネットを使いたいという方にもおすすめです。収納性に優れていてキッチン回りを綺麗に保ちやすくなるシステムキッチンがあります。BS・CSは様々な番組が視聴でき、娯楽も充実します。こちらの物件はエレベーター付きです。こちらの物件はマンションです。
|
| エネルギー消費性能 |
- |
| 断熱性能 |
- |
| 目安光熱費 |
- |
| バス・トイレ |
バス・トイレ別、浴室乾燥機、温水洗浄便座、トイレ |
| キッチン |
システムキッチン、IHクッキングヒーター |
| セキュリティー |
モニター付オートロック、オートロック、モニター付インターホン、防犯カメラ |
| 収納 |
収納スペース、クローゼット |
| 設備・サービス |
室内洗濯機置場、洗濯機置場、全居室フローリング、フローリング、エアコン、冷房 |
| TV・通信 |
インターネット対応、インターネット使用料無料、光ファイバー、CS、BS端子 |
| その他 |
宅配BOX、バルコニー、エレベーター |
| 契約期間 |
2年 |
現況 |
空家 |
| 条件等 |
定期借家 |
入居可能時期 |
即時 |
| 更新料 |
- |
物件番号 |
1177182216 |
| 情報公開日 |
2025年12月13日 |
次回更新予定日 |
2025年12月27日 |
| ケータイ用バーコード |
- スマートフォンでこの物件を見る
- スマートフォンからもこの物件をご覧になれます。
|
※「-」と表示されている項目については、情報提供会社にご確認ください。
| 周辺施設 |
叙々苑 麻布十番店 |
| 距離 |
974m |
写真を見る |
| 周辺施設 |
六本木ラーメン 東京食品 まる彦 |
| 距離 |
869m |
写真を見る |
| 周辺施設 |
フレッシュネスバーガー 麻布十番店 |
| 距離 |
736m |
写真を見る |
| 周辺施設 |
ミッドタウン・ガーデン |
| 距離 |
980m |
写真を見る |
| 周辺施設 |
明治屋六本木ストアー |
| 距離 |
634m |
写真を見る |
ここから簡単にお問い合わせをすることができます。
(SSLでの暗号化での送信を希望されるお客さまは
こちら
よりお問い合わせください)
お問い合わせを行う前に
「個人情報の取り扱いについて」を必ずお読みください。
「個人情報の取り扱いについて」に同意いただいた場合は「上記にご同意の上 確認画面へ進む」のボタンをクリックしてください。
個人情報の取り扱いについて
皆さまが送付された個人情報はアットホーム(株)のサーバを経由し、お問い合わせ先の不動産会社にメールまたはFAXにて転送されるためアットホーム(株)にも保管されます。アットホーム(株)で保管された個人情報の取り扱いについては、【こちら】をご覧ください。
また、本画面でご記入いただいた個人情報は、お問い合わせ先の不動産会社でも保管します。 お問い合わせ先の不動産会社が保管する個人情報の取り扱いについては、不動産会社に直接お問い合わせください。
東京都知事免許(1)第107337号 |
|---|
- 交通:
- JR山手線/新宿駅 徒歩1分
- 東京都新宿区西新宿1丁目3-3 品川ステーションビル新宿5F
- TEL:
- 03-6258-0867
- 所属団体:
- (公社)東京都宅地建物取引業協会会員(公社)首都圏不動産公正取引協議会加盟
取引態様:仲介  - 00278932
|
- スマートフォンで
この不動産会社を見る

|
- 提携サイト等より掲載されている物件情報につきましては、不動産会社詳細情報にリンクされていないものがあります。
- 物件に関するお問合せは、物件詳細ページの「情報提供会社」に表示されている不動産会社へ直接お願いいたします。
- 間取図は、現況を優先させていただきます。
- 映像は物件の一部を撮影したものです。物件の契約にあたっての最終判断はご自身の判断に基づいて行ってください。
- 仲介手数料について

アットホームは物件情報の適正化に努めております。
内容に誤りがある場合にはこちらへご連絡ください。