東京都墨田区向島2丁目(とうきょうスカイツリー駅)の賃貸:物件詳細
交通 所在地 |
駅徒歩 |
賃料 管理費等 |
敷金/保証金 礼金 |
間取り 面積 |
物件種目 築年月 |
|
東武伊勢崎線/とうきょうスカイツリー
東京都墨田区向島2丁目
|
9分
|
13.8万円
17,000円
|
1ヶ月 / なし
1ヶ月
|
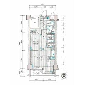
1LDK
39.53m²
|
賃貸マンション
2004年10月(築21年3ヶ月)
|
分譲タイプ、二人入居可、24時間換気システム
|
|
間取図
|
外観
|
<
その他の画像
>
|
| 交通 | 東武伊勢崎線 とうきょうスカイツリー駅 徒歩9分 |
|---|
| その他の交通 | 都営浅草線 本所吾妻橋駅 徒歩11分 東武伊勢崎線 浅草駅 徒歩15分 |
| 所在地 |
東京都墨田区向島2丁目
|
| 物件種目 |
賃貸マンション |
| 賃料 |
13.8万円 |
管理費等 |
17,000円 |
| 敷金 / 保証金 |
1ヶ月 / なし |
礼金 |
1ヶ月 |
| 敷引 |
- |
保証金償却 |
- |
| その他一時金 |
室内清掃費用:77,000円、24H生活サポート:16,500円、契約事務手数料:11,000円、鍵交換代等:39,600円~ |
保険等 |
要 2年 20,000円 |
| 維持費等 |
決済サービス利用料:330円/月 |
クレジットカード決済 |
初期費用可 |
| 間取り |
1LDK(洋室4.5帖 LDK11.4帖) |
専有面積 |
39.53m² |
| 築年月 |
2004年10月(築21年3ヶ月)
|
階建 / 階 |
7階建 / 5階 |
| 建物構造 |
RC |
総戸数 |
- |
| 主要採光面 |
南東 |
駐車場 |
- |
| バイク置き場 |
有 |
駐輪場 |
有 |
| 建物名・部屋番号 |
レクシオ向島 502 |
ペット |
-
|
| アピールポイント |
Google口コミ★4.7評価!物件数トップクラスの不動産情報サイト「恵比寿不動産」を運営。高級シリーズ物件からリノベージョン済み物件・デザイナーズ物件・ペット飼育可能物件など豊富に取り扱っています!オーナー様の事情でネットに掲載できない未公開物件も多数取り扱い?これらの情報は当社の営業マンが一つ一つ足で稼いで取得したものであり、エリア周辺の事業会社や所有者との繋がりなど地域密着で真摯に営業しているからこそ、集められる情報です。当社ホームページでの物件情報量はどこにも負けません!サイト上に気になる物件がなかった方も、まずはお気軽にお問い合わせください。またInstagramでは「理想の家と出逢えるメディア」アカウントを運営しており、魅力的な新着物件を日々ご紹介しておりますので、物件探しをしている方は是非Instagramのアカウントもフォローして下さい! |
| リフォーム履歴 |
- |
| リノベーション履歴 |
- |
| 備考 |
賃貸保証等:加入要(初回契約時:25%、月額:800)
管理形態/管理員の勤務形態:-/-
|
| エネルギー消費性能 |
- |
| 断熱性能 |
- |
| 目安光熱費 |
- |
| バス・トイレ |
バス・トイレ別、浴室乾燥機、温水洗浄便座、トイレ |
| キッチン |
システムキッチン、2口コンロ、ガスコンロ付、グリル |
| セキュリティー |
オートロック、モニター付インターホン、防犯カメラ |
| 収納 |
全居室収納、収納スペース、クローゼット、シューズボックス |
| 設備・サービス |
室内洗濯機置場、都市ガス給湯、都市ガス、エアコン |
| TV・通信 |
インターネット対応、光ファイバー、ケーブルTV |
| その他 |
宅配BOX、バイク置き場、バルコニー、駐輪場、エレベーター |
| 契約期間 |
2年 |
現況 |
居住中 |
| 条件等 |
- |
入居可能時期 |
相談 |
| 更新料 |
新賃料 1ヶ月 |
物件番号 |
1177243518 |
| 情報公開日 |
2025年12月18日 |
次回更新予定日 |
2026年1月1日 |
| ケータイ用バーコード |
- スマートフォンでこの物件を見る
- スマートフォンからもこの物件をご覧になれます。
|
※「-」と表示されている項目については、情報提供会社にご確認ください。
| 周辺施設 |
鈴木総合病院 |
| 距離 |
5690m |
写真を見る |
| 周辺施設 |
エネルギースーパーたじま押上店 |
| 距離 |
400m |
| 周辺施設 |
どらっぐぱぱすとうきょうスカイツリー駅前店 |
| 距離 |
560m |
| 周辺施設 |
Air BicCamera東京スカイツリータウン・ソラマチ店 |
| 距離 |
1160m |
| 周辺施設 |
ペッパーランチとうきょうスカイツリー駅前店 |
| 距離 |
610m |
| 周辺施設 |
墨田三菱自動車販売とうきょうスカイツリー駅前店 |
| 距離 |
460m |
ここから簡単にお問い合わせをすることができます。
(SSLでの暗号化での送信を希望されるお客さまは
こちら
よりお問い合わせください)
お問い合わせを行う前に
「個人情報の取り扱いについて」を必ずお読みください。
「個人情報の取り扱いについて」に同意いただいた場合は「上記にご同意の上 確認画面へ進む」のボタンをクリックしてください。
個人情報の取り扱いについて
皆さまが送付された個人情報はアットホーム(株)のサーバを経由し、お問い合わせ先の不動産会社にメールまたはFAXにて転送されるためアットホーム(株)にも保管されます。アットホーム(株)で保管された個人情報の取り扱いについては、【こちら】をご覧ください。
また、本画面でご記入いただいた個人情報は、お問い合わせ先の不動産会社でも保管します。 お問い合わせ先の不動産会社が保管する個人情報の取り扱いについては、不動産会社に直接お問い合わせください。
東京都知事免許(3)第97301号 |
|---|
- 交通:
- JR山手線/恵比寿駅 徒歩3分
- 東京都渋谷区東3丁目25ー11 TOKYU REIT恵比寿ビル4階
- TEL:
- 03-6421-0540
- FAX:
- 03-6421-0541
- 所属団体:
- (公社)全日本不動産協会会員
取引態様:仲介  - 00163198
|
- スマートフォンで
この不動産会社を見る

|
- 提携サイト等より掲載されている物件情報につきましては、不動産会社詳細情報にリンクされていないものがあります。
- 物件に関するお問合せは、物件詳細ページの「情報提供会社」に表示されている不動産会社へ直接お願いいたします。
- 間取図は、現況を優先させていただきます。
- 映像は物件の一部を撮影したものです。物件の契約にあたっての最終判断はご自身の判断に基づいて行ってください。
- 仲介手数料について

アットホームは物件情報の適正化に努めております。
内容に誤りがある場合にはこちらへご連絡ください。