東京都板橋区舟渡3丁目(浮間舟渡駅)の賃貸:物件詳細
交通 所在地 |
駅徒歩 |
賃料 管理費等 |
敷金/保証金 礼金 |
間取り 面積 |
物件種目 築年月 |
|
JR埼京線/浮間舟渡
東京都板橋区舟渡3丁目
|
9分
|
10.4万円
15,000円
|
なし / なし
1ヶ月
|
1K
25.50m²
|
賃貸マンション
2025年10月
|
ペット相談、分譲タイプ、常時ゴミ出し可能、最上階、24時間換気システム、保証人不要
|
|
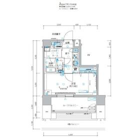
間取図
|
外観
|
その他の画像
|
| 交通 | JR埼京線 浮間舟渡駅 徒歩9分 |
|---|
| その他の交通 | 都営三田線 蓮根駅 徒歩17分 |
| 所在地 |
東京都板橋区舟渡3丁目
|
| 物件種目 |
賃貸マンション |
| 賃料 |
10.4万円 |
管理費等 |
15,000円 |
| 敷金 / 保証金 |
なし / なし |
礼金 |
1ヶ月 |
| 敷引 |
- |
保証金償却 |
- |
| その他一時金 |
退去時鍵交換費用(契約時請求):29,700円、AMLクラブサポート費用(契約時請求):16,500円、ルームクリーニング費用(退去時請求):49,500円 |
保険等 |
要 2年 16,000円 |
| 維持費等 |
- |
| 間取り |
1K(洋室7.6畳) |
専有面積 |
25.50m² |
| 築年月 |
2025年10月
|
階建 / 階 |
7階建 / 7階 |
| 建物構造 |
RC |
総戸数 |
- |
| 主要採光面 |
北 |
駐車場 |
- |
| バイク置き場 |
- |
駐輪場 |
- |
| 建物名・部屋番号 |
メインステージ浮間舟渡 0704 |
ペット |
相談 |
| アピールポイント |
ネット込(シーファイブ)
ペット可(敷1)
保証会社必須(セゾン)
引越し業者指定
退去時要清掃代
解約予告50日前
電力業者指定有
図面と現状が違う場合、現状優先とします。 |
| リフォーム履歴 |
- |
| リノベーション履歴 |
- |
| 備考 |
賃貸保証等:加入要(賃料と管理費の50%~)
管理形態/管理員の勤務形態:-/巡回
バルコニー:8.64m²
管理人巡回
ネット込(シーファイブ)ペット可(敷1)保証会社必須(セゾン)引越し業者指定退去時要清掃代解約予告50日前電力業者指定有図面と現状が違う場合、現状優先とします。
|
| エネルギー消費性能 |
- |
| 断熱性能 |
- |
| 目安光熱費 |
- |
| バス・トイレ |
バス・トイレ別、温水洗浄便座 |
| キッチン |
システムキッチン、2口コンロ、ガスコンロ可 |
| セキュリティー |
オートロック、防犯カメラ、火災警報器(報知機) |
| 収納 |
クローゼット、シューズボックス |
| 設備・サービス |
室内洗濯機置場、給湯、都市ガス、エアコン、人感センサー付照明、照明器具 |
| TV・通信 |
インターネット使用料無料、マルチメディアコンセント |
| その他 |
宅配BOX、ルーフバルコニー、エレベーター |
| 契約期間 |
2年 |
現況 |
未完成 |
| 条件等 |
- |
入居可能時期 |
2025年11月上旬予定 |
| 更新料 |
新賃料 1.5ヶ月 |
物件番号 |
1177542111 |
| 情報公開日 |
2025年10月10日 |
次回更新予定日 |
2025年11月9日 |
| ケータイ用バーコード |
- スマートフォンでこの物件を見る
- スマートフォンからもこの物件をご覧になれます。
|
※「-」と表示されている項目については、情報提供会社にご確認ください。
ここから簡単にお問い合わせをすることができます。
(SSLでの暗号化での送信を希望されるお客さまは
こちら
よりお問い合わせください)
お問い合わせを行う前に
「個人情報の取り扱いについて」を必ずお読みください。
「個人情報の取り扱いについて」に同意いただいた場合は「上記にご同意の上 確認画面へ進む」のボタンをクリックしてください。
個人情報の取り扱いについて
皆さまが送付された個人情報はアットホーム(株)のサーバを経由し、お問い合わせ先の不動産会社にメールまたはFAXにて転送されるためアットホーム(株)にも保管されます。アットホーム(株)で保管された個人情報の取り扱いについては、【こちら】をご覧ください。
また、本画面でご記入いただいた個人情報は、お問い合わせ先の不動産会社でも保管します。 お問い合わせ先の不動産会社が保管する個人情報の取り扱いについては、不動産会社に直接お問い合わせください。
(株)青山メインランド東京都知事免許(9)第54441号 |
|---|
- 交通:
- JR山手線/神田駅 徒歩7分
- 東京都千代田区内神田1丁目7-6 北大手町ビル
- TEL:
- 03-5281-5321
- FAX:
- 03-5281-5333
- 所属団体:
- (公社)東京都宅地建物取引業協会会員(公社)首都圏不動産公正取引協議会加盟
取引態様:貸主 |
- 提携サイト等より掲載されている物件情報につきましては、不動産会社詳細情報にリンクされていないものがあります。
- 物件に関するお問合せは、物件詳細ページの「情報提供会社」に表示されている不動産会社へ直接お願いいたします。
- 間取図は、現況を優先させていただきます。
- 映像は物件の一部を撮影したものです。物件の契約にあたっての最終判断はご自身の判断に基づいて行ってください。
- 仲介手数料について

アットホームは物件情報の適正化に努めております。
内容に誤りがある場合にはこちらへご連絡ください。