東京都荒川区西日暮里6丁目(西日暮里駅)の賃貸:物件詳細
				
					
					
				
														
	
		
			
				| 交通 所在地
 | 駅徒歩 | 賃料 管理費等
 | 敷金/保証金 礼金
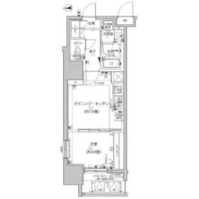
 | 間取り 面積
 | 物件種目 築年月
 | 
		
		
			
								| JR山手線/西日暮里
											 東京都荒川区西日暮里6丁目 | 7分 | 12万円 10,000円 | なし / なし 1ヶ月 | 1DK 36.00m² | 賃貸マンション 2009年6月(築16年5ヶ月)
																				 | 
						
				|  分譲タイプ、角部屋、二人入居可、免震構造、24時間換気システム、閑静な住宅街
 | 
					
	
		
		
		
					| 間取図 | 外観 | 
		
		| 
				
										<
										
						>
							 その他の画像 | 
				
 
	
		
			
																			          | 交通 | JR山手線 西日暮里駅 徒歩7分 | 
|---|
| その他の交通 | 京成本線 新三河島駅 徒歩7分 | 
|---|
			
				| 所在地 | 東京都荒川区西日暮里6丁目 | 
			
				| 物件種目 | 賃貸マンション | 
		
		
			
				| 賃料 | 12万円 | 管理費等 | 10,000円 | 
			
				| 敷金 / 保証金 | なし / なし | 礼金 | 1ヶ月 | 
			
				| 敷引 | - | 保証金償却 | - | 
			
				| その他一時金 | 鍵交換費用:38,500円 | 保険等 | 要 2年 18,000円 | 
						
				| 維持費等 | - | 
					
		
			
				| 間取り | 1DK | 専有面積 | 36.00m² | 
			
				| 築年月 | 2009年6月(築16年5ヶ月) | 階建 / 階 | 11階建 / 3階 | 
			
				| 建物構造 | RC | 総戸数 | - | 
			
				| 主要採光面 | 西 | 駐車場 | - | 
			
				| バイク置き場 | - | 駐輪場 | - | 
			
				| 建物名・部屋番号 |  | ペット | - | 
						
				| リフォーム履歴 | - | 
			
				| リノベーション履歴 | - | 
			
				| 備考 | 
																	賃貸保証等:利用可(その他)
											管理形態/管理員の勤務形態:-/-
 | 
		
				
		
		| エネルギー消費性能 | - | 
	
		| 断熱性能 | - | 
	
		| 目安光熱費 | - | 
	
		
									
				| バス・トイレ | バス・トイレ別、浴室乾燥機、シャワー付洗面化粧台、洗面所独立、洗面台、シャワー、温水洗浄便座、トイレ | 
						
				| キッチン | IHクッキングヒーター、2口コンロ | 
						
				| セキュリティー | モニター付オートロック、オートロック、モニター付インターホン、ディンプルキー、火災警報器(報知機) | 
						
				| 収納 | 収納スペース、クローゼット、シューズボックス | 
						
				| 設備・サービス | 室内洗濯機置場、洗濯機置場、フローリング、エアコン、冷房、照明器具 | 
						
				| TV・通信 | インターネット対応 | 
						
				| その他 | 宅配BOX、エレベーター | 
					
		
			
				| 契約期間 | 2年 | 現況 | 居住中 | 
			
				| 条件等 | - | 入居可能時期 | 相談 | 
						
				| 更新料 | 新賃料 1ヶ月 | 物件番号 | 1177554511 | 
			
				| 情報公開日 | 2025年10月10日 | 次回更新予定日 | 2025年11月7日 | 
						
				| ケータイ用バーコード | 
					
					
						
							スマートフォンでこの物件を見るスマートフォンからもこの物件をご覧になれます。 | 
					
	 
	 									※「-」と表示されている項目については、情報提供会社にご確認ください。
						
	
			
			
			
				
					
						
							| 周辺施設 | まいばすけっと 冠新道店 | 
						
							| 距離 | 157m | 写真を見る | 
					
				
			 
		 
					
			
				
					
						
							| 周辺施設 | セブンイレブン 西日暮里六丁目店 | 
						
							| 距離 | 55m | 写真を見る | 
					
				
			 
		 
		 
		 									
												
					
					  ここから簡単にお問い合わせをすることができます。
(SSLでの暗号化での送信を希望されるお客さまは
													こちら
											  よりお問い合わせください)
					  
					
						
						
					
					お問い合わせを行う前に
「個人情報の取り扱いについて」を必ずお読みください。
「個人情報の取り扱いについて」に同意いただいた場合は「上記にご同意の上 確認画面へ進む」のボタンをクリックしてください。 
						個人情報の取り扱いについて
						皆さまが送付された個人情報はアットホーム(株)のサーバを経由し、お問い合わせ先の不動産会社にメールまたはFAXにて転送されるためアットホーム(株)にも保管されます。アットホーム(株)で保管された個人情報の取り扱いについては、【こちら】をご覧ください。
						また、本画面でご記入いただいた個人情報は、お問い合わせ先の不動産会社でも保管します。 お問い合わせ先の不動産会社が保管する個人情報の取り扱いについては、不動産会社に直接お問い合わせください。
					 
				 
				
														
				  
				  
					| 東京都知事免許(1)第110851号 | 
|---|
| 交通:JR中央線/四ツ谷駅 徒歩4分東京都新宿区四谷1丁目18 belle四谷9階TEL:03-6273-2886所属団体:(公社)東京都宅地建物取引業協会会員(公社)首都圏不動産公正取引協議会加盟
 取引態様:仲介 00278830
 | 
							  
								スマートフォンでこの不動産会社を見る
 | 
					  
					 
				 
							
						
												
			
					
- 提携サイト等より掲載されている物件情報につきましては、不動産会社詳細情報にリンクされていないものがあります。
- 物件に関するお問合せは、物件詳細ページの「情報提供会社」に表示されている不動産会社へ直接お願いいたします。
- 間取図は、現況を優先させていただきます。
- 映像は物件の一部を撮影したものです。物件の契約にあたっての最終判断はご自身の判断に基づいて行ってください。
- 仲介手数料について 
アットホームは物件情報の適正化に努めております。
内容に誤りがある場合にはこちらへご連絡ください。