福岡県福岡市博多区東光2丁目(博多駅)の賃貸:物件詳細
交通 所在地 |
駅徒歩 |
賃料 管理費等 |
敷金/保証金 礼金 |
間取り 面積 |
物件種目 築年月 |
|
JR鹿児島本線/博多
福岡県福岡市博多区東光2丁目
|
8分
|
8.2万円
3,000円
|
1ヶ月 / なし
2ヶ月
|
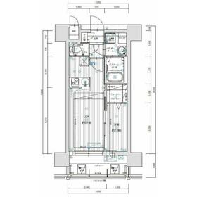
1LDK
30.25m²
|
賃貸マンション
2015年12月(築9年11ヶ月)
|
ペット相談、分譲タイプ、高齢者相談、二人入居可、24時間換気システム、IT重説対応物件
|
|
間取図
|
外観
外観も気になるポイント
|
<
その他の画像
>
|
|
|
| 交通 | JR鹿児島本線 博多駅 徒歩8分 |
|---|
| その他の交通 | 地下鉄空港線 東比恵駅 徒歩13分 地下鉄空港線 祇園駅 徒歩15分 |
| 所在地 |
福岡県福岡市博多区東光2丁目
|
| 物件種目 |
賃貸マンション |
| 賃料 |
8.2万円 |
管理費等 |
3,000円 |
| 敷金 / 保証金 |
1ヶ月 / なし |
礼金 |
2ヶ月 |
| 敷引 |
- |
保証金償却 |
- |
| その他一時金 |
鍵交換費用:33,000円、消毒代:13,200円 |
保険等 |
要 |
| 維持費等 |
町内会費:300円/月、24時間サポート代:990円/月 |
クレジットカード決済 |
初期費用可 |
| 間取り |
1LDK |
専有面積 |
30.25m² |
| 築年月 |
2015年12月(築9年11ヶ月)
|
階建 / 階 |
13階建 / 4階 |
| 建物構造 |
RC |
総戸数 |
- |
| 主要採光面 |
北東 |
駐車場 |
近有 18,000円/月 |
| バイク置き場 |
- |
駐輪場 |
有 |
| 建物名・部屋番号 |
グランフォーレ博多駅プレミア |
ペット |
相談 |
| アピールポイント |
室内設備は浴室乾燥機・洗面化粧台などが揃っているので、快適に過ごしやすいお部屋になります。共用部には宅配ボックスを設置しているため、対面で荷物を受け取る必要がなくなります。セキュリティ面は、オートロック・TVインターホンなどを備え付けているので安心して暮らせます。収納はシューズボックス・ウォークインクロゼットなど豊富なので、広々と空間を利用することも可能です。梅雨のジメジメした湿気も、エアコン付きのマンションなら安心です。利便性の高い、敷地内ゴミ置き場が付いています。2口コンロが付いているので、短い時間で一気に作り置きもできて効率的です。風通しが良いマンションで快適な生活を。憧れの新生活を早くはじめるためにも、現在空き部屋の物件はいかがでしょうか。BS、CSでは海外番組も視聴可能なのでとても楽しめます。このマンションはバルコニー付きです。 |
| リフォーム履歴 |
- |
| リノベーション履歴 |
- |
| 備考 |
管理形態/管理員の勤務形態:-/-
IT重説対応物件、外壁コンクリート
物件のお問い合わせはSumoSumoまで♪♪
共用部には宅配ボックスがあるので、荷物の受け取りのために早く帰宅する必要がありません。収納はウォークインクロゼット・シューズボックスなど豊富なので、広々と空間を利用することも可能です。セキュリティ面は、オートロック・TVインターホンなど充実しているので安心して生活できます。室内設備は洗面化粧台・浴室乾燥機など豊富に揃っており、過ごしやすいお部屋になっております。過ごしやすい環境を実現する、エアコン付きのマンションです。落ち着いた生活ができるリビングとダイニングのある充実設備の1LDK。こちらの物件はマンションです。初期費用はカードで決済いただけます。風通しのよさが魅力のマンションです。インターネット回線がある物件です。魅力も多い賃貸物件はいかがでしょうか。
|
| エネルギー消費性能 |
- |
| 断熱性能 |
- |
| 目安光熱費 |
- |
| バス・トイレ |
バス・トイレ別、浴室乾燥機、シャワー付洗面化粧台、洗面所独立、洗面所、洗面台、シャワー、温水洗浄便座、トイレ |
| キッチン |
カウンターキッチン、システムキッチン、2口コンロ、ガスコンロ可 |
| セキュリティー |
モニター付オートロック、オートロック、モニター付インターホン、防犯カメラ |
| 収納 |
ウォークインクローゼット、収納スペース、クローゼット、シューズボックス |
| 設備・サービス |
室内洗濯機置場、洗濯機置場、プロパンガス給湯、給湯、フローリング、プロパンガス、エアコン、冷房 |
| TV・通信 |
インターネット対応、インターネット使用料無料、光ファイバー、CATVインターネット、ケーブルTV、CS、BS端子 |
| その他 |
宅配BOX、バルコニー、駐輪場、エレベーター |
| 契約期間 |
1年 |
現況 |
空家 |
| 条件等 |
- |
入居可能時期 |
即時 |
| 更新料 |
- |
物件番号 |
1177643813 |
| 情報公開日 |
2025年8月10日 |
次回更新予定日 |
2025年10月28日 |
| ケータイ用バーコード |
- スマートフォンでこの物件を見る
- スマートフォンからもこの物件をご覧になれます。
|
※「-」と表示されている項目については、情報提供会社にご確認ください。
| 周辺施設 |
セブンイレブン 博多東光2丁目店 |
| 距離 |
96m |
写真を見る |
| 周辺施設 |
ファミリーマート 博多堅粕3丁目店 |
| 距離 |
431m |
写真を見る |
| 周辺施設 |
デイリーヤマザキ 博多駅筑紫口店 |
| 距離 |
532m |
写真を見る |
| 周辺施設 |
博多比恵郵便局 |
| 距離 |
444m |
写真を見る |
| 周辺施設 |
サニー東比恵店 |
| 距離 |
822m |
写真を見る |
| 周辺施設 |
ドラッグイレブン承天寺通り店 |
| 距離 |
784m |
写真を見る |
ここから簡単にお問い合わせをすることができます。
(SSLでの暗号化での送信を希望されるお客さまは
こちら
よりお問い合わせください)
お問い合わせを行う前に
「個人情報の取り扱いについて」を必ずお読みください。
「個人情報の取り扱いについて」に同意いただいた場合は「上記にご同意の上 確認画面へ進む」のボタンをクリックしてください。
個人情報の取り扱いについて
皆さまが送付された個人情報はアットホーム(株)のサーバを経由し、お問い合わせ先の不動産会社にメールまたはFAXにて転送されるためアットホーム(株)にも保管されます。アットホーム(株)で保管された個人情報の取り扱いについては、【こちら】をご覧ください。
また、本画面でご記入いただいた個人情報は、お問い合わせ先の不動産会社でも保管します。 お問い合わせ先の不動産会社が保管する個人情報の取り扱いについては、不動産会社に直接お問い合わせください。
国土交通大臣免許(2)第9550号 |
|---|
- 交通:
- JR鹿児島本線/博多駅 徒歩5分
- 福岡県福岡市博多区博多駅前2丁目13-13 シャンソンビル博多4F
- TEL:
- 092-600-0801
- 所属団体:
- (公社)全日本不動産協会会員(公社)近畿地区不動産公正取引協議会加盟
取引態様:仲介  - 80507507
|
- スマートフォンで
この不動産会社を見る

|
- 提携サイト等より掲載されている物件情報につきましては、不動産会社詳細情報にリンクされていないものがあります。
- 物件に関するお問合せは、物件詳細ページの「情報提供会社」に表示されている不動産会社へ直接お願いいたします。
- 間取図は、現況を優先させていただきます。
- 映像は物件の一部を撮影したものです。物件の契約にあたっての最終判断はご自身の判断に基づいて行ってください。
- 仲介手数料について

アットホームは物件情報の適正化に努めております。
内容に誤りがある場合にはこちらへご連絡ください。