愛知県名古屋市中村区中村町6丁目(中村日赤駅)の賃貸:物件詳細
交通 所在地 |
駅徒歩 |
賃料 管理費等 |
敷金/保証金 礼金 |
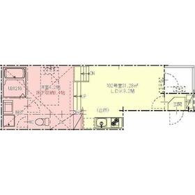
間取り 面積 |
物件種目 築年月 |
|
名古屋市東山線/中村日赤
愛知県名古屋市中村区中村町6丁目
|
8分
|
6.1万円
4,000円
|
なし / なし
1ヶ月
|
1LDK
31.28m²
|
賃貸アパート
2019年3月(築6年10ヶ月)
|
二人入居可、24時間換気システム、保証人不要
|
|
間取図
|
外観
|
<
その他の画像
>
|
| 交通 | 名古屋市東山線 中村日赤駅 徒歩8分 |
|---|
| その他の交通 | 名古屋市東山線 中村公園駅 徒歩12分 名古屋市東山線 本陣駅 徒歩17分 |
| 所在地 |
愛知県名古屋市中村区中村町6丁目
|
| 物件種目 |
賃貸アパート |
| 賃料 |
6.1万円 |
管理費等 |
4,000円 |
| 敷金 / 保証金 |
なし / なし |
礼金 |
1ヶ月 |
| 敷引 |
- |
保証金償却 |
- |
| その他一時金 |
インターネット開通サービス:16,500円、鍵交換代等:22,000円~ |
保険等 |
要 2年 18,000円 |
| 維持費等 |
町内会費:300円/月、シノサポ24(2年):17,600円/月 |
| 間取り |
1LDK |
専有面積 |
31.28m² |
| 築年月 |
2019年3月(築6年10ヶ月)
|
階建 / 階 |
3階建 / 1階 |
| 建物構造 |
木造 |
総戸数 |
- |
| 主要採光面 |
北 |
駐車場 |
- |
| バイク置き場 |
- |
駐輪場 |
- |
| 建物名・部屋番号 |
エスポワール中村 |
ペット |
-
|
| リフォーム履歴 |
- |
| リノベーション履歴 |
- |
| 備考 |
賃貸保証等:加入要(シノケンコミュニケーションズ(連帯保証人有プラン 初回保証料:30,000円)(連帯保証人無プラン 初回保証料:50,000円))
管理形態/管理員の勤務形態:-/-
|
| エネルギー消費性能 |
- |
| 断熱性能 |
- |
| 目安光熱費 |
- |
| バス・トイレ |
バス・トイレ別、浴室乾燥機、追焚機能、洗面台、トイレ |
| キッチン |
2口コンロ、ガスコンロ可 |
| セキュリティー |
モニター付オートロック、オートロック、モニター付インターホン |
| 収納 |
収納スペース、シューズボックス、床下収納 |
| 設備・サービス |
室内洗濯機置場、洗濯機置場、プロパンガス給湯、給湯、フローリング、室内物干し、プロパンガス、エアコン |
| TV・通信 |
インターネット対応、インターネット使用料無料 |
| その他 |
宅配BOX、バルコニー |
| 契約期間 |
2年 |
現況 |
空家 |
| 条件等 |
- |
入居可能時期 |
即時 |
| 更新料 |
33,000円 |
物件番号 |
1177778816 |
| 情報公開日 |
2025年11月23日 |
次回更新予定日 |
2026年1月5日 |
| ケータイ用バーコード |
- スマートフォンでこの物件を見る
- スマートフォンからもこの物件をご覧になれます。
|
※「-」と表示されている項目については、情報提供会社にご確認ください。
| 周辺施設 |
アオキスーパー 中村店 |
| 距離 |
570m |
写真を見る |
| 周辺施設 |
セブンイレブン 名古屋中村町7丁目店 |
| 距離 |
290m |
写真を見る |
| 周辺施設 |
ほっともっと 東宿町店 |
| 距離 |
350m |
写真を見る |
| 周辺施設 |
V・drug 中村公園前店 |
| 距離 |
418m |
写真を見る |
ここから簡単にお問い合わせをすることができます。
(SSLでの暗号化での送信を希望されるお客さまは
こちら
よりお問い合わせください)
お問い合わせを行う前に
「個人情報の取り扱いについて」を必ずお読みください。
「個人情報の取り扱いについて」に同意いただいた場合は「上記にご同意の上 確認画面へ進む」のボタンをクリックしてください。
個人情報の取り扱いについて
皆さまが送付された個人情報はアットホーム(株)のサーバを経由し、お問い合わせ先の不動産会社にメールまたはFAXにて転送されるためアットホーム(株)にも保管されます。アットホーム(株)で保管された個人情報の取り扱いについては、【こちら】をご覧ください。
また、本画面でご記入いただいた個人情報は、お問い合わせ先の不動産会社でも保管します。 お問い合わせ先の不動産会社が保管する個人情報の取り扱いについては、不動産会社に直接お問い合わせください。
愛知県知事免許(1)第25554号 |
|---|
- 交通:
- 名古屋市名城線/金山駅 徒歩2分
- 愛知県名古屋市中区金山1丁目16-11 グランド金山ビル2階
- TEL:
- 052-228-3291
- FAX:
- 052-228-3292
- 所属団体:
- (公社)全日本不動産協会会員東海不動産公正取引協議会加盟
取引態様:仲介  - 40411069
|
- スマートフォンで
この不動産会社を見る

|
- 提携サイト等より掲載されている物件情報につきましては、不動産会社詳細情報にリンクされていないものがあります。
- 物件に関するお問合せは、物件詳細ページの「情報提供会社」に表示されている不動産会社へ直接お願いいたします。
- 間取図は、現況を優先させていただきます。
- 映像は物件の一部を撮影したものです。物件の契約にあたっての最終判断はご自身の判断に基づいて行ってください。
- 仲介手数料について

アットホームは物件情報の適正化に努めております。
内容に誤りがある場合にはこちらへご連絡ください。