神奈川県川崎市川崎区本町2丁目(川崎駅)の賃貸:物件詳細
交通 所在地 |
駅徒歩 |
賃料 管理費等 |
敷金/保証金 礼金 |
間取り 面積 |
物件種目 築年月 |
|
JR京浜東北線/川崎
神奈川県川崎市川崎区本町2丁目
|
12分
|
11.4万円
6,000円
|
11.4万円 / なし
なし
|
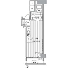
ワンルーム
26.27m²
|
賃貸マンション
2010年2月(築16年)
|
フリーレント
|
|
間取図
単身者様向けです!
|
外観
オートロック完備
|
<
その他の画像
>
|
| 交通 | JR京浜東北線 川崎駅 徒歩12分 |
|---|
| その他の交通 | 京急本線 京急川崎駅 徒歩9分 京急本線 六郷土手駅 徒歩13分 |
| 所在地 |
神奈川県川崎市川崎区本町2丁目
|
| 物件種目 |
賃貸マンション |
| 賃料 |
11.4万円 |
管理費等 |
6,000円 |
| 敷金 / 保証金 |
11.4万円 / なし |
礼金 |
なし |
| 敷引 |
- |
保証金償却 |
- |
| その他一時金 |
鍵交換代等:22,000円 |
保険等 |
要 |
| 維持費等 |
- |
クレジットカード決済 |
初期費用可 |
| 間取り |
ワンルーム(洋室11.2) |
専有面積 |
26.27m² |
| 築年月 |
2010年2月(築16年)
|
階建 / 階 |
11階建 / 7階 |
| 建物構造 |
RC |
総戸数 |
- |
| 主要採光面 |
南西 |
駐車場 |
無 |
| バイク置き場 |
無 |
駐輪場 |
無 |
| 建物名・部屋番号 |
コスモリード川崎 |
ペット |
-
|
| アピールポイント |
宅配BOX完備で不在がちな方にも、荷物を受取れる便利設備!
オートロック設備完備で安心生活をしっかりサポート!
システムキッチンなど収納等の室内設備充実!
当店なら各カード会社で初期費用クレジット決済可能! |
| リフォーム履歴 |
- |
| リノベーション履歴 |
- |
| 備考 |
賃貸保証等:加入要(各種保証会社 加入要 ハートワン家賃保証 初回保証料:総賃料40%、継続保証料:毎月総賃料1%、更新料保証:更新料1%。審査通過後クレジットカード発行・送付されますので、そちらを利用しての賃料支払いと)
管理形態/管理員の勤務形態:-/-
フリーレント:1ヶ月(12月までのお申込みに限る)
事務所 使用不可 SOHO使用不可 楽器不可 ペット不可
■外国籍の方は原則GTN 初回保証料:総賃料70%、継続保証料:毎月2,000円+振替手数料月額330円(税込)、火災保険込のプラン■解約時室内クリーニング費用:借主負担1,430円(税込)/1㎡(最低金額44,000円税込)*解約時エアコンクリーニング費用:1台当たり壁掛:13,200円、天カセ:27,500円(それぞれ税込)■オール電化■自転車置場:先着順1住戸1台まで無料ラック式■インターネット:フレッツ光ネクスト対応(別途契約・費用必要)■短期解約違約金有:1年未満の解約で総賃料1ヵ月
|
| エネルギー消費性能 |
- |
| 断熱性能 |
- |
| 目安光熱費 |
- |
| バス・トイレ |
バス・トイレ別、浴室乾燥機、オートバス、追焚機能、洗面台、温水洗浄便座 |
| キッチン |
システムキッチン、2口コンロ |
| セキュリティー |
オートロック、モニター付インターホン、防犯カメラ |
| 収納 |
クローゼット、シューズボックス |
| 設備・サービス |
室内洗濯機置場、フローリング、エアコン |
| TV・通信 |
光ファイバー、BS端子 |
| その他 |
宅配BOX、バルコニー、エレベーター |
| 契約期間 |
2年 |
現況 |
空家 |
| 条件等 |
- |
入居可能時期 |
相談 |
| 更新料 |
新賃料 1ヶ月 |
物件番号 |
1177993102 |
| 情報公開日 |
2026年1月12日 |
次回更新予定日 |
2026年1月26日 |
| ケータイ用バーコード |
- スマートフォンでこの物件を見る
- スマートフォンからもこの物件をご覧になれます。
|
※「-」と表示されている項目については、情報提供会社にご確認ください。
| 周辺施設 |
川崎市立宮前小学校 |
| 距離 |
1119m |
写真を見る |
| 周辺施設 |
川崎市立富士見中学校 |
| 距離 |
1097m |
写真を見る |
| 周辺施設 |
こあらっこはうすル・シエルブルー |
| 距離 |
373m |
写真を見る |
| 周辺施設 |
川崎本町郵便局 |
| 距離 |
278m |
写真を見る |
| 周辺施設 |
グランデュオ蒲田西館 |
| 距離 |
3555m |
写真を見る |
ここから簡単にお問い合わせをすることができます。
(SSLでの暗号化での送信を希望されるお客さまは
こちら
よりお問い合わせください)
お問い合わせを行う前に
「個人情報の取り扱いについて」を必ずお読みください。
「個人情報の取り扱いについて」に同意いただいた場合は「上記にご同意の上 確認画面へ進む」のボタンをクリックしてください。
個人情報の取り扱いについて
皆さまが送付された個人情報はアットホーム(株)のサーバを経由し、お問い合わせ先の不動産会社にメールまたはFAXにて転送されるためアットホーム(株)にも保管されます。アットホーム(株)で保管された個人情報の取り扱いについては、【こちら】をご覧ください。
また、本画面でご記入いただいた個人情報は、お問い合わせ先の不動産会社でも保管します。 お問い合わせ先の不動産会社が保管する個人情報の取り扱いについては、不動産会社に直接お問い合わせください。
神奈川県知事免許(5)第24582号 |
|---|
- 交通:
- JR京浜東北線/桜木町駅 徒歩2分
- 神奈川県横浜市中区花咲町1丁目53-1 AN横浜ビル1F
- TEL:
- 045-264-3311
- FAX:
- 045-264-3322
- 所属団体:
- (公社)神奈川県宅地建物取引業協会会員(公社)首都圏不動産公正取引協議会加盟
取引態様:仲介  - 00013149
|
- スマートフォンで
この不動産会社を見る

|
- 提携サイト等より掲載されている物件情報につきましては、不動産会社詳細情報にリンクされていないものがあります。
- 物件に関するお問合せは、物件詳細ページの「情報提供会社」に表示されている不動産会社へ直接お願いいたします。
- 間取図は、現況を優先させていただきます。
- 映像は物件の一部を撮影したものです。物件の契約にあたっての最終判断はご自身の判断に基づいて行ってください。
- 仲介手数料について

アットホームは物件情報の適正化に努めております。
内容に誤りがある場合にはこちらへご連絡ください。