東京都新宿区北新宿1丁目(大久保駅)の賃貸:物件詳細
交通 所在地 |
駅徒歩 |
賃料 管理費等 |
敷金/保証金 礼金 |
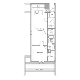
間取り 面積 |
物件種目 築年月 |
|
JR総武線/大久保
東京都新宿区北新宿1丁目
|
7分
|
45.5万円
25,000円
|
1ヶ月 / なし
1ヶ月
|
1LDK
84.09m²
|
賃貸マンション
1997年4月(築28年9ヶ月)
|
ペット相談、最上階
|
|
間取図
間取り
|
外観
|
その他の画像
|
| 交通 | JR総武線 大久保駅 徒歩7分 |
|---|
| その他の交通 | 東京メトロ丸ノ内線 西新宿駅 徒歩11分 JR山手線 新大久保駅 徒歩10分 |
| 所在地 |
東京都新宿区北新宿1丁目
|
| 物件種目 |
賃貸マンション |
| 賃料 |
45.5万円 |
管理費等 |
25,000円 |
| 敷金 / 保証金 |
1ヶ月 / なし |
礼金 |
1ヶ月 |
| 敷引 |
- |
保証金償却 |
- |
| その他一時金 |
なし、鍵交換代等:22,000円~ |
保険等 |
要 2年 21,500円 |
| 維持費等 |
インターネット使用料:1,650円/月 |
| 間取り |
1LDK(LDK26.1・洋室10) |
専有面積 |
84.09m² |
| 築年月 |
1997年4月(築28年9ヶ月)
|
階建 / 階 |
地上5階地下1階建 / 5階 |
| 建物構造 |
RC |
総戸数 |
26戸 |
| 主要採光面 |
西 |
駐車場 |
有 44,000円/月 |
| バイク置き場 |
無 |
駐輪場 |
有 無料 |
| 建物名・部屋番号 |
レジディア北新宿 |
ペット |
相談 |
| リフォーム履歴 |
- |
| リノベーション履歴 |
- |
| 備考 |
賃貸保証等:加入要(初回契約時:40%、更新時:10,000円、月額:1,000円)
管理形態/管理員の勤務形態:-/-
駐車場敷金:1.00ヶ月
※本広告の契約条件)2025年12月末迄の契約開始に限る※1年未満解約時、賃料1ヶ月分の違約金有り※保証会社利用必須※大手法人契約の場合は敷金2ヶ月※セカンドハウス利用不可
|
| エネルギー消費性能 |
- |
| 断熱性能 |
- |
| 目安光熱費 |
- |
| バス・トイレ |
バス・トイレ別、浴室乾燥機、洗面所独立、洗面所、洗面台、温水洗浄便座、トイレ |
| キッチン |
システムキッチン、3口以上コンロ |
| セキュリティー |
オートロック、モニター付インターホン、防犯カメラ |
| 収納 |
- |
| 設備・サービス |
室内洗濯機置場、洗濯機置場、給湯、エアコン |
| TV・通信 |
- |
| その他 |
宅配BOX、駐輪場、エレベーター |
| 契約期間 |
2年 |
現況 |
居住中 |
| 条件等 |
- |
入居可能時期 |
相談 |
| 更新料 |
新賃料 1ヶ月 |
物件番号 |
1178184506 |
| 情報公開日 |
2025年12月18日 |
次回更新予定日 |
2026年1月1日 |
| ケータイ用バーコード |
- スマートフォンでこの物件を見る
- スマートフォンからもこの物件をご覧になれます。
|
※「-」と表示されている項目については、情報提供会社にご確認ください。
ここから簡単にお問い合わせをすることができます。
(SSLでの暗号化での送信を希望されるお客さまは
こちら
よりお問い合わせください)
お問い合わせを行う前に
「個人情報の取り扱いについて」を必ずお読みください。
「個人情報の取り扱いについて」に同意いただいた場合は「上記にご同意の上 確認画面へ進む」のボタンをクリックしてください。
個人情報の取り扱いについて
皆さまが送付された個人情報はアットホーム(株)のサーバを経由し、お問い合わせ先の不動産会社にメールまたはFAXにて転送されるためアットホーム(株)にも保管されます。アットホーム(株)で保管された個人情報の取り扱いについては、【こちら】をご覧ください。
また、本画面でご記入いただいた個人情報は、お問い合わせ先の不動産会社でも保管します。 お問い合わせ先の不動産会社が保管する個人情報の取り扱いについては、不動産会社に直接お問い合わせください。
国土交通大臣免許(5)第7121号 |
|---|
- 交通:
- 東京メトロ銀座線/三越前駅 徒歩5分
- 東京都中央区日本橋大伝馬町1-4 野村不動産日本橋大伝馬町ビル4F
- TEL:
- 03-3662-5710
- FAX:
- 03-3662-5730
- 所属団体:
- (一社)不動産流通経営協会会員
取引態様:貸主  - 00996906
|
- スマートフォンで
この不動産会社を見る

|
- 提携サイト等より掲載されている物件情報につきましては、不動産会社詳細情報にリンクされていないものがあります。
- 物件に関するお問合せは、物件詳細ページの「情報提供会社」に表示されている不動産会社へ直接お願いいたします。
- 間取図は、現況を優先させていただきます。
- 映像は物件の一部を撮影したものです。物件の契約にあたっての最終判断はご自身の判断に基づいて行ってください。
- 仲介手数料について

アットホームは物件情報の適正化に努めております。
内容に誤りがある場合にはこちらへご連絡ください。