東京都足立区竹の塚1丁目(竹ノ塚駅)の賃貸:物件詳細
交通 所在地 |
駅徒歩 |
賃料 管理費等 |
敷金/保証金 礼金 |
間取り 面積 |
物件種目 築年月 |
|
東武伊勢崎線/竹ノ塚
東京都足立区竹の塚1丁目
|
7分
|
9.1万円
13,000円
|
なし / なし
1ヶ月
|
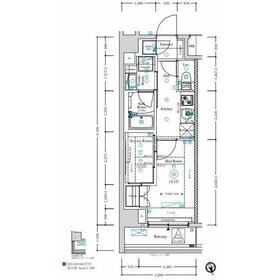
1SK
25.92m²
|
賃貸マンション
2024年11月(築1年2ヶ月)
|
ペット相談、常時ゴミ出し可能、角部屋、24時間換気システム、IT重説対応物件、保証人不要
|
|
間取図
|
外観
※イメージパース※
|
<
その他の画像
>
|
| 交通 | 東武伊勢崎線 竹ノ塚駅 徒歩7分 |
|---|
| その他の交通 | 東武伊勢崎線 西新井駅 徒歩21分 東武伊勢崎線 大師前駅 徒歩26分 |
| 所在地 |
東京都足立区竹の塚1丁目
|
| 物件種目 |
賃貸マンション |
| 賃料 |
9.1万円 |
管理費等 |
13,000円 |
| 敷金 / 保証金 |
なし / なし |
礼金 |
1ヶ月 |
| 敷引 |
- |
保証金償却 |
- |
| その他一時金 |
なし |
保険等 |
要 |
| 維持費等 |
- |
クレジットカード決済 |
初期費用可 |
| 間取り |
1SK(洋室4.5帖 S2.0帖 K2.0帖) |
専有面積 |
25.92m² |
| 築年月 |
2024年11月(築1年2ヶ月)
|
階建 / 階 |
7階建 / 6階 |
| 建物構造 |
RC |
総戸数 |
40戸 |
| 主要採光面 |
北東 |
駐車場 |
- |
| バイク置き場 |
有 |
駐輪場 |
有 |
| 建物名・部屋番号 |
ガリシア竹ノ塚 603 |
ペット |
小型犬可・ 猫可 |
| アピールポイント |
ハウスパートナー西新井店では足立区近郊エリアの物件をご紹介させていただきます。新築・駅近・ペット相談・分譲賃貸・貸家等お部屋探しのお悩み事があればお気軽にご相談くださいませ。お問い合わせ・ご来店をスタッフ一同心よりお待ち申し上げます。
テレワーク、在宅ワークにおすすめなお部屋も募集中です。ネット上で気になる物件がございましたら、当社でまとめてご紹介・ご案内が可能です。オンライン内見、初期費用のご相談もお気軽にお問合せ下さい。 |
| リフォーム履歴 |
- |
| リノベーション履歴 |
- |
| 備考 |
賃貸保証等:加入要(保証料初回総賃料の50%、月額保証料1%。年間保証料:10500円/年。)
管理形態/管理員の勤務形態:-/-
IT重説対応物件
ペット飼育可:敷金1匹につき1ヶ月増額 短期違約金あり:1年未満の解約は総賃料の2か月 BRIプライムサービス(保険・24時間サービス):2,530円/月額 更新事務手数料:0.5ヶ月。
|
| エネルギー消費性能 |
- |
| 断熱性能 |
- |
| 目安光熱費 |
- |
| バス・トイレ |
バス・トイレ別、浴室乾燥機、シャワー付洗面化粧台、洗面所独立、温水洗浄便座 |
| キッチン |
システムキッチン、2口コンロ、ガスコンロ付、ガスコンロ可 |
| セキュリティー |
モニター付オートロック、オートロック、モニター付インターホン、防犯カメラ |
| 収納 |
収納スペース、クローゼット、シューズボックス |
| 設備・サービス |
室内洗濯機置場、フローリング、都市ガス、エアコン |
| TV・通信 |
インターネット対応、インターネット使用料無料、光ファイバー、CS、BS端子 |
| その他 |
宅配BOX、バイク置き場、バルコニー、駐輪場、エレベーター |
| 契約期間 |
2年 |
現況 |
居住中 |
| 条件等 |
- |
入居可能時期 |
2026年2月上旬予定 |
| 更新料 |
新賃料 1ヶ月 |
物件番号 |
1178192104 |
| 情報公開日 |
2025年12月5日 |
次回更新予定日 |
2025年12月20日 |
| ケータイ用バーコード |
- スマートフォンでこの物件を見る
- スマートフォンからもこの物件をご覧になれます。
|
※「-」と表示されている項目については、情報提供会社にご確認ください。
| 周辺施設 |
ローソン足立竹ノ塚一丁目店 |
| 距離 |
220m |
写真を見る |
| 周辺施設 |
アコレ竹の塚1丁目店 |
| 距離 |
340m |
写真を見る |
| 周辺施設 |
医療法人社団弘仁勝和会勝和会病院 |
| 距離 |
730m |
写真を見る |
| 周辺施設 |
竹の塚駅前交番 |
| 距離 |
380m |
写真を見る |
| 周辺施設 |
竹ノ塚第二公園 |
| 距離 |
940m |
写真を見る |
| 周辺施設 |
ウエルシア足立竹の塚1丁目店 |
| 距離 |
1m |
写真を見る |
ここから簡単にお問い合わせをすることができます。
(SSLでの暗号化での送信を希望されるお客さまは
こちら
よりお問い合わせください)
お問い合わせを行う前に
「個人情報の取り扱いについて」を必ずお読みください。
「個人情報の取り扱いについて」に同意いただいた場合は「上記にご同意の上 確認画面へ進む」のボタンをクリックしてください。
個人情報の取り扱いについて
皆さまが送付された個人情報はアットホーム(株)のサーバを経由し、お問い合わせ先の不動産会社にメールまたはFAXにて転送されるためアットホーム(株)にも保管されます。アットホーム(株)で保管された個人情報の取り扱いについては、【こちら】をご覧ください。
また、本画面でご記入いただいた個人情報は、お問い合わせ先の不動産会社でも保管します。 お問い合わせ先の不動産会社が保管する個人情報の取り扱いについては、不動産会社に直接お問い合わせください。
国土交通大臣免許(2)第9556号 |
|---|
- 交通:
- 東武伊勢崎線/西新井駅 徒歩1分
- 東京都足立区西新井栄町2丁目3-4 丸一ビル2階
- TEL:
- 03-6890-5888
- FAX:
- 03-6890-5800
- 所属団体:
- (公社)全日本不動産協会会員(公社)首都圏不動産公正取引協議会加盟
取引態様:仲介  - 00275931
|
- スマートフォンで
この不動産会社を見る

|
- 提携サイト等より掲載されている物件情報につきましては、不動産会社詳細情報にリンクされていないものがあります。
- 物件に関するお問合せは、物件詳細ページの「情報提供会社」に表示されている不動産会社へ直接お願いいたします。
- 間取図は、現況を優先させていただきます。
- 映像は物件の一部を撮影したものです。物件の契約にあたっての最終判断はご自身の判断に基づいて行ってください。
- 仲介手数料について

アットホームは物件情報の適正化に努めております。
内容に誤りがある場合にはこちらへご連絡ください。