東京都小金井市東町4丁目(東小金井駅)の賃貸:物件詳細
交通 所在地 |
駅徒歩 |
賃料 管理費等 |
敷金/保証金 礼金 |
間取り 面積 |
物件種目 築年月 |
JR中央線/東小金井
東京都小金井市東町4丁目
|
11分
|
27万円
25,000円
|
1ヶ月 / なし
なし
|
3LDK
64.31m²
|
賃貸マンション
2019年2月(築6年9ヶ月)
|
ペット相談、角部屋、振分、二人入居可、閑静な住宅街、IT重説対応物件、保証人不要
|
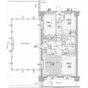
間取図
|
外観
|
<
その他の画像
>
|
交通 | JR中央線 東小金井駅 徒歩11分 |
---|
その他の交通 | 西武多摩川線 新小金井駅 徒歩5分 JR中央線 武蔵小金井駅 徒歩22分 |
所在地 |
東京都小金井市東町4丁目
|
物件種目 |
賃貸マンション |
賃料 |
27万円 |
管理費等 |
25,000円 |
敷金 / 保証金 |
1ヶ月 / なし |
礼金 |
なし |
敷引 |
- |
保証金償却 |
- |
その他一時金 |
なし、鍵交換代等:26,400円~ |
保険等 |
要 2年 27,000円 |
維持費等 |
- |
間取り |
3LDK(LDK13.3帖 洋室6.0帖 洋室6.0帖 洋室4.5帖) |
専有面積 |
64.31m² |
築年月 |
2019年2月(築6年9ヶ月)
|
階建 / 階 |
7階建 / 5階 |
建物構造 |
RC |
総戸数 |
- |
主要採光面 |
西 |
駐車場 |
- |
バイク置き場 |
有 |
駐輪場 |
有 無料 |
建物名・部屋番号 |
Nステージ東小金井 501 |
ペット |
小型犬可・ 猫可 |
アピールポイント |
他社様で掲載中のお部屋もまとめてご紹介可能です。 |
リフォーム履歴 |
- |
リノベーション履歴 |
- |
備考 |
賃貸保証等:加入要(賃貸保証料:0.40ヶ月 エポス又はクレディセゾン)
管理形態/管理員の勤務形態:-/-
IT重説対応物件
インターネット上の物件はほぼ全てご紹介可能♪まとめてご紹介致します♪お気軽にお問合せください!お部屋探しはタウンハウジングまで☆新着情報毎日更新☆経験豊富なスタッフがお待ちしております♪
|
エネルギー消費性能 |
- |
断熱性能 |
- |
目安光熱費 |
- |
バス・トイレ |
バス・トイレ別、浴室暖房、浴室乾燥機、オートバス、追焚機能、洗面所独立、洗面所、洗面台、シャワー、温水洗浄便座 |
キッチン |
カウンターキッチン、システムキッチン、食器洗浄乾燥機、IHクッキングヒーター、3口以上コンロ |
セキュリティー |
モニター付オートロック、モニター付インターホン、防犯カメラ |
収納 |
全居室収納、収納スペース、クローゼット、シューズボックス |
設備・サービス |
全居室エアコン、エアコン2台以上、床暖房、室内洗濯機置場、給湯、全居室フローリング、フローリング、都市ガス、エアコン |
TV・通信 |
インターネット対応、CS、BS端子 |
その他 |
宅配BOX、バイク置き場、ワイドバルコニー、ルーフバルコニー、二面バルコニー、バルコニー、駐輪場、エレベーター |
契約期間 |
2年 |
現況 |
空家 |
条件等 |
- |
入居可能時期 |
即時 |
仲介手数料 |
1.1ヶ月 |
|
|
更新料 |
新賃料 1ヶ月 |
物件番号 |
1178591312 |
情報公開日 |
2025年9月13日 |
次回更新予定日 |
2025年10月28日 |
ケータイ用バーコード |
- スマートフォンでこの物件を見る
- スマートフォンからもこの物件をご覧になれます。
|
※「-」と表示されている項目については、情報提供会社にご確認ください。
周辺施設 |
nonowa東小金井 |
距離 |
645m |
写真を見る |
周辺施設 |
東小金井駅周辺 |
距離 |
358m |
写真を見る |
周辺施設 |
スーパーナカヤ東小金井店 |
距離 |
472m |
写真を見る |
周辺施設 |
いなげや小金井中町店 |
距離 |
599m |
写真を見る |
周辺施設 |
ピーコックストア東小金井店 |
距離 |
598m |
写真を見る |
周辺施設 |
ピーコックストア |
距離 |
598m |
写真を見る |
ここから簡単にお問い合わせをすることができます。
(SSLでの暗号化での送信を希望されるお客さまは
こちら
よりお問い合わせください)
お問い合わせを行う前に
「個人情報の取り扱いについて」を必ずお読みください。
「個人情報の取り扱いについて」に同意いただいた場合は「上記にご同意の上 確認画面へ進む」のボタンをクリックしてください。
個人情報の取り扱いについて
皆さまが送付された個人情報はアットホーム(株)のサーバを経由し、お問い合わせ先の不動産会社にメールまたはFAXにて転送されるためアットホーム(株)にも保管されます。アットホーム(株)で保管された個人情報の取り扱いについては、【こちら】をご覧ください。
また、本画面でご記入いただいた個人情報は、お問い合わせ先の不動産会社でも保管します。 お問い合わせ先の不動産会社が保管する個人情報の取り扱いについては、不動産会社に直接お問い合わせください。
国土交通大臣免許(1)第9926号 |
---|
- 交通:
- JR中央線/三鷹駅 徒歩2分
- 東京都武蔵野市西久保1丁目1-1 井野ビル1F
- TEL:
- 0422-53-9070
- FAX:
- 0422-53-9071
取引態様:仲介  - 00264457
|
- スマートフォンで
この不動産会社を見る

|
- 提携サイト等より掲載されている物件情報につきましては、不動産会社詳細情報にリンクされていないものがあります。
- 物件に関するお問合せは、物件詳細ページの「情報提供会社」に表示されている不動産会社へ直接お願いいたします。
- 間取図は、現況を優先させていただきます。
- 映像は物件の一部を撮影したものです。物件の契約にあたっての最終判断はご自身の判断に基づいて行ってください。
- 仲介手数料について

アットホームは物件情報の適正化に努めております。
内容に誤りがある場合にはこちらへご連絡ください。