東京都足立区千住2丁目(北千住駅)の賃貸:物件詳細
交通 所在地 |
駅徒歩 |
賃料 管理費等 |
敷金/保証金 礼金 |
間取り 面積 |
物件種目 築年月 |
|
東京メトロ日比谷線/北千住
東京都足立区千住2丁目
|
2分
|
16.2万円
10,000円
|
16.2万円 / なし
16.2万円
|
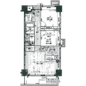
1SLDK
58.84m²
|
賃貸マンション
1999年10月(築26年5ヶ月)
|
ペット相談、分譲タイプ、ルームシェア可、二人入居可
|
|
間取図
|
外観
|
その他の画像
|
| 交通 | 東京メトロ日比谷線 北千住駅 徒歩2分 |
|---|
| その他の交通 | 東京メトロ千代田線 北千住駅 徒歩2分 JR常磐線 北千住駅 徒歩2分 |
| 所在地 |
東京都足立区千住2丁目
|
| 物件種目 |
賃貸マンション |
| 賃料 |
16.2万円 |
管理費等 |
10,000円 |
| 敷金 / 保証金 |
16.2万円 / なし |
礼金 |
16.2万円 |
| 敷引 |
- |
保証金償却 |
- |
| その他一時金 |
鍵交換費用:25,300円、ライフサポート:16,500円 |
保険等 |
要 2年 23,000円 |
| 維持費等 |
決済サービス料:550円/月 |
| 間取り |
1SLDK(洋室6 LD11.6 S4.6) |
専有面積 |
58.84m² |
| 築年月 |
1999年10月(築26年5ヶ月)
|
階建 / 階 |
地上14階地下1階建 / 4階 |
| 建物構造 |
SRC |
総戸数 |
- |
| 主要採光面 |
南東 |
駐車場 |
無 |
| バイク置き場 |
無 |
駐輪場 |
- |
| 建物名・部屋番号 |
グランフラッツ北千住 407 |
ペット |
相談 |
| リフォーム履歴 |
- |
| リノベーション履歴 |
- |
| 備考 |
賃貸保証等:加入要(その他 初回:賃料等総額の50% 更新料:1万円/年 決済サービス料:550円(税込)/月)
管理形態/管理員の勤務形態:-/-
バルコニー:7.76m²
【都心にアクセス良好な北千住駅徒歩2分】分譲賃貸マンション!
小型犬又は猫1匹まで飼育可能☆
・ペット飼育時:保証金1ヶ月(退去時償却)※敷金ではありません。
・ペットは小型犬又は猫1匹可
・契約金全額又は一部クレジットカードがご利用いただけます!
・駐輪場の有無や空き状況は要確認
・退去時の室内クリーニング費用負担があります
・鍵交換は任意です
|
| エネルギー消費性能 |
- |
| 断熱性能 |
- |
| 目安光熱費 |
- |
| バス・トイレ |
バス・トイレ別、洗面所独立、シャワー |
| キッチン |
システムキッチン、3口以上コンロ |
| セキュリティー |
オートロック |
| 収納 |
クローゼット、シューズボックス |
| 設備・サービス |
室内洗濯機置場、給湯、都市ガス |
| TV・通信 |
インターネット対応、ケーブルTV |
| その他 |
宅配BOX、バルコニー、エレベーター |
| 契約期間 |
2年 |
現況 |
- |
| 条件等 |
- |
入居可能時期 |
2026年2月中旬予定 |
| 更新料 |
新賃料 1ヶ月 |
物件番号 |
1178646502 |
| 情報公開日 |
2026年2月5日 |
次回更新予定日 |
2026年2月19日 |
| ケータイ用バーコード |
- スマートフォンでこの物件を見る
- スマートフォンからもこの物件をご覧になれます。
|
※「-」と表示されている項目については、情報提供会社にご確認ください。
| 周辺施設 |
医療法人社団寿英会内田病院 |
| 距離 |
183m |
ここから簡単にお問い合わせをすることができます。
(SSLでの暗号化での送信を希望されるお客さまは
こちら
よりお問い合わせください)
お問い合わせを行う前に
「個人情報の取り扱いについて」を必ずお読みください。
「個人情報の取り扱いについて」に同意いただいた場合は「上記にご同意の上 確認画面へ進む」のボタンをクリックしてください。
個人情報の取り扱いについて
皆さまが送付された個人情報はアットホーム(株)のサーバを経由し、お問い合わせ先の不動産会社にメールまたはFAXにて転送されるためアットホーム(株)にも保管されます。アットホーム(株)で保管された個人情報の取り扱いについては、【こちら】をご覧ください。
また、本画面でご記入いただいた個人情報は、お問い合わせ先の不動産会社でも保管します。 お問い合わせ先の不動産会社が保管する個人情報の取り扱いについては、不動産会社に直接お問い合わせください。
東京都知事免許(5)第80097号 |
|---|
- 交通:
- 東京メトロ副都心線/東新宿駅 徒歩3分
- 東京都新宿区新宿6丁目28-7 新宿イーストコートB1
- TEL:
- 03-4589-6715
- FAX:
- 03-4589-6901
- 所属団体:
- (公社)東京都宅地建物取引業協会会員(一社)全国住宅産業協会会員(公社)首都圏不動産公正取引協議会加盟
取引態様:代理  - 00162398
|
- スマートフォンで
この不動産会社を見る

|
- 提携サイト等より掲載されている物件情報につきましては、不動産会社詳細情報にリンクされていないものがあります。
- 物件に関するお問合せは、物件詳細ページの「情報提供会社」に表示されている不動産会社へ直接お願いいたします。
- 間取図は、現況を優先させていただきます。
- 映像は物件の一部を撮影したものです。物件の契約にあたっての最終判断はご自身の判断に基づいて行ってください。
- 仲介手数料について

アットホームは物件情報の適正化に努めております。
内容に誤りがある場合にはこちらへご連絡ください。