東京都中野区弥生町2丁目(中野新橋駅)の賃貸:物件詳細
交通 所在地 |
駅徒歩 |
賃料 管理費等 |
敷金/保証金 礼金 |
間取り 面積 |
物件種目 築年月 |
|
東京メトロ丸ノ内方南支線/中野新橋
東京都中野区弥生町2丁目
|
1分
|
24.5万円
20,000円
|
24.5万円 / なし
24.5万円
|
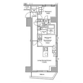
1SLDK
53.99m²
|
賃貸マンション
2021年5月(築4年11ヶ月)
|
ペット相談、楽器相談、角部屋、IT重説対応物件、保証人不要
|
|
間取図
|
外観
|
<
その他の画像
>
|
|
|
- VR/パノラマで内見する
-
その場で物件を内見しているように見ることができます。
左のQRコードをスマートフォンで読み取って、再生されるVR画像をVRゴーグルでごらんください。
|
| 交通 | 東京メトロ丸ノ内方南支線 中野新橋駅 徒歩1分 |
|---|
| その他の交通 | 東京メトロ丸ノ内方南支線 中野富士見町駅 徒歩9分 東京メトロ丸ノ内線 新中野駅 徒歩12分 |
| 所在地 |
東京都中野区弥生町2丁目
|
| 物件種目 |
賃貸マンション |
| 賃料 |
24.5万円 |
管理費等 |
20,000円 |
| 敷金 / 保証金 |
24.5万円 / なし |
礼金 |
24.5万円 |
| 敷引 |
- |
保証金償却 |
- |
| その他一時金 |
鍵交換費用:33,000円、駆付けサポート24:16,500円 |
保険等 |
要 2年 |
| 維持費等 |
- |
| 間取り |
1SLDK(LDK13 洋室4 洋室4.6) |
専有面積 |
53.99m² |
| 築年月 |
2021年5月(築4年11ヶ月)
|
階建 / 階 |
14階建 / 8階 |
| 建物構造 |
RC |
総戸数 |
66戸 |
| 主要採光面 |
西 |
駐車場 |
無 |
| バイク置き場 |
- |
駐輪場 |
- |
| 建物名・部屋番号 |
ザ・パークハビオ中野新橋 801 |
ペット |
相談 |
| アピールポイント |
当店が自信を持ってオススメするお部屋です。チャットやLINE、メールでのご相談も可能。来店不要のオンラインによるご内見、重要事項説明も便利です。 |
| リフォーム履歴 |
- |
| リノベーション履歴 |
- |
| 備考 |
賃貸保証等:加入要(指定保証会社 家賃保証会社 初回保証料 賃料等 (下限25,000円)50%)
管理形態/管理員の勤務形態:-/-
IT重説対応物件
|
| エネルギー消費性能 |
- |
| 断熱性能 |
- |
| 目安光熱費 |
- |
| バス・トイレ |
バス・トイレ別、浴室乾燥機、追焚機能、洗面所独立、シャワー、温水洗浄便座、トイレ |
| キッチン |
システムキッチン、3口以上コンロ、2口コンロ、ガスコンロ付 |
| セキュリティー |
モニター付オートロック、オートロック、モニター付インターホン、防犯カメラ、火災警報器(報知機) |
| 収納 |
ウォークインクローゼット、シューズインクローゼット、クローゼット、シューズボックス |
| 設備・サービス |
エアコン2台以上、室内洗濯機置場、都市ガス給湯、給湯、フローリング、都市ガス、エアコン、ダウンライト |
| TV・通信 |
インターネット対応、インターネット使用料無料、光ファイバー、ケーブルTV、CS、BS端子 |
| その他 |
宅配BOX、バルコニー、エレベーター |
| 契約期間 |
2年 |
現況 |
- |
| 条件等 |
- |
入居可能時期 |
2026年5月中旬予定 |
| 更新料 |
新賃料 1ヶ月 |
物件番号 |
1178681915 |
| 情報公開日 |
2026年3月16日 |
次回更新予定日 |
2026年3月30日 |
| ケータイ用バーコード |
- スマートフォンでこの物件を見る
- スマートフォンからもこの物件をご覧になれます。
|
※「-」と表示されている項目については、情報提供会社にご確認ください。
| 周辺施設 |
まいばすけっと中野新橋駅前店 |
| 距離 |
43m |
写真を見る |
| 周辺施設 |
ファミリーマート薬ヒグチ中野新橋駅前店 |
| 距離 |
60m |
写真を見る |
| 周辺施設 |
薬のヒグチ中野新橋店 |
| 距離 |
27m |
写真を見る |
ここから簡単にお問い合わせをすることができます。
(SSLでの暗号化での送信を希望されるお客さまは
こちら
よりお問い合わせください)
お問い合わせを行う前に
「個人情報の取り扱いについて」を必ずお読みください。
「個人情報の取り扱いについて」に同意いただいた場合は「上記にご同意の上 確認画面へ進む」のボタンをクリックしてください。
個人情報の取り扱いについて
皆さまが送付された個人情報はアットホーム(株)のサーバを経由し、お問い合わせ先の不動産会社にメールまたはFAXにて転送されるためアットホーム(株)にも保管されます。アットホーム(株)で保管された個人情報の取り扱いについては、【こちら】をご覧ください。
また、本画面でご記入いただいた個人情報は、お問い合わせ先の不動産会社でも保管します。 お問い合わせ先の不動産会社が保管する個人情報の取り扱いについては、不動産会社に直接お問い合わせください。
国土交通大臣免許(6)第5570号 |
|---|
- 交通:
- JR山手線/新宿駅 徒歩2分
- 東京都新宿区西新宿1丁目15-13 胖ビル2F
- TEL:
- 03-3340-3210
- FAX:
- 03-3340-3600
取引態様:仲介  - 00784037
|
- スマートフォンで
この不動産会社を見る

|
- 提携サイト等より掲載されている物件情報につきましては、不動産会社詳細情報にリンクされていないものがあります。
- 物件に関するお問合せは、物件詳細ページの「情報提供会社」に表示されている不動産会社へ直接お願いいたします。
- 間取図は、現況を優先させていただきます。
- 映像は物件の一部を撮影したものです。物件の契約にあたっての最終判断はご自身の判断に基づいて行ってください。
- 仲介手数料について

アットホームは物件情報の適正化に努めております。
内容に誤りがある場合にはこちらへご連絡ください。