愛知県名古屋市港区名港1丁目(築地口駅)の賃貸:物件詳細
交通 所在地 |
駅徒歩 |
賃料 管理費等 |
敷金/保証金 礼金 |
間取り 面積 |
物件種目 築年月 |
|
名古屋市名港線/築地口
愛知県名古屋市港区名港1丁目
|
4分
|
6.3万円
8,000円
|
なし / なし
なし
|
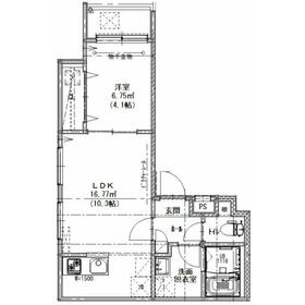
1LDK
35.37m²
|
賃貸マンション
2024年3月(築1年10ヶ月)
|
デザイナーズ、駐車場2台分、角部屋、最上階、二人入居可、事務所使用可、2面採光、閑静な住宅街
|
|
間取図
|
外観
|
<
その他の画像
>
|
| 交通 | 名古屋市名港線 築地口駅 徒歩4分 |
|---|
| その他の交通 | 名古屋市名港線 名古屋港駅 徒歩10分 あおなみ線 稲永駅 徒歩28分 |
| 所在地 |
愛知県名古屋市港区名港1丁目
|
| 物件種目 |
賃貸マンション |
| 賃料 |
6.3万円 |
管理費等 |
8,000円 |
| 敷金 / 保証金 |
なし / なし |
礼金 |
なし |
| 敷引 |
- |
保証金償却 |
- |
| その他一時金 |
室内清掃費用:11,000円 |
保険等 |
要 |
| 維持費等 |
町内会費(月額):600円/月、スターツ:1,000円/月 |
| 間取り |
1LDK(LDK10.3、洋4.1) |
専有面積 |
35.37m² |
| 築年月 |
2024年3月(築1年10ヶ月)
|
階建 / 階 |
3階建 / 3階 |
| 建物構造 |
その他 |
総戸数 |
- |
| 主要採光面 |
西 |
駐車場 |
近有 12,000円/月 |
| バイク置き場 |
有 2,000円/月 |
駐輪場 |
有 無料 |
| 建物名・部屋番号 |
Cherim築地口Luna 302 |
ペット |
-
|
| アピールポイント |
宅配ボックス、バルコニー付きの1LDK。照明、追い焚き、温水洗浄便座、独立洗面所など充実した設備が揃っています。オートロック、防犯対策もバッチリ。駐車2台可で閑静な住宅街です。 |
| リフォーム履歴 |
- |
| リノベーション履歴 |
- |
| 備考 |
賃貸保証等:加入要(【初回保証委託料】月額賃料共益費の30%【年間保証委託料】1万円【引き落とし手数料】440円/月プランによって異なります。)
管理形態/管理員の勤務形態:-/-
短期解約違約金あり。室内清掃費用11,000円(契約時支払)
|
| エネルギー消費性能 |
- |
| 断熱性能 |
- |
| 目安光熱費 |
- |
| バス・トイレ |
バス・トイレ別、追焚機能、洗面所独立、洗面所、温水洗浄便座、トイレ |
| キッチン |
システムキッチン、2口コンロ、ガスコンロ可 |
| セキュリティー |
モニター付オートロック、オートロック、モニター付インターホン、ディンプルキー、ダブルロックドア、防犯カメラ |
| 収納 |
収納スペース、クローゼット、シューズボックス |
| 設備・サービス |
室内洗濯機置場、洗濯機置場、全居室フローリング、フローリング、室内物干し、プロパンガス、照明器具 |
| TV・通信 |
インターネット対応、インターネット使用料無料 |
| その他 |
宅配BOX、バイク置き場、バルコニー、駐輪場 |
| 契約期間 |
2年 |
現況 |
空家 |
| 条件等 |
- |
入居可能時期 |
即時 |
| 仲介手数料 |
1.1ヶ月 |
|
|
| 更新料 |
- |
物件番号 |
1178688716 |
| 情報公開日 |
2025年11月24日 |
次回更新予定日 |
2025年12月29日 |
| ケータイ用バーコード |
- スマートフォンでこの物件を見る
- スマートフォンからもこの物件をご覧になれます。
|
※「-」と表示されている項目については、情報提供会社にご確認ください。
| 周辺施設 |
バロー 港栄店 |
| 距離 |
1104m |
写真を見る |
| 周辺施設 |
ららぽーと名古屋みなとアクルス |
| 距離 |
1363m |
写真を見る |
| 周辺施設 |
MEGAドン・キホーテUNY 東海通店 |
| 距離 |
1603m |
写真を見る |
| 周辺施設 |
ファミリーマート 港陽一丁目店 |
| 距離 |
662m |
写真を見る |
ここから簡単にお問い合わせをすることができます。
(SSLでの暗号化での送信を希望されるお客さまは
こちら
よりお問い合わせください)
お問い合わせを行う前に
「個人情報の取り扱いについて」を必ずお読みください。
「個人情報の取り扱いについて」に同意いただいた場合は「上記にご同意の上 確認画面へ進む」のボタンをクリックしてください。
個人情報の取り扱いについて
皆さまが送付された個人情報はアットホーム(株)のサーバを経由し、お問い合わせ先の不動産会社にメールまたはFAXにて転送されるためアットホーム(株)にも保管されます。アットホーム(株)で保管された個人情報の取り扱いについては、【こちら】をご覧ください。
また、本画面でご記入いただいた個人情報は、お問い合わせ先の不動産会社でも保管します。 お問い合わせ先の不動産会社が保管する個人情報の取り扱いについては、不動産会社に直接お問い合わせください。
東京都知事免許(2)第103136号 |
|---|
- 交通:
- JR山手線/目黒駅 徒歩11分
- 東京都目黒区下目黒3丁目4-2 タムラビル5階
- TEL:
- 03-4446-2393
- FAX:
- 03-5941-7551
- 所属団体:
- (公社)東京都宅地建物取引業協会会員(公社)首都圏不動産公正取引協議会加盟
取引態様:仲介  - 00270839
|
- スマートフォンで
この不動産会社を見る

|
- 提携サイト等より掲載されている物件情報につきましては、不動産会社詳細情報にリンクされていないものがあります。
- 物件に関するお問合せは、物件詳細ページの「情報提供会社」に表示されている不動産会社へ直接お願いいたします。
- 間取図は、現況を優先させていただきます。
- 映像は物件の一部を撮影したものです。物件の契約にあたっての最終判断はご自身の判断に基づいて行ってください。
- 仲介手数料について

アットホームは物件情報の適正化に努めております。
内容に誤りがある場合にはこちらへご連絡ください。