大阪府大阪市西区土佐堀1丁目(肥後橋駅)の賃貸:物件詳細
交通 所在地 |
駅徒歩 |
賃料 管理費等 |
敷金/保証金 礼金 |
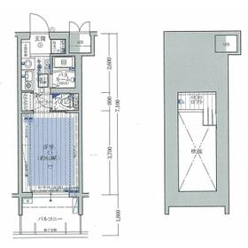
間取り 面積 |
物件種目 築年月 |
|
地下鉄四つ橋線/肥後橋
大阪府大阪市西区土佐堀1丁目
|
5分
|
5.15万円
14,130円
|
なし / なし
なし
|
1K
18.82m²
|
賃貸マンション
2002年2月(築23年11ヶ月)
|
分譲タイプ、常時ゴミ出し可能、高齢者相談、24時間換気システム、閑静な住宅街、外観タイル張り、IT重説対応物件
|
|
間取図
|
外観
|
<
その他の画像
>
|
|
|
| 交通 | 地下鉄四つ橋線 肥後橋駅 徒歩5分 |
|---|
| その他の交通 | 京阪中之島線 渡辺橋駅 徒歩5分 地下鉄中央線 阿波座駅 徒歩15分 |
| 所在地 |
大阪府大阪市西区土佐堀1丁目
|
| 物件種目 |
賃貸マンション |
| 賃料 |
5.15万円 |
管理費等 |
14,130円 |
| 敷金 / 保証金 |
なし / なし |
礼金 |
なし |
| 敷引 |
- |
保証金償却 |
- |
| その他一時金 |
安心クラブ入会金:5,500円、室内清掃費用:30,800円、鍵交換代等:30,000円~ |
保険等 |
要 2年 20,000円 |
| 維持費等 |
町会費:200円/月、安心クラブ月会費:990円/月 |
| 間取り |
1K(洋6) |
専有面積 |
18.82m² |
| 築年月 |
2002年2月(築23年11ヶ月)
|
階建 / 階 |
13階建 / 4階 |
| 建物構造 |
SRC |
総戸数 |
- |
| 主要採光面 |
北 |
駐車場 |
有 15,900円/月 |
| バイク置き場 |
有 |
駐輪場 |
有 |
| 建物名・部屋番号 |
エステムコート大阪・中之島南 |
ペット |
-
|
| アピールポイント |
セキュリティ面は、TVインターホン・オートロックなどを備え付けているので安心して暮らせます。共用部には宅配ボックス・ゴミ出し24時間OKなど様々な設備やサービスが揃っているので便利です。収納はクロゼット・シューズボックスなど豊富なので、衣類や履き物の整理がしやすく便利です。室内設備は浴室乾燥機・洗面化粧台など豊富に揃っており、過ごしやすいお部屋になっております。物件は通風良好な空間です。一口コンロが付いた物件です。転居先に住み心地も良いこちらの賃貸物件。充実した新生活を過ごしましょう。こちらの物件はインターネットをご利用いただけます。キレイなフローリングが気持ち良い物件となっています。駐車場がある物件です。現在空きがあります。バルコニー付きの物件で、用途に合わせて活用できます。 |
| リフォーム履歴 |
- |
| リノベーション履歴 |
- |
| 備考 |
賃貸保証等:加入要(初回 総賃料50% ?額 1.5%初回 総賃料50% ?額 1.5%)
管理形態/管理員の勤務形態:-/巡回
IT重説対応物件、管理人巡回
物件のお問い合わせはSumoSumoまで♪♪
室内設備は浴室乾燥機・洗面化粧台などが揃っており、とても充実しています。セキュリティ面は、オートロック・TVインターホンなど充実しているので、防犯対策もばっちりです。共用部にはゴミ出し24時間OK・宅配ボックスなどが揃っており、とても充実しています。収納はクロゼット・シューズボックスなど豊富なので、広々と空間を利用することも可能です。一口コンロが付いている物件です。2沿線を利用でき、利便性が高い物件です。駐車場が空いているので、車をお持ちの方も安心です。13階建てで街並みにも馴染んだ物件です。造りとデザインに関して、自信をもって情報を提供できるマンションです。駐輪場が併設されている物件です。畳よりも傷がつきにくいフローリングで、扱いやすく好評いただいています。
|
| エネルギー消費性能 |
- |
| 断熱性能 |
- |
| 目安光熱費 |
- |
| バス・トイレ |
バス・トイレ別、浴室暖房、浴室乾燥機、シャワー付洗面化粧台、洗面台、シャワー、温水洗浄便座、トイレ |
| キッチン |
システムキッチン、独立型キッチン、ガスコンロ可 |
| セキュリティー |
モニター付オートロック、オートロック、モニター付インターホン、防犯カメラ |
| 収納 |
収納スペース、クローゼット、シューズボックス |
| 設備・サービス |
室内洗濯機置場、洗濯機置場、ロフト、都市ガス給湯、給湯、フローリング、都市ガス、エアコン、冷房 |
| TV・通信 |
インターネット対応、光ファイバー、CATVインターネット、ケーブルTV、CS、BS端子 |
| その他 |
宅配BOX、バイク置き場、バルコニー、駐輪場、エレベーター |
| 契約期間 |
2年 |
現況 |
空家 |
| 条件等 |
- |
入居可能時期 |
相談 |
| 更新料 |
- |
物件番号 |
1179035916 |
| 情報公開日 |
2025年11月24日 |
次回更新予定日 |
2025年12月22日 |
| ケータイ用バーコード |
- スマートフォンでこの物件を見る
- スマートフォンからもこの物件をご覧になれます。
|
※「-」と表示されている項目については、情報提供会社にご確認ください。
| 周辺施設 |
ファミリーマート 江戸堀なにわ筋店 |
| 距離 |
84m |
写真を見る |
| 周辺施設 |
ライフ土佐堀店 |
| 距離 |
140m |
写真を見る |
| 周辺施設 |
阪急オアシス 中之島店 |
| 距離 |
832m |
写真を見る |
| 周辺施設 |
ダイコクドラッグ 肥後橋駅前店 |
| 距離 |
508m |
写真を見る |
| 周辺施設 |
大阪江戸堀郵便局 |
| 距離 |
258m |
写真を見る |
| 周辺施設 |
西警察署靭交番 |
| 距離 |
569m |
写真を見る |
ここから簡単にお問い合わせをすることができます。
(SSLでの暗号化での送信を希望されるお客さまは
こちら
よりお問い合わせください)
お問い合わせを行う前に
「個人情報の取り扱いについて」を必ずお読みください。
「個人情報の取り扱いについて」に同意いただいた場合は「上記にご同意の上 確認画面へ進む」のボタンをクリックしてください。
個人情報の取り扱いについて
皆さまが送付された個人情報はアットホーム(株)のサーバを経由し、お問い合わせ先の不動産会社にメールまたはFAXにて転送されるためアットホーム(株)にも保管されます。アットホーム(株)で保管された個人情報の取り扱いについては、【こちら】をご覧ください。
また、本画面でご記入いただいた個人情報は、お問い合わせ先の不動産会社でも保管します。 お問い合わせ先の不動産会社が保管する個人情報の取り扱いについては、不動産会社に直接お問い合わせください。
大阪府知事免許(1)第62697号 |
|---|
- 交通:
- 地下鉄御堂筋線/心斎橋駅 徒歩3分
- 大阪府大阪市中央区南船場3丁目3-23 中和船場ビル102号
- TEL:
- 06-4400-6315
- FAX:
- 06-6258-3116
- 所属団体:
- (公社)全日本不動産協会会員(公社)近畿地区不動産公正取引協議会加盟
取引態様:仲介  - 50105934
|
- スマートフォンで
この不動産会社を見る

|
- 提携サイト等より掲載されている物件情報につきましては、不動産会社詳細情報にリンクされていないものがあります。
- 物件に関するお問合せは、物件詳細ページの「情報提供会社」に表示されている不動産会社へ直接お願いいたします。
- 間取図は、現況を優先させていただきます。
- 映像は物件の一部を撮影したものです。物件の契約にあたっての最終判断はご自身の判断に基づいて行ってください。
- 仲介手数料について

アットホームは物件情報の適正化に努めております。
内容に誤りがある場合にはこちらへご連絡ください。