東京都世田谷区北沢1丁目(東北沢駅)の賃貸:物件詳細
交通 所在地 |
駅徒歩 |
賃料 管理費等 |
敷金/保証金 礼金 |
間取り 面積 |
物件種目 築年月 |
|
小田急小田原線/東北沢
東京都世田谷区北沢1丁目
|
4分
|
8.2万円
8,000円
|
1ヶ月 / なし
1ヶ月
|
ワンルーム
19.89m²
|
賃貸マンション
1998年4月(築27年7ヶ月)
|
分譲タイプ、角部屋、最上階、全室2面採光、2面採光、外観タイル張り、IT重説対応物件、保証人不要
|
|
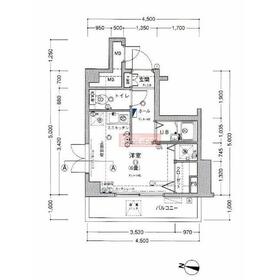
間取図
間取図
|
外観
|
<
その他の画像
>
|
| 交通 | 小田急小田原線 東北沢駅 徒歩4分 |
|---|
| その他の交通 | 小田急小田原線 下北沢駅 徒歩12分 京王井の頭線 池ノ上駅 徒歩8分 |
| 所在地 |
東京都世田谷区北沢1丁目
|
| 物件種目 |
賃貸マンション |
| 賃料 |
8.2万円 |
管理費等 |
8,000円 |
| 敷金 / 保証金 |
1ヶ月 / なし |
礼金 |
1ヶ月 |
| 敷引 |
- |
保証金償却 |
- |
| その他一時金 |
プレミアデスク:16,500円、害虫防除施工:16,500円、鍵交換代等:20,000円~ |
保険等 |
要 2年 20,000円 |
| 維持費等 |
- |
クレジットカード決済 |
初期費用可 |
| 間取り |
ワンルーム(洋室6.0帖) |
専有面積 |
19.89m² |
| 築年月 |
1998年4月(築27年7ヶ月)
|
階建 / 階 |
5階建 / 5階 |
| 建物構造 |
RC |
総戸数 |
19戸 |
| 主要採光面 |
西 |
駐車場 |
無 |
| バイク置き場 |
- |
駐輪場 |
- |
| 建物名・部屋番号 |
エクセリア東北沢 501 |
ペット |
-
|
| アピールポイント |
おしゃれなカフェをテーマにしたお部屋探しCAFEヘヤギメ!若くて活気あるスタッフが丁寧に対応いたします。LINE・メール・ビデオ通話でのオンライン相談、現地またはオンライン内覧、IT重説に対応。初期費用はクレジットカード(一括・分割)でのお支払いが可能です。ポータルに掲載されていない未公開物件や周辺エリアの類似物件もまとめてご紹介します。遠方にお住まいの方やお忙しい方も、お気軽にお問い合わせください。最新の空室状況や費用は変動いたしますので、お早めにご確認ください。
★ヘヤギメ!三軒茶屋店は三軒茶屋駅駅から徒歩1分。三軒茶屋交番の横です。カフェのようなおしゃれな内装。物件の現地でのご内覧やオンラインでご対応も可能。若くて活気あるスタッフが丁寧にご対応します★
|
| リフォーム履歴 |
- |
| リノベーション履歴 |
- |
| 備考 |
賃貸保証等:利用可(賃貸保証料:1.00ヶ月 月額総賃料の100%負担。次年度より年間保証料15,000円)
管理形態/管理員の勤務形態:-/巡回
IT重説対応物件、管理人巡回
メールやLINEでご相談可能!ご来店が難しいお客様もお気軽にお問合せください。複数物件まとめてご案内も可能です。★オンライン内見・オンライン相談可★ご契約もオンライン対応★初期費用クレジットカード決済(一括・分割)可能★
|
| エネルギー消費性能 |
- |
| 断熱性能 |
- |
| 目安光熱費 |
- |
| バス・トイレ |
バス・トイレ別、シャワー |
| キッチン |
システムキッチン、IHクッキングヒーター |
| セキュリティー |
オートロック、防犯カメラ、火災警報器(報知機) |
| 収納 |
クローゼット、シューズボックス |
| 設備・サービス |
室内洗濯機置場、給湯、フローリング、都市ガス、エアコン |
| TV・通信 |
光ファイバー |
| その他 |
宅配BOX、バルコニー、エレベーター |
| 契約期間 |
2年 |
現況 |
空家 |
| 条件等 |
- |
入居可能時期 |
即時 |
| 更新料 |
新賃料 1ヶ月 |
物件番号 |
1179441212 |
| 情報公開日 |
2025年9月12日 |
次回更新予定日 |
2025年11月10日 |
| ケータイ用バーコード |
- スマートフォンでこの物件を見る
- スマートフォンからもこの物件をご覧になれます。
|
※「-」と表示されている項目については、情報提供会社にご確認ください。
| 周辺施設 |
まいばすけっと東北沢駅東口店 |
| 距離 |
140m |
写真を見る |
| 周辺施設 |
まいばすけっと北沢4丁目店 |
| 距離 |
410m |
写真を見る |
| 周辺施設 |
まいばすけっと池ノ上駅前店 |
| 距離 |
520m |
写真を見る |
| 周辺施設 |
ローソン東北沢駅前店 |
| 距離 |
300m |
写真を見る |
| 周辺施設 |
ファミリーマート池ノ上駅北口店 |
| 距離 |
480m |
写真を見る |
| 周辺施設 |
ファミリーマート世田谷北沢三丁目店 |
| 距離 |
450m |
写真を見る |
ここから簡単にお問い合わせをすることができます。
(SSLでの暗号化での送信を希望されるお客さまは
こちら
よりお問い合わせください)
お問い合わせを行う前に
「個人情報の取り扱いについて」を必ずお読みください。
「個人情報の取り扱いについて」に同意いただいた場合は「上記にご同意の上 確認画面へ進む」のボタンをクリックしてください。
個人情報の取り扱いについて
皆さまが送付された個人情報はアットホーム(株)のサーバを経由し、お問い合わせ先の不動産会社にメールまたはFAXにて転送されるためアットホーム(株)にも保管されます。アットホーム(株)で保管された個人情報の取り扱いについては、【こちら】をご覧ください。
また、本画面でご記入いただいた個人情報は、お問い合わせ先の不動産会社でも保管します。 お問い合わせ先の不動産会社が保管する個人情報の取り扱いについては、不動産会社に直接お問い合わせください。
国土交通大臣免許(4)第7352号 |
|---|
- 交通:
- 東急田園都市線/三軒茶屋駅 徒歩1分
- 東京都世田谷区太子堂4丁目22-15 Rootus Sancha 2F・3F
- TEL:
- 0120-765-471
- 所属団体:
- (公社)全日本不動産協会会員(公社)首都圏不動産公正取引協議会加盟
取引態様:仲介  - 00270664
|
- スマートフォンで
この不動産会社を見る

|
- 提携サイト等より掲載されている物件情報につきましては、不動産会社詳細情報にリンクされていないものがあります。
- 物件に関するお問合せは、物件詳細ページの「情報提供会社」に表示されている不動産会社へ直接お願いいたします。
- 間取図は、現況を優先させていただきます。
- 映像は物件の一部を撮影したものです。物件の契約にあたっての最終判断はご自身の判断に基づいて行ってください。
- 仲介手数料について

アットホームは物件情報の適正化に努めております。
内容に誤りがある場合にはこちらへご連絡ください。