福岡県福岡市東区香椎照葉4丁目(千早駅)の賃貸:物件詳細
交通 所在地 |
駅徒歩 |
賃料 管理費等 |
敷金/保証金 礼金 |
間取り 面積 |
物件種目 築年月 |
|
JR鹿児島本線/千早 【バス】10分 照葉小中学校前 停歩2分
福岡県福岡市東区香椎照葉4丁目
|
-
|
19万円
8,000円
|
なし / なし
2ヶ月
|
4LDK
90.22m²
|
賃貸マンション
2013年3月(築12年10ヶ月)
|
楽器相談、角部屋、二人入居可、オール電化
|
|
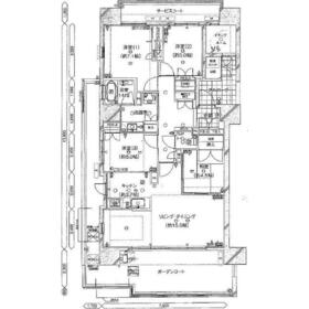
間取図
|
外観
|
<
その他の画像
>
|
| 交通 | JR鹿児島本線 千早駅 【バス】 10分 照葉小中学校前 停歩2分 |
|---|
| その他の交通 | 西鉄貝塚線 香椎花園前駅 徒歩20分 JR鹿児島本線 香椎駅 徒歩35分 |
| 所在地 |
福岡県福岡市東区香椎照葉4丁目
|
| 物件種目 |
賃貸マンション |
| 賃料 |
19万円 |
管理費等 |
8,000円 |
| 敷金 / 保証金 |
なし / なし |
礼金 |
2ヶ月 |
| 敷引 |
- |
保証金償却 |
- |
| その他一時金 |
なし |
保険等 |
要 2年 23,500円 |
| 維持費等 |
- |
クレジットカード決済 |
初期費用可 |
| 間取り |
4LDK(和室4.5畳/洋室7.1畳/洋室5畳/洋室5畳/LDK19.) |
専有面積 |
90.22m² |
| 築年月 |
2013年3月(築12年10ヶ月)
|
階建 / 階 |
14階建 / 10階 |
| 建物構造 |
RC |
総戸数 |
- |
| 主要採光面 |
|
駐車場 |
- |
| バイク置き場 |
- |
駐輪場 |
有 |
| 建物名・部屋番号 |
|
ペット |
-
|
| リフォーム履歴 |
- |
| リノベーション履歴 |
- |
| 備考 |
賃貸保証等:加入要(加入要 / 賃貸保証会社:日本セーフティー株式会社初回保証料:家賃等の40% 月額保証料800円)
管理形態/管理員の勤務形態:-/-
|
| エネルギー消費性能 |
- |
| 断熱性能 |
- |
| 目安光熱費 |
- |
| バス・トイレ |
バス・トイレ別、浴室乾燥機、追焚機能、シャワー付洗面化粧台、洗面所独立、洗面台、シャワー、トイレ |
| キッチン |
システムキッチン、食器洗浄乾燥機、ディスポーザー、IHクッキングヒーター |
| セキュリティー |
オートロック、モニター付インターホン |
| 収納 |
収納スペース、トランクルーム、クローゼット、シューズボックス |
| 設備・サービス |
室内洗濯機置場、洗濯機置場、給湯、フローリング、アルコーブ |
| TV・通信 |
- |
| その他 |
バルコニー、駐輪場 |
| 契約期間 |
2年 |
現況 |
空家 |
| 条件等 |
- |
入居可能時期 |
相談 |
| 更新料 |
- |
物件番号 |
1179611011 |
| 情報公開日 |
2025年10月20日 |
次回更新予定日 |
2026年1月4日 |
| ケータイ用バーコード |
- スマートフォンでこの物件を見る
- スマートフォンからもこの物件をご覧になれます。
|
※「-」と表示されている項目については、情報提供会社にご確認ください。
| 周辺施設 |
杉岡記念病院 |
| 距離 |
750m |
写真を見る |
| 周辺施設 |
イオンモール |
| 距離 |
1400m |
写真を見る |
| 周辺施設 |
アイランドシティ保育園 |
| 距離 |
100m |
写真を見る |
ここから簡単にお問い合わせをすることができます。
(SSLでの暗号化での送信を希望されるお客さまは
こちら
よりお問い合わせください)
お問い合わせを行う前に
「個人情報の取り扱いについて」を必ずお読みください。
「個人情報の取り扱いについて」に同意いただいた場合は「上記にご同意の上 確認画面へ進む」のボタンをクリックしてください。
個人情報の取り扱いについて
皆さまが送付された個人情報はアットホーム(株)のサーバを経由し、お問い合わせ先の不動産会社にメールまたはFAXにて転送されるためアットホーム(株)にも保管されます。アットホーム(株)で保管された個人情報の取り扱いについては、【こちら】をご覧ください。
また、本画面でご記入いただいた個人情報は、お問い合わせ先の不動産会社でも保管します。 お問い合わせ先の不動産会社が保管する個人情報の取り扱いについては、不動産会社に直接お問い合わせください。
国土交通大臣免許(3)第8479号 |
|---|
- 交通:
- JR鹿児島本線/福間駅 徒歩2分
- 福岡県福津市中央3丁目8-15-2
- TEL:
- 0940-38-5100
- 所属団体:
- (公社)全日本不動産協会会員(一社)九州不動産公正取引協議会加盟
取引態様:仲介  - 80505957
|
- スマートフォンで
この不動産会社を見る

|
- 提携サイト等より掲載されている物件情報につきましては、不動産会社詳細情報にリンクされていないものがあります。
- 物件に関するお問合せは、物件詳細ページの「情報提供会社」に表示されている不動産会社へ直接お願いいたします。
- 間取図は、現況を優先させていただきます。
- 映像は物件の一部を撮影したものです。物件の契約にあたっての最終判断はご自身の判断に基づいて行ってください。
- 仲介手数料について

アットホームは物件情報の適正化に努めております。
内容に誤りがある場合にはこちらへご連絡ください。