兵庫県神戸市垂水区大町1丁目(山陽垂水駅)の賃貸:物件詳細
交通 所在地 |
駅徒歩 |
賃料 管理費等 |
敷金/保証金 礼金 |
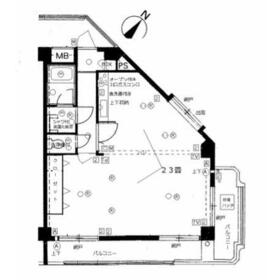
間取り 面積 |
物件種目 築年月 |
|
山陽電鉄本線/山陽垂水
兵庫県神戸市垂水区大町1丁目
|
13分
|
8.2万円
なし
|
なし / なし
20万円
|
ワンルーム
48.98m²
|
賃貸マンション
1985年3月(築40年10ヶ月)
|
デザイナーズ、角部屋、南向き、二人入居可、2面採光、閑静な住宅街、IT重説対応物件
|
|
間取図
|
外観
|
<
その他の画像
>
|
| 交通 | 山陽電鉄本線 山陽垂水駅 徒歩13分 |
|---|
| その他の交通 | 山陽電鉄本線 滝の茶屋駅 徒歩13分 JR山陽本線 垂水駅 徒歩13分 |
| 所在地 |
兵庫県神戸市垂水区大町1丁目
|
| 物件種目 |
賃貸マンション |
| 賃料 |
8.2万円 |
管理費等 |
なし |
| 敷金 / 保証金 |
なし / なし |
礼金 |
20万円 |
| 敷引 |
- |
保証金償却 |
- |
| その他一時金 |
なし |
保険等 |
要 2年 15,000円 |
| 維持費等 |
- |
クレジットカード決済 |
初期費用可 |
| 間取り |
ワンルーム(洋23) |
専有面積 |
48.98m² |
| 築年月 |
1985年3月(築40年10ヶ月)
|
階建 / 階 |
4階建 / 3階 |
| 建物構造 |
RC |
総戸数 |
- |
| 主要採光面 |
南 |
駐車場 |
無 |
| バイク置き場 |
有 無料 |
駐輪場 |
有 無料 |
| 建物名・部屋番号 |
クレドール垂水Ⅱ |
ペット |
-
|
| アピールポイント |
知らない人が来た時でも玄関を開けずに顔を確認できるモニター付きインターホンが付いております。収納はシューズボックス・クロゼットなど豊富なので、衣類や履き物の整理がしやすく便利です。浴室と切り離されているので湿気に悩まされることがなくなる独立洗面台を備えております。BS受信アンテナの設置工事の成された物件となっています。閑静な住宅地にあるマンションです。光回線を繋げましたのでパソコン作業がスムーズです。マンション内の不備や防犯面も、日々しっかりとサポート。角部屋は隣り合う住戸が片側にしかないため、騒音トラブル防止になります。こちらはマンションタイプになります。付近に駅が2駅あり、行き先に応じて使い分けができます。 |
| リフォーム履歴 |
- |
| リノベーション履歴 |
- |
| 備考 |
賃貸保証等:加入要(初回保証料:50% 更新料:無)
管理形態/管理員の勤務形態:-/巡回
IT重説対応物件、管理人巡回
入浴後でも温度や湿度に悩まされずに化粧やヘアメイクができる独立洗面台があります。収納はクロゼット・シューズボックスなどが備え付けられているので、衣類や日用品の収納に重宝します。モニターから顔が見えるTVインターホン付きです。魅力も多い賃貸物件はいかがでしょうか。閑静な住宅地にある物件です。こちらはマンションタイプになります。駐輪場付きの物件です。BS用の環境は整っているため、BS加入後すぐに視聴できます。ワンルームの物件なので、一人暮らしの方にもおすすめです。空気の入れ替えも簡単におこなえる通風良好の物件です。
|
| エネルギー消費性能 |
- |
| 断熱性能 |
- |
| 目安光熱費 |
- |
| バス・トイレ |
バス・トイレ別、洗面所独立、洗面所、トイレ |
| キッチン |
オープンキッチン、システムキッチン、3口以上コンロ、ガスコンロ可 |
| セキュリティー |
モニター付インターホン |
| 収納 |
収納スペース、クローゼット、シューズボックス |
| 設備・サービス |
都市ガス給湯、給湯、出窓、全居室フローリング、フローリング、都市ガス |
| TV・通信 |
インターネット対応、光ファイバー、ケーブルTV、BS端子 |
| その他 |
バイク置き場、バルコニー、駐輪場 |
| 契約期間 |
2年 |
現況 |
空家 |
| 条件等 |
- |
入居可能時期 |
即時 |
| 更新料 |
- |
物件番号 |
1179995410 |
| 情報公開日 |
2025年8月1日 |
次回更新予定日 |
2025年12月25日 |
| ケータイ用バーコード |
- スマートフォンでこの物件を見る
- スマートフォンからもこの物件をご覧になれます。
|
※「-」と表示されている項目については、情報提供会社にご確認ください。
| 周辺施設 |
東垂水保育園 |
| 距離 |
213m |
写真を見る |
| 周辺施設 |
こんどう歯科医院 |
| 距離 |
220m |
写真を見る |
| 周辺施設 |
ローソン 神戸大町二丁目店 |
| 距離 |
278m |
写真を見る |
| 周辺施設 |
神戸高丸郵便局 |
| 距離 |
462m |
写真を見る |
ここから簡単にお問い合わせをすることができます。
(SSLでの暗号化での送信を希望されるお客さまは
こちら
よりお問い合わせください)
お問い合わせを行う前に
「個人情報の取り扱いについて」を必ずお読みください。
「個人情報の取り扱いについて」に同意いただいた場合は「上記にご同意の上 確認画面へ進む」のボタンをクリックしてください。
個人情報の取り扱いについて
皆さまが送付された個人情報はアットホーム(株)のサーバを経由し、お問い合わせ先の不動産会社にメールまたはFAXにて転送されるためアットホーム(株)にも保管されます。アットホーム(株)で保管された個人情報の取り扱いについては、【こちら】をご覧ください。
また、本画面でご記入いただいた個人情報は、お問い合わせ先の不動産会社でも保管します。 お問い合わせ先の不動産会社が保管する個人情報の取り扱いについては、不動産会社に直接お問い合わせください。
兵庫県知事免許(1)第12247号 |
|---|
- 交通:
- JR東海道本線/摂津本山駅 徒歩1分
- 兵庫県神戸市東灘区岡本1丁目4-27 第二オギタビル3F
- TEL:
- 078-411-2118
- FAX:
- 078-411-2117
- 所属団体:
- (公社)全日本不動産協会会員(公社)近畿地区不動産公正取引協議会加盟
取引態様:仲介  - 50105458
|
- スマートフォンで
この不動産会社を見る

|
- 提携サイト等より掲載されている物件情報につきましては、不動産会社詳細情報にリンクされていないものがあります。
- 物件に関するお問合せは、物件詳細ページの「情報提供会社」に表示されている不動産会社へ直接お願いいたします。
- 間取図は、現況を優先させていただきます。
- 映像は物件の一部を撮影したものです。物件の契約にあたっての最終判断はご自身の判断に基づいて行ってください。
- 仲介手数料について

アットホームは物件情報の適正化に努めております。
内容に誤りがある場合にはこちらへご連絡ください。