岡山県岡山市北区学南町2丁目(法界院駅)の賃貸:物件詳細
交通 所在地 |
駅徒歩 |
賃料 管理費等 |
敷金/保証金 礼金 |
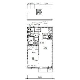
間取り 面積 |
物件種目 築年月 |
|
津山線/法界院
岡山県岡山市北区学南町2丁目
|
10分
|
6.8万円
3,500円
|
1ヶ月 / なし
1ヶ月
|
1LDK
41.40m²
|
賃貸アパート
2017年10月(築8年1ヶ月)
|
駐車場2台分、最上階、南向き、二人入居可、24時間換気システム、閑静な住宅街、管理人常駐、IT重説対応物件
|
|
間取図
|
外観
|
<
その他の画像
>
|
| 交通 | 津山線 法界院駅 徒歩10分 |
|---|
| その他の交通 | JR山陽本線 西川原駅 徒歩27分 JR山陽本線 岡山駅 徒歩30分 |
| 所在地 |
岡山県岡山市北区学南町2丁目
|
| 物件種目 |
賃貸アパート |
| 賃料 |
6.8万円 |
管理費等 |
3,500円 |
| 敷金 / 保証金 |
1ヶ月 / なし |
礼金 |
1ヶ月 |
| 敷引 |
- |
保証金償却 |
- |
| その他一時金 |
ハウスクリーニング:44,000円、鍵交換代等:13,200円~ |
保険等 |
要 |
| 維持費等 |
- |
| 間取り |
1LDK(洋室5・LDK13.2) |
専有面積 |
41.40m² |
| 築年月 |
2017年10月(築8年1ヶ月)
|
階建 / 階 |
2階建 / 2階 |
| 建物構造 |
軽量鉄骨造 |
総戸数 |
- |
| 主要採光面 |
南 |
駐車場 |
有 11,000円/月 |
| バイク置き場 |
無 |
駐輪場 |
有 |
| 建物名・部屋番号 |
|
ペット |
-
|
| アピールポイント |
岡山市に特化した【地域密着型】の仲介専門店です。オンライン内見も対応可能。ご安心してお任せください。 |
| リフォーム履歴 |
- |
| リノベーション履歴 |
- |
| 備考 |
賃貸保証等:加入要(初回契約時:50%、更新時:10,000円、更新保証料:1年毎)
管理形態/管理員の勤務形態:-/常駐
IT重説対応物件
|
| エネルギー消費性能 |
- |
| 断熱性能 |
- |
| 目安光熱費 |
- |
| バス・トイレ |
バス・トイレ別、オートバス、追焚機能、シャワー付洗面化粧台、洗面所独立、洗面所、洗面台、シャワー、温水洗浄便座、トイレ |
| キッチン |
カウンターキッチン、システムキッチン、3口以上コンロ、ガスコンロ付、グリル |
| セキュリティー |
オートロック、モニター付インターホン、カードキー、防犯カメラ、火災警報器(報知機) |
| 収納 |
ウォークインクローゼット、収納スペース、シューズボックス |
| 設備・サービス |
室内洗濯機置場、洗濯機置場、給湯、全居室フローリング、フローリング、室内物干し、プロパンガス、エアコン、照明器具、複層ガラス |
| TV・通信 |
インターネット使用料無料、光ファイバー、BS端子 |
| その他 |
宅配BOX、バルコニー、駐輪場 |
| 契約期間 |
2年 |
現況 |
空家 |
| 条件等 |
- |
入居可能時期 |
即時 |
| 仲介手数料 |
1ヶ月 |
|
|
| 更新料 |
- |
物件番号 |
1180313614 |
| 情報公開日 |
2025年10月7日 |
次回更新予定日 |
2025年10月30日 |
| ケータイ用バーコード |
- スマートフォンでこの物件を見る
- スマートフォンからもこの物件をご覧になれます。
|
※「-」と表示されている項目については、情報提供会社にご確認ください。
| 周辺施設 |
ラ・ムータウン岡山中央店 |
| 距離 |
910m |
写真を見る |
| 周辺施設 |
フレスタモール カジル津島 |
| 距離 |
1062m |
写真を見る |
| 周辺施設 |
山陽マルナカ中井町店 |
| 距離 |
552m |
写真を見る |
| 周辺施設 |
国立岡山大学 |
| 距離 |
532m |
写真を見る |
| 周辺施設 |
天満屋ハピータウン岡北店 |
| 距離 |
710m |
写真を見る |
| 周辺施設 |
セブンイレブン岡山大学前店 |
| 距離 |
358m |
写真を見る |
| 周辺施設 |
くすりのラブ岡北店 |
| 距離 |
440m |
写真を見る |
| 周辺施設 |
私立岡山理科大学 |
| 距離 |
1422m |
写真を見る |
ここから簡単にお問い合わせをすることができます。
(SSLでの暗号化での送信を希望されるお客さまは
こちら
よりお問い合わせください)
お問い合わせを行う前に
「個人情報の取り扱いについて」を必ずお読みください。
「個人情報の取り扱いについて」に同意いただいた場合は「上記にご同意の上 確認画面へ進む」のボタンをクリックしてください。
個人情報の取り扱いについて
皆さまが送付された個人情報はアットホーム(株)のサーバを経由し、お問い合わせ先の不動産会社にメールまたはFAXにて転送されるためアットホーム(株)にも保管されます。アットホーム(株)で保管された個人情報の取り扱いについては、【こちら】をご覧ください。
また、本画面でご記入いただいた個人情報は、お問い合わせ先の不動産会社でも保管します。 お問い合わせ先の不動産会社が保管する個人情報の取り扱いについては、不動産会社に直接お問い合わせください。
岡山県知事免許(2)第5696号 |
|---|
- 交通:
- JR山陽本線/岡山駅 徒歩12分
- 岡山県岡山市北区下石井2丁目3-8 商工ビル401
- TEL:
- 086-206-5300
- FAX:
- 086-206-5305
- 所属団体:
- (公社)岡山県宅地建物取引業協会会員中国地区不動産公正取引協議会加盟
取引態様:仲介  - 50111574
|
- スマートフォンで
この不動産会社を見る

|
- 提携サイト等より掲載されている物件情報につきましては、不動産会社詳細情報にリンクされていないものがあります。
- 物件に関するお問合せは、物件詳細ページの「情報提供会社」に表示されている不動産会社へ直接お願いいたします。
- 間取図は、現況を優先させていただきます。
- 映像は物件の一部を撮影したものです。物件の契約にあたっての最終判断はご自身の判断に基づいて行ってください。
- 仲介手数料について

アットホームは物件情報の適正化に努めております。
内容に誤りがある場合にはこちらへご連絡ください。