千葉県千葉市中央区中央2丁目(千葉駅)の賃貸:物件詳細
交通 所在地 |
駅徒歩 |
賃料 管理費等 |
敷金/保証金 礼金 |
間取り 面積 |
物件種目 築年月 |
|
JR総武本線/千葉
千葉県千葉市中央区中央2丁目
|
11分
|
7.6万円
4,000円
|
7.6万円 / なし
7.6万円
|
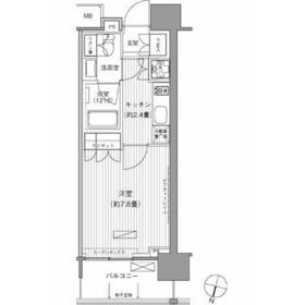
1K
26.32m²
|
賃貸マンション
2014年3月(築11年11ヶ月)
|
|
間取図
|
外観
|
<
その他の画像
>
|
| 交通 | JR総武本線 千葉駅 徒歩11分 |
|---|
| その他の交通 | 京成千葉線 千葉中央駅 徒歩8分 JR総武線 千葉駅 徒歩15分 |
| 所在地 |
千葉県千葉市中央区中央2丁目
|
| 物件種目 |
賃貸マンション |
| 賃料 |
7.6万円 |
管理費等 |
4,000円 |
| 敷金 / 保証金 |
7.6万円 / なし |
礼金 |
7.6万円 |
| 敷引 |
- |
保証金償却 |
- |
| その他一時金 |
なし、鍵交換代等:27,500円~ |
保険等 |
要 2年 20,000円 |
| 維持費等 |
- |
| 間取り |
1K(洋室7.8帖) |
専有面積 |
26.32m² |
| 築年月 |
2014年3月(築11年11ヶ月)
|
階建 / 階 |
14階建 / 2階 |
| 建物構造 |
RC |
総戸数 |
142戸 |
| 主要採光面 |
北 |
駐車場 |
有 18,700円/月 |
| バイク置き場 |
- |
駐輪場 |
- |
| 建物名・部屋番号 |
|
ペット |
-
|
| アピールポイント |
創業45周年、首都圏で直営130店舗以上を展開するタウングループへお部屋探しをお任せ下さい♪グループ会社に引越会社もございますのでお部屋探しからお引越し会社の選定までワンストップで対応させて頂きます♪ |
| リフォーム履歴 |
- |
| リノベーション履歴 |
- |
| 備考 |
賃貸保証等:加入要(保証人代行会社 SBIギャランティ賃貸保証料 40%保証人代行詳細 初回保証料月額総支払額の40%年間保証料8,000円)
管理形態/管理員の勤務形態:-/-
駐車場礼金:1.00ヶ月 駐車場敷金:1.00ヶ月
当社では、初期費用のお支払いにクレジット決済を導入しております!首都圏直営130店舗以上を展開する独自のネットワークで、様々な条件でのお部屋探しに対応させて頂きます。契約時ご来店頂かなくても契約可能!当社はIT重説対応店舗です。一緒に楽しくお部屋探しをしましょう!
|
| エネルギー消費性能 |
- |
| 断熱性能 |
- |
| 目安光熱費 |
- |
| バス・トイレ |
バス・トイレ別、浴室乾燥機、洗面所独立、温水洗浄便座 |
| キッチン |
システムキッチン、2口コンロ |
| セキュリティー |
オートロック、モニター付インターホン、防犯カメラ |
| 収納 |
- |
| 設備・サービス |
室内洗濯機置場、給湯、フローリング、エアコン |
| TV・通信 |
CS、BS端子 |
| その他 |
宅配BOX、バルコニー |
| 契約期間 |
2年 |
現況 |
空家 |
| 条件等 |
- |
入居可能時期 |
2026年1月上旬予定 |
| 仲介手数料 |
1.1ヶ月 |
|
|
| 更新料 |
76,000円 |
物件番号 |
1180845318 |
| 情報公開日 |
2025年12月26日 |
次回更新予定日 |
2026年1月9日 |
| ケータイ用バーコード |
- スマートフォンでこの物件を見る
- スマートフォンからもこの物件をご覧になれます。
|
※「-」と表示されている項目については、情報提供会社にご確認ください。
| 周辺施設 |
セブンイレブン |
| 距離 |
10m |
写真を見る |
| 周辺施設 |
千葉大学付属病院 |
| 距離 |
1900m |
写真を見る |
| 周辺施設 |
くすりの福太郎 |
| 距離 |
550m |
写真を見る |
| 周辺施設 |
千葉中央ショッピングセンターミーオ |
| 距離 |
750m |
写真を見る |
| 周辺施設 |
グルメシティ千葉中央店 |
| 距離 |
350m |
写真を見る |
| 周辺施設 |
アコレ千葉C-one店 |
| 距離 |
750m |
写真を見る |
| 周辺施設 |
ツルハドラッグ |
| 距離 |
250m |
写真を見る |
ここから簡単にお問い合わせをすることができます。
(SSLでの暗号化での送信を希望されるお客さまは
こちら
よりお問い合わせください)
お問い合わせを行う前に
「個人情報の取り扱いについて」を必ずお読みください。
「個人情報の取り扱いについて」に同意いただいた場合は「上記にご同意の上 確認画面へ進む」のボタンをクリックしてください。
個人情報の取り扱いについて
皆さまが送付された個人情報はアットホーム(株)のサーバを経由し、お問い合わせ先の不動産会社にメールまたはFAXにて転送されるためアットホーム(株)にも保管されます。アットホーム(株)で保管された個人情報の取り扱いについては、【こちら】をご覧ください。
また、本画面でご記入いただいた個人情報は、お問い合わせ先の不動産会社でも保管します。 お問い合わせ先の不動産会社が保管する個人情報の取り扱いについては、不動産会社に直接お問い合わせください。
国土交通大臣免許(1)第9927号 |
|---|
- 交通:
- JR総武線/市川駅 徒歩1分
- 千葉県市川市市川1丁目8-13 市川ファイブビル2F
- TEL:
- 047-326-1811
- FAX:
- 047-326-1812
- 所属団体:
- 所属団体未加入会員
取引態様:仲介  - 00271129
|
- スマートフォンで
この不動産会社を見る

|
- 提携サイト等より掲載されている物件情報につきましては、不動産会社詳細情報にリンクされていないものがあります。
- 物件に関するお問合せは、物件詳細ページの「情報提供会社」に表示されている不動産会社へ直接お願いいたします。
- 間取図は、現況を優先させていただきます。
- 映像は物件の一部を撮影したものです。物件の契約にあたっての最終判断はご自身の判断に基づいて行ってください。
- 仲介手数料について

アットホームは物件情報の適正化に努めております。
内容に誤りがある場合にはこちらへご連絡ください。