不動産 賃貸 マンション等の住宅情報:埼玉住まい情報


東京都江東区木場2丁目(木場駅)の賃貸:物件詳細

  • 物件詳細
  • 情報の見方
  • 印刷用画面
交通
所在地
駅徒歩 賃料
管理費等
敷金/保証金
礼金
間取り
面積
物件種目
築年月

東京メトロ東西線/木場 新着

東京都江東区木場2丁目

3分

12.1万円

20,000円

なし / なし

なし

1K

25.73m²

賃貸マンション

2019年7月(築6年4ヶ月)

おすすめPOINTペット相談、分譲タイプ、常時ゴミ出し可能、外観タイル張り、IT重説対応物件、保証人不要

おすすめコメント  スタッフ: 嶋田

お問い合わせはアセットナビへ!0120-94-5511【LINE相談可】こちらの物件はオンライン対応可能です。是非お問い合わせください。

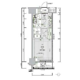
間取図

間取図

間取図

外観

外観

外観・土地

<
その他の画像
  • トイレ
  • キッチン
  • リビング
  • バス/シャワー
  • 室内
  • 玄関
  • バルコニー
  • 洗面
  • その他
  • 収納
  • エントランス
  • 共有部分
  • 共有部分
  • その他
  • その他
  • その他
  • その他
  • その他
  • その他
>
    • とりあえず保存
    • お問い合わせ
    交通

    東京メトロ東西線 木場駅 徒歩3分

    その他の交通

    東京メトロ東西線 門前仲町駅 徒歩8分

    JR京葉線 越中島駅 徒歩18分

    所在地 東京都江東区木場2丁目
    物件種目 賃貸マンション
    賃料 12.1万円 管理費等 20,000円
    敷金 / 保証金 なし / なし 礼金 なし
    敷引 保証金償却
    その他一時金 鍵交換費用:29,700円、AMLクラブサポート:16,500円、退去時清掃費用:49,500円、退去時エアコン清掃費用:16,500円 保険等 要 2年 16,000円
    維持費等 クレジットカード決済 初期費用可
    間取り 1K(洋室7.6畳) 専有面積 25.73m²
    築年月 2019年7月(築6年4ヶ月) 階建 / 階 12階建 / 9階
    建物構造 RC 総戸数
    主要採光面 西 駐車場
    バイク置き場 駐輪場
    建物名・部屋番号 メインステージ木場 ペット 相談
    アピールポイント 人気の分譲賃貸マンションで設備が充実しております。オートロック付きでセキュリティも安心です。不在時でも受け取り可能な宅配ボックスあり。浴室乾燥機つきで雨の日でも洗濯が可能です。
    リフォーム履歴
    リノベーション履歴
    備考
    賃貸保証等:加入要(賃料総額の50%~)
    管理形態/管理員の勤務形態:-/-
    IT重説対応物件
    分譲賃貸マンション
    オートロック/宅配ボックス/浴室乾燥機/独立洗面台/周辺施設充実
    エネルギー消費性能
    断熱性能
    目安光熱費
    バス・トイレ バス・トイレ別、浴室乾燥機、シャワー付洗面化粧台、洗面所独立、洗面台、温水洗浄便座、トイレ
    キッチン システムキッチン、2口コンロ、ガスコンロ付
    セキュリティー モニター付オートロック、オートロック、モニター付インターホン、ディンプルキー、ダブルロックドア、防犯カメラ
    収納 クローゼット、シューズボックス
    設備・サービス 室内洗濯機置場、給湯、フローリング、都市ガス、エアコン
    TV・通信 インターネット対応、インターネット使用料無料、光ファイバー、CS、BS端子、マルチメディアコンセント
    その他 宅配BOX、バルコニー、駐輪場、エレベーター
    契約期間 2年 現況 居住中
    条件等 入居可能時期 2026年1月中旬予定
    更新料 物件番号 1180857311
    情報公開日 2025年10月25日 次回更新予定日 2025年11月8日
    ケータイ用バーコード

    QRコード

    スマートフォンでこの物件を見る
    スマートフォンからもこの物件をご覧になれます。
    ※「-」と表示されている項目については、情報提供会社にご確認ください。

    この物件の周辺情報

    周辺施設 まいばすけっと江東富岡1丁目店
    距離 279m
    周辺施設 まいばすけっと富岡八幡店
    距離 398m
    周辺施設 ファミリーマート木場二丁目店
    距離 261m
    周辺施設 セブンイレブン牡丹店
    距離 393m
    周辺施設 セブンイレブン江東門前仲町店
    距離 880m
    周辺施設 スギ薬局江東富岡店
    距離 503m

    クイックお問い合わせ

    ここから簡単にお問い合わせをすることができます。
    (SSLでの暗号化での送信を希望されるお客さまは こちら よりお問い合わせください)

    お問い合わせ内容(必須)
    お名前(必須) 姓  名 
    メールアドレス(必須)
    ※携帯電話のメールアドレスをご入力される方はこちらをご確認ください
    電話番号(必須)
    - -

    ※入力いただいた電話番号へSMSまたは音声でパスワードをご連絡します。

    携帯電話の番号をご入力の方へ

    携帯電話の番号をご入力の方へ
    確認画面にて送信ボタンをクリックするとSMSが携帯電話に届きます。
    そのSMSに記載のパスワード(認証番号)を入力し、お問い合わせを完了してください。
    尚、SMSの送信者番号は 0005 202 760 となります。
    これはアットホームの固定番号です。

    備考欄 希望条件、物件案内希望日、質問などがございましたらご記入ください。
    お問い合わせを行う前に「個人情報の取り扱いについて」を必ずお読みください。
    「個人情報の取り扱いについて」に同意いただいた場合は「上記にご同意の上 確認画面へ進む」のボタンをクリックしてください。

    個人情報の取り扱いについて

    皆さまが送付された個人情報はアットホーム(株)のサーバを経由し、お問い合わせ先の不動産会社にメールまたはFAXにて転送されるためアットホーム(株)にも保管されます。アットホーム(株)で保管された個人情報の取り扱いについては、【こちら】をご覧ください。
    また、本画面でご記入いただいた個人情報は、お問い合わせ先の不動産会社でも保管します。 お問い合わせ先の不動産会社が保管する個人情報の取り扱いについては、不動産会社に直接お問い合わせください。

    情報提供会社

    情報提供会社

    (株)アセットナビ

    東京都知事免許(4)第86028号

    交通:
    東京メトロ丸ノ内線/西新宿駅 徒歩1分
    東京都新宿区西新宿8丁目1-2 PMO西新宿2F
    TEL:
    03-5348-3311
    FAX:
    03-5348-3322
    所属団体:
    (公社)全日本不動産協会会員
    (公社)首都圏不動産公正取引協議会加盟

    取引態様:仲介

    • 会社情報
    • 00996300
    スマートフォンで
    この不動産会社を見る
    QRコード
    • とりあえず保存
    • お問い合わせ
    • 提携サイト等より掲載されている物件情報につきましては、不動産会社詳細情報にリンクされていないものがあります。
    • 物件に関するお問合せは、物件詳細ページの「情報提供会社」に表示されている不動産会社へ直接お願いいたします。
    • 間取図は、現況を優先させていただきます。
    • 映像は物件の一部を撮影したものです。物件の契約にあたっての最終判断はご自身の判断に基づいて行ってください。
    • 仲介手数料について仲介手数料

    アットホームは物件情報の適正化に努めております。 内容に誤りがある場合にはこちらへご連絡ください。

    【埼玉住まい情報】では、日本全国の物件から賃貸マンションや賃貸アパート・賃貸一戸建て等の賃貸住宅情報、新築マンション・分譲マンションや中古マンション等の売買マンション情報、新築一戸建てや中古一戸建てなどの戸建住宅、 土地など、総合的な不動産住宅情報検索サービスを提供致します。
    【埼玉住まい情報】から、選りすぐりの不動産物件を探してみましょう。

    【免責事項】
    このコーナーの運営はアットホーム株式会社(https://www.athome.co.jp/)が行っています。
    このコーナーに掲載している物件情報は、「アットホーム不動産情報ネットワーク」に加盟する不動産会社等(情報提供元)から提供されています。信頼性の高い情報提供が行えるよう、最大限の努力をしておりますが、その内容を保証するものではありません。 利用者のみなさまと各情報提供元との取引に起因する損害および情報が掲載されたことに起因する損害等については、株式会社イーシティ埼玉、およびアットホームは一切責任を負いません。
    各物件情報の内容や画像等はすべて現況を優先させていただきます。
    お取引等(お取引の準備、資金調達等を含みます)の際には、内容や契約条件等について、各情報提供元より十分な説明を受け、ご自身でご確認の上、判断してください。
    このコーナーへの物件情報のご掲載、その他不動産業務ソリューション等についての不動産会社様のお問合せはこちらからお願いいたします。

    物件画像: