福岡県福岡市博多区比恵町(東比恵駅)の賃貸:物件詳細
交通 所在地 |
駅徒歩 |
賃料 管理費等 |
敷金/保証金 礼金 |
間取り 面積 |
物件種目 築年月 |
|
地下鉄空港線/東比恵
福岡県福岡市博多区比恵町
|
10分
|
7.9万円
3,000円
|
1ヶ月 / なし
2ヶ月
|
1LDK
28.78m²
|
賃貸マンション
2016年1月(築9年10ヶ月)
|
ペット相談、デザイナーズ、分譲タイプ、最上階、2面採光、24時間換気システム、閑静な住宅街、外観タイル張り、IT重説対応物件
|
|
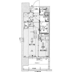
間取図
間取り図面です。
|
外観
外観写真です。
|
<
その他の画像
>
|
| 交通 | 地下鉄空港線 東比恵駅 徒歩10分 |
|---|
| その他の交通 | 地下鉄空港線 博多駅 徒歩10分 地下鉄空港線 祇園駅 徒歩23分 |
| 所在地 |
福岡県福岡市博多区比恵町
|
| 物件種目 |
賃貸マンション |
| 賃料 |
7.9万円 |
管理費等 |
3,000円 |
| 敷金 / 保証金 |
1ヶ月 / なし |
礼金 |
2ヶ月 |
| 敷引 |
- |
保証金償却 |
- |
| その他一時金 |
鍵交換代:33,000円、消毒料:13,200円 |
保険等 |
要 |
| 維持費等 |
町費:300円/月、安心サポート:990円/月 |
クレジットカード決済 |
初期費用可 |
| 間取り |
1LDK(洋室2.6畳/LDK9.1畳) |
専有面積 |
28.78m² |
| 築年月 |
2016年1月(築9年10ヶ月)
|
階建 / 階 |
13階建 / 13階 |
| 建物構造 |
RC |
総戸数 |
- |
| 主要採光面 |
北西 |
駐車場 |
近有 22,000円/月 |
| バイク置き場 |
有 |
駐輪場 |
有 |
| 建物名・部屋番号 |
グランフォーレ博多駅東プレミア |
ペット |
相談 |
| アピールポイント |
ネコ・小型犬飼育可能!ネット無料!築浅!博多駅徒歩圏内!バイク置き場完備!デザイナーズ分譲賃貸マンション。システムキッチン、オートロック完備。初期費用分割やクレジット決済相談可能です。福岡市博多区・市内近郊のお部屋探しはぜひお任せください! |
| リフォーム履歴 |
- |
| リノベーション履歴 |
- |
| 備考 |
賃貸保証等:加入要(お申込内容により異なります。)
管理形態/管理員の勤務形態:-/-
IT重説対応物件
ネコ・小型犬飼育可能!ネット無料!築浅!博多駅徒歩圏内!バイク置き場完備!デザイナーズ分譲賃貸マンション。システムキッチン、オートロック完備。初期費用分割やクレジット決済相談可能です。福岡市博多区・市内近郊のお部屋探しはぜひお任せください!
ネコ・小型犬飼育可能!ネット無料!築浅!博多駅徒歩圏内!バイク置き場完備!デザイナーズ分譲賃貸マンション。システムキッチン、オートロック完備。初期費用分割やクレジット決済相談可能です。福岡市博多区・市内近郊のお部屋探しはぜひお任せください!
|
| エネルギー消費性能 |
- |
| 断熱性能 |
- |
| 目安光熱費 |
- |
| バス・トイレ |
バス・トイレ別、浴室乾燥機、シャワー付洗面化粧台、洗面所独立、洗面台、シャワー、温水洗浄便座、トイレ |
| キッチン |
カウンターキッチン、システムキッチン、2口コンロ、ガスコンロ付 |
| セキュリティー |
モニター付オートロック、オートロック、モニター付インターホン、防犯カメラ |
| 収納 |
ウォークインクローゼット、収納スペース、クローゼット、シューズボックス |
| 設備・サービス |
室内洗濯機置場、洗濯機置場、給湯、全居室フローリング、フローリング、プロパンガス、エアコン、暖房、冷房 |
| TV・通信 |
インターネット対応、インターネット使用料無料、光ファイバー、ケーブルTV、CS、BS端子 |
| その他 |
宅配BOX、バイク置き場、バルコニー、駐輪場、エレベーター |
| 契約期間 |
2年 |
現況 |
居住中 |
| 条件等 |
- |
入居可能時期 |
相談 |
| 仲介手数料 |
1.1ヶ月 |
|
|
| 更新料 |
- |
物件番号 |
1180879211 |
| 情報公開日 |
2025年10月25日 |
次回更新予定日 |
2025年11月8日 |
| ケータイ用バーコード |
- スマートフォンでこの物件を見る
- スマートフォンからもこの物件をご覧になれます。
|
※「-」と表示されている項目については、情報提供会社にご確認ください。
| 周辺施設 |
サニー駅南店 |
| 距離 |
577m |
写真を見る |
| 周辺施設 |
ローソン 比恵町店 |
| 距離 |
303m |
写真を見る |
| 周辺施設 |
JR博多シティ アミュプラザ博多 |
| 距離 |
1317m |
写真を見る |
ここから簡単にお問い合わせをすることができます。
(SSLでの暗号化での送信を希望されるお客さまは
こちら
よりお問い合わせください)
お問い合わせを行う前に
「個人情報の取り扱いについて」を必ずお読みください。
「個人情報の取り扱いについて」に同意いただいた場合は「上記にご同意の上 確認画面へ進む」のボタンをクリックしてください。
個人情報の取り扱いについて
皆さまが送付された個人情報はアットホーム(株)のサーバを経由し、お問い合わせ先の不動産会社にメールまたはFAXにて転送されるためアットホーム(株)にも保管されます。アットホーム(株)で保管された個人情報の取り扱いについては、【こちら】をご覧ください。
また、本画面でご記入いただいた個人情報は、お問い合わせ先の不動産会社でも保管します。 お問い合わせ先の不動産会社が保管する個人情報の取り扱いについては、不動産会社に直接お問い合わせください。
国土交通大臣免許(3)第8479号 |
|---|
- 交通:
- JR鹿児島本線/博多駅 徒歩3分
- 福岡県福岡市博多区博多駅東1丁目9-1
- TEL:
- 0120-170-570
- FAX:
- 092-432-0712
- 所属団体:
- (公社)全日本不動産協会会員(一社)九州不動産公正取引協議会加盟
取引態様:仲介  - 80004843
|
- スマートフォンで
この不動産会社を見る

|
- 提携サイト等より掲載されている物件情報につきましては、不動産会社詳細情報にリンクされていないものがあります。
- 物件に関するお問合せは、物件詳細ページの「情報提供会社」に表示されている不動産会社へ直接お願いいたします。
- 間取図は、現況を優先させていただきます。
- 映像は物件の一部を撮影したものです。物件の契約にあたっての最終判断はご自身の判断に基づいて行ってください。
- 仲介手数料について

アットホームは物件情報の適正化に努めております。
内容に誤りがある場合にはこちらへご連絡ください。