愛知県名古屋市中区富士見町(上前津駅)の賃貸:物件詳細
交通 所在地 |
駅徒歩 |
賃料 管理費等 |
敷金/保証金 礼金 |
間取り 面積 |
物件種目 築年月 |
|
名古屋市鶴舞線/上前津
愛知県名古屋市中区富士見町
|
5分
|
7.45万円
5,340円
|
なし / なし
なし
|
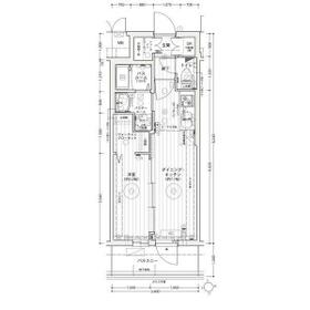
1DK
28.01m²
|
賃貸マンション
2026年1月
|
ペット相談、デザイナーズ、二人入居可、IT重説対応物件、保証人不要
|
|
間取図
|
外観
|
<
その他の画像
>
|
| 交通 | 名古屋市鶴舞線 上前津駅 徒歩5分 |
|---|
| その他の交通 | 名古屋市名城線 東別院駅 徒歩4分 名古屋市名城線 金山駅 徒歩15分 |
| 所在地 |
愛知県名古屋市中区富士見町
|
| 物件種目 |
賃貸マンション |
| 賃料 |
7.45万円 |
管理費等 |
5,340円 |
| 敷金 / 保証金 |
なし / なし |
礼金 |
なし |
| 敷引 |
- |
保証金償却 |
- |
| その他一時金 |
エステムクラブ入会金:5,500円 |
保険等 |
要 |
| 維持費等 |
エステムクラブ:990円/月 |
クレジットカード決済 |
初期費用可 |
| 間取り |
1DK |
専有面積 |
28.01m² |
| 築年月 |
2026年1月
|
階建 / 階 |
15階建 / 2階 |
| 建物構造 |
RC |
総戸数 |
- |
| 主要採光面 |
北 |
駐車場 |
有 20,000円/月 |
| バイク置き場 |
- |
駐輪場 |
有 |
| 建物名・部屋番号 |
エステムコート名古屋上前津 206 |
ペット |
相談 |
| リフォーム履歴 |
- |
| リノベーション履歴 |
- |
| 備考 |
賃貸保証等:加入要(初回50%)
管理形態/管理員の勤務形態:-/巡回
IT重説対応物件、管理人巡回
★コンパクトながら使いやすい間取りです★
2口コンロ,3点給湯,BS,CS,TVインターホン,ウォークインクローゼット,エアコン,ガスキッチン,ガスコンロ設置済,ガス給湯,クローゼット,システムキッチン,シャワー,シャワー付洗面台,シューズボックス,トイレ有,ネット使用料不要,バス・トイレ別,バス有,フローリング,温水洗浄便座,給湯,光ファイバー,高速ネット対応,室内洗濯機置場,収納有,洗面化粧台,洗面所にドア,洗面所独立,洗面台,全居室フローリング,脱衣所,暖房,暖房便座,浴室乾燥,浴室暖房,冷房,エレベーター,宅配BOX,敷地内ゴミ
|
| エネルギー消費性能 |
- |
| 断熱性能 |
- |
| 目安光熱費 |
- |
| バス・トイレ |
バス・トイレ別、浴室暖房、浴室乾燥機、シャワー付洗面化粧台、洗面所独立、洗面台、シャワー、温水洗浄便座、トイレ |
| キッチン |
システムキッチン、2口コンロ、ガスコンロ付 |
| セキュリティー |
モニター付オートロック、オートロック、モニター付インターホン、防犯カメラ |
| 収納 |
ウォークインクローゼット、収納スペース、クローゼット、シューズボックス |
| 設備・サービス |
室内洗濯機置場、給湯、全居室フローリング、フローリング、都市ガス、エアコン、暖房、冷房 |
| TV・通信 |
インターネット対応、インターネット使用料無料、光ファイバー、CS、BS端子 |
| その他 |
宅配BOX、バルコニー、駐輪場、エレベーター |
| 契約期間 |
1年 |
現況 |
- |
| 条件等 |
- |
入居可能時期 |
2026年2月上旬予定 |
| 更新料 |
- |
物件番号 |
1180940811 |
| 情報公開日 |
2026年1月29日 |
次回更新予定日 |
2026年2月12日 |
| ケータイ用バーコード |
- スマートフォンでこの物件を見る
- スマートフォンからもこの物件をご覧になれます。
|
※「-」と表示されている項目については、情報提供会社にご確認ください。
| 周辺施設 |
ファミリーマート たちばな店 |
| 距離 |
142m |
写真を見る |
| 周辺施設 |
スギ薬局 上前津店 |
| 距離 |
216m |
写真を見る |
| 周辺施設 |
サンエース 記念橋店 |
| 距離 |
523m |
写真を見る |
| 周辺施設 |
ドン・キホーテ大須店 |
| 距離 |
907m |
写真を見る |
| 周辺施設 |
名古屋七本松郵便局 |
| 距離 |
322m |
写真を見る |
| 周辺施設 |
上前津メディカルクリニック |
| 距離 |
562m |
写真を見る |
ここから簡単にお問い合わせをすることができます。
(SSLでの暗号化での送信を希望されるお客さまは
こちら
よりお問い合わせください)
お問い合わせを行う前に
「個人情報の取り扱いについて」を必ずお読みください。
「個人情報の取り扱いについて」に同意いただいた場合は「上記にご同意の上 確認画面へ進む」のボタンをクリックしてください。
個人情報の取り扱いについて
皆さまが送付された個人情報はアットホーム(株)のサーバを経由し、お問い合わせ先の不動産会社にメールまたはFAXにて転送されるためアットホーム(株)にも保管されます。アットホーム(株)で保管された個人情報の取り扱いについては、【こちら】をご覧ください。
また、本画面でご記入いただいた個人情報は、お問い合わせ先の不動産会社でも保管します。 お問い合わせ先の不動産会社が保管する個人情報の取り扱いについては、不動産会社に直接お問い合わせください。
愛知県知事免許(3)第22094号 |
|---|
- 交通:
- 名古屋市名城線/矢場町駅 徒歩2分
- 愛知県名古屋市中区栄3丁目32-33 トクサンビル1F
- TEL:
- 052-262-2200
- FAX:
- 052-262-2218
- 所属団体:
- (公社)愛知県宅地建物取引業協会会員東海不動産公正取引協議会加盟
取引態様:仲介  - 40405097
|
- スマートフォンで
この不動産会社を見る

|
- 提携サイト等より掲載されている物件情報につきましては、不動産会社詳細情報にリンクされていないものがあります。
- 物件に関するお問合せは、物件詳細ページの「情報提供会社」に表示されている不動産会社へ直接お願いいたします。
- 間取図は、現況を優先させていただきます。
- 映像は物件の一部を撮影したものです。物件の契約にあたっての最終判断はご自身の判断に基づいて行ってください。
- 仲介手数料について

アットホームは物件情報の適正化に努めております。
内容に誤りがある場合にはこちらへご連絡ください。