岡山県岡山市中区森下町(西川原駅)の賃貸:物件詳細
交通 所在地 |
駅徒歩 |
賃料 管理費等 |
敷金/保証金 礼金 |
間取り 面積 |
物件種目 築年月 |
JR山陽本線/西川原
岡山県岡山市中区森下町
|
24分
|
9.4万円
4,000円
|
2ヶ月 / なし
2ヶ月
|
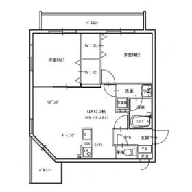
2LDK
55.48m²
|
賃貸マンション
2020年2月(築5年9ヶ月)
|
常時ゴミ出し可能、角部屋、最上階、二人入居可、3面採光、24時間換気システム、閑静な住宅街、IT重説対応物件
|
間取図
|
外観
|
<
その他の画像
>
|
交通 | JR山陽本線 西川原駅 徒歩24分 |
---|
その他の交通 | 岡山電軌東山本線 中納言駅 徒歩12分 岡山電軌東山本線 東山・おかでんミュージアム駅 徒歩13分 |
所在地 |
岡山県岡山市中区森下町
|
物件種目 |
賃貸マンション |
賃料 |
9.4万円 |
管理費等 |
4,000円 |
敷金 / 保証金 |
2ヶ月 / なし |
礼金 |
2ヶ月 |
敷引 |
- |
保証金償却 |
- |
その他一時金 |
なし、鍵交換代等:27,500円~ |
保険等 |
要 2年 22,000円 |
維持費等 |
- |
間取り |
2LDK(洋室6・洋室6・LDK13.2) |
専有面積 |
55.48m² |
築年月 |
2020年2月(築5年9ヶ月)
|
階建 / 階 |
5階建 / 5階 |
建物構造 |
RC |
総戸数 |
- |
主要採光面 |
北 |
駐車場 |
近有 7,700円/月 |
バイク置き場 |
無 |
駐輪場 |
有 |
建物名・部屋番号 |
|
ペット |
-
|
アピールポイント |
岡山市に特化した【地域密着型】の仲介専門店です。オンライン内見も対応可能。ご安心してお任せください。 |
リフォーム履歴 |
- |
リノベーション履歴 |
- |
備考 |
賃貸保証等:加入要(初回契約時:50%、更新時:10,000円)
管理形態/管理員の勤務形態:-/巡回
IT重説対応物件、管理人巡回
|
エネルギー消費性能 |
- |
断熱性能 |
- |
目安光熱費 |
- |
バス・トイレ |
バス・トイレ別、浴室乾燥機、オートバス、追焚機能、シャワー付洗面化粧台、洗面所独立、洗面所、洗面台、シャワー、温水洗浄便座、トイレ |
キッチン |
カウンターキッチン、システムキッチン、3口以上コンロ、ガスコンロ付、グリル |
セキュリティー |
オートロック、モニター付インターホン、防犯カメラ、火災警報器(報知機) |
収納 |
ウォークインクローゼット、収納スペース、シューズボックス |
設備・サービス |
全居室エアコン、エアコン2台以上、室内洗濯機置場、洗濯機置場、給湯、全居室フローリング、フローリング、エアコン、照明器具 |
TV・通信 |
光ファイバー、BS端子 |
その他 |
宅配BOX、二面バルコニー、バルコニー、駐輪場、エレベーター |
契約期間 |
2年 |
現況 |
居住中 |
条件等 |
- |
入居可能時期 |
2025年11月中旬予定 |
仲介手数料 |
1ヶ月 |
|
|
更新料 |
- |
物件番号 |
1181181014 |
情報公開日 |
2025年10月11日 |
次回更新予定日 |
2025年10月30日 |
ケータイ用バーコード |
- スマートフォンでこの物件を見る
- スマートフォンからもこの物件をご覧になれます。
|
※「-」と表示されている項目については、情報提供会社にご確認ください。
周辺施設 |
岡山市立三勲小学校 |
距離 |
519m |
写真を見る |
周辺施設 |
岡山シンフォニービル |
距離 |
1590m |
写真を見る |
周辺施設 |
天満屋ハピータウン原尾島店 |
距離 |
1113m |
写真を見る |
周辺施設 |
フレスタ門田屋敷店 |
距離 |
1502m |
写真を見る |
周辺施設 |
ファミリーマート岡山国富店 |
距離 |
552m |
写真を見る |
周辺施設 |
スーパードラッグひまわり浜店 |
距離 |
983m |
写真を見る |
周辺施設 |
私立就実大学 |
距離 |
1902m |
写真を見る |
周辺施設 |
岡山市立三勲幼稚園 |
距離 |
319m |
写真を見る |
ここから簡単にお問い合わせをすることができます。
(SSLでの暗号化での送信を希望されるお客さまは
こちら
よりお問い合わせください)
お問い合わせを行う前に
「個人情報の取り扱いについて」を必ずお読みください。
「個人情報の取り扱いについて」に同意いただいた場合は「上記にご同意の上 確認画面へ進む」のボタンをクリックしてください。
個人情報の取り扱いについて
皆さまが送付された個人情報はアットホーム(株)のサーバを経由し、お問い合わせ先の不動産会社にメールまたはFAXにて転送されるためアットホーム(株)にも保管されます。アットホーム(株)で保管された個人情報の取り扱いについては、【こちら】をご覧ください。
また、本画面でご記入いただいた個人情報は、お問い合わせ先の不動産会社でも保管します。 お問い合わせ先の不動産会社が保管する個人情報の取り扱いについては、不動産会社に直接お問い合わせください。
岡山県知事免許(2)第5696号 |
---|
- 交通:
- JR山陽本線/岡山駅 徒歩12分
- 岡山県岡山市北区下石井2丁目3-8 商工ビル401
- TEL:
- 086-206-5300
- FAX:
- 086-206-5305
- 所属団体:
- (公社)岡山県宅地建物取引業協会会員中国地区不動産公正取引協議会加盟
取引態様:仲介  - 50111574
|
- スマートフォンで
この不動産会社を見る

|
- 提携サイト等より掲載されている物件情報につきましては、不動産会社詳細情報にリンクされていないものがあります。
- 物件に関するお問合せは、物件詳細ページの「情報提供会社」に表示されている不動産会社へ直接お願いいたします。
- 間取図は、現況を優先させていただきます。
- 映像は物件の一部を撮影したものです。物件の契約にあたっての最終判断はご自身の判断に基づいて行ってください。
- 仲介手数料について

アットホームは物件情報の適正化に努めております。
内容に誤りがある場合にはこちらへご連絡ください。